+ Lisa oma töö      

Otsid ehitajat "Projekteerimine" valdkonnast?

Parima pakkumise ja teostaja leidmiseks lisa oma töö.

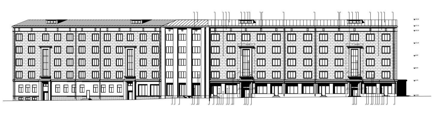
Kortermaja rek.projekt

ID 104285

333 vaatamist

Prindi

  • check Pakkumiste tegemine
    kuni 21.09.2024
  • check Võitja valik kuni
    28.09.2024
  • 3 Töö teostamine
    ja hinnang
Hanke lõpp: L, 21. september, 2024
Maakond: Harjumaa
Linn: Tallinn
Tööde lõpp: Kokkuleppel
Ehitusmaterjalid: Töö tellija poolt
Soovin pakkumisi: Summa kogu projektile

Töö sisu

Soovin hinnapakkumist korterelamu rekonstrueerimis projekti koostamisele vastavalt määrusele “ Korterelamute energiatõhususe toetuse tingimused”.

Projekteerimistööde lähteülesanne on manusena kaasas.

Mis on tööde maksumus ja tööde teostamise ajakava?

· Välispiirete rekonstrueerimise eelprojekt

· Välispiirete rekonstrueerimise põhiprojekt

· Ventilatsioonikanalite kaardistus vajalikus mahus

· Ventilatsioonisüsteemi rekonstrueerimise põhiprojekt

· Veevarustuse osalise rekonstrueerimise põhiprojekt

· Nõrkvoolu- ja elektri põhiprojekt

Pildid, video ja failid

Hanke korraldaja: eraisik ID82298

Pakkumised

Pakkumisi kokku: 1

Ettevõte Summa Käibemaks Lisatud Vestlus
Kasutaja ikoon ID77238
Pakkuja profiil Väike nool paremale
26 700€ Ei ole KMKR Ei ole KMKR 19.09.2024 Vestlus (0)

Pakkumise kirjeldus:

Ajalava:
September-okt. 2024 - hoone digitaliseerimine ja LÜ täpsustus.

Okt.-dets. : EHR-i jaoks dokumentatsiooni kokkupanek.

Arh. põhiprojekti koostamine menetlusega paralellselt.

Küsimused hanke korraldajale

Hanke korraldajale ei ole veel küsimusi esitatud.

Lisa küsimus

Lisa küsimus

Minu pakkumine

Reeglid

Pakkumise kirjelduse väli on mõeldud pakkumise detailsemaks lahti kirjutamiseks. Pikema teksti mugavaks sisestamiseks klikkige kasti paremal ülaservas oleval ikoonil.
Pakkumist tehes on keelatud postitada enda kontaktandmeid (nimi, telefon, aadress jne). Me jälgime ja analüüsime pakkumisi, et vältida pettuseid ja reeglite rikkumisi.
Rikkumise puhul kasutajakonto blokeeritakse.

 

Teisi töid samas valdkonnas

Valdkonnas "Projekteerimine" on 6 aktiivset tööd

no-img Pilt puudub

1-kordse 120 m2 elumaja põhiprojekt

Asukoht: Harjumaa, Metsanurme
Aega jäänud: 8p 20h
Tehtud pakkumisi: 4

no-img Pilt puudub

Saunamaja eelprojekt ehitusteatiseks

Asukoht: Lääne-Virumaa
Aega jäänud: 1p 20h
Tehtud pakkumisi: 3

Vanemad teated:

Vaata kõiki

Sellel veebilehel kasutatakse küpsiseid. Kasutamist jätkates nõustute küpsiste kasutamisega.

Sulge
 
Minu pakkumine

Reeglid

Pakkumise kirjelduse väli on mõeldud pakkumise detailsemaks lahti kirjutamiseks. Pikema teksti mugavaks sisestamiseks klikkige kasti paremal ülaservas oleval ikoonil.
Pakkumist tehes on keelatud postitada enda kontaktandmeid (nimi, telefon, aadress jne). Me jälgime ja analüüsime pakkumisi, et vältida pettuseid ja reeglite rikkumisi.
Rikkumise puhul kasutajakonto blokeeritakse.