+ Lisa oma töö      

Otsid ehitajat "Projekteerimine" valdkonnast?

Parima pakkumise ja teostaja leidmiseks lisa oma töö.

Hange on lõppenud!

Võitjaks osutus kasutaja ID 62360

Korraldaja hinnang tehtud tööle

5.0
18.04.2024
Töökiirus: 12345
Kvaliteet: 12345
Hind: 12345

Soovitan - Sergei �.

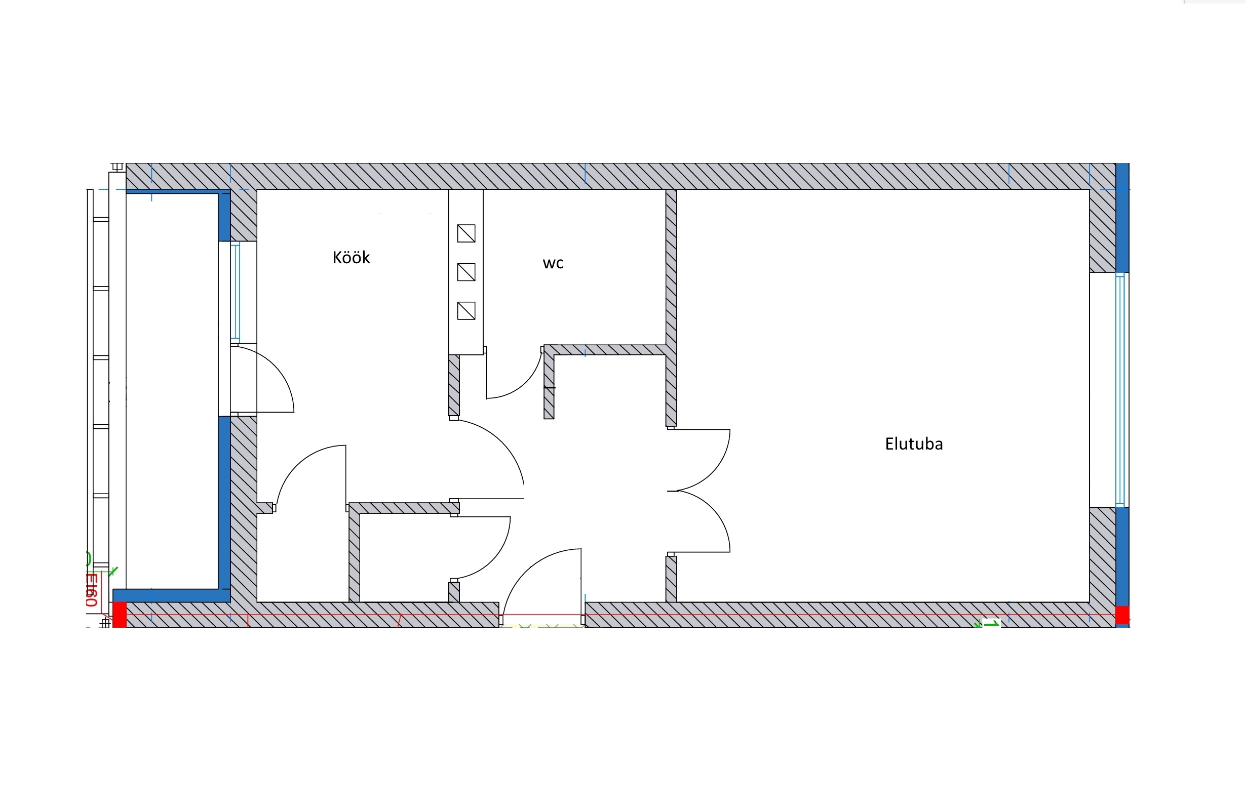
Korteri ümberplaneerimise projekt

ID 91720

603 vaatamist

Prindi

  • check Pakkumiste tegemine
    kuni 07.03.2024
  • check Võitja valik kuni
    14.03.2024
  • 3 Töö teostamine
    ja hinnang
Hanke lõpp: N, 7. märts, 2024
Maakond: Järvamaa
Muu asula: Koigi
Tööde algus: R, 08. märts, 2024 (Soovituslik)
Tööde lõpp: R, 22. märts, 2024 (Soovituslik)
Ehitusmaterjalid: Töö tegija poolt
Soovin pakkumisi: Summa kogu projektile

Töö sisu

Soovime korter ümber planeerida. Hetkel on korter ühetoaline (42m2). Tahaksime viia köök suure tuppa ning endises köögitoas teha väiksem magamistuba ja lamutada 2x panipaika, sellega suurendada magamistuba.

Tuleb teha projekt, esitada ta omavalitsusele ja ehitusteatist taotleda. Korter tuleb ümber vormistada 1 toaline - > 2 toaline

Asukoht: Koigi küla Järvamaa

Pildid, video ja failid

Hanke korraldaja: eraisik ID80077

Pakkumised

Pakkumisi kokku: 5

Ettevõte Summa Käibemaks Lisatud Vestlus
Kasutaja ikoon ID77562
Pakkuja profiil Väike nool paremale
1 400€ Sisaldab KM Sisaldab KM 01.03.2024 Vestlus (0)

Pakkumise kirjeldus:

Pakkumine sisaldab:

1) Vastavalt tellija soovidele, ehitusteatise mahus eelprojekti
2) Ehitusteatise esitamist ja menetluses osalemist

Pakkumine ei sisalda:

1) Eriosade projekteerimist kuid arvestades asulat, piisab eelduste kohaselt teostusjoonistest.

Saame abiks olla ka kasutusloa taotluse esitamisel.

Kasutaja ikoon ID62360
Pakkuja profiil Väike nool paremale
330€ Ei ole KMKR Ei ole KMKR 01.03.2024 Vestlus (4)

Pakkumise kirjeldus:

Pakkumine sisaldab:
Korteri rekonstrueerimise projekt eelprojekti staadiumis
Põhiplaan (koos eriosadega)
Asendiskeem
Seletuskiri, tiitelleht
Ehitusteatise/kasutusteatise või andmete esitamise teatise kooskõlastamine KOV ja registreerimine EHR.

Vajalik tellija poolt:
1. Eskiis
2. Alusprojekt
3. Fotod

Projekti koostamise aeg ca. 5 tööpäev ... Rohkem

Kasutaja ikoon ID26988
Pakkuja profiil Väike nool paremale
600€ Ei ole KMKR Ei ole KMKR 02.03.2024 Vestlus (0)

Pakkumise kirjeldus:

Pakkumine sisaldab projekti ehitusteatise esitamiseks vajalikus mahus, vastavalt normidele ja standartidele ning Teie kirjeldusele. Kõik kooskõlastused ja asjaajamised kuni ehitusteatise registreerimiseni. Vajadusel konsultatsioonid ja mõõdistamine. Projekt digitaalselt Teile sobivates formaatides, 3D-visualiseering.
Geoalus, riigilõivud ja seotud as ... Rohkem

Kasutaja ikoon ID77668
Pakkuja profiil Väike nool paremale
1 400€ KM lisandub KM lisandub 06.03.2024 Vestlus (0)
Kasutaja ikoon ID46826
Pakkuja profiil Väike nool paremale
670€ Ei ole KMKR Ei ole KMKR 07.03.2024 Vestlus (0)

Pakkumise kirjeldus:

Eelprojekti vormistamine : joonised ( korruse plaan, korteri plaan ) koos seletuskirjaga
*Asendiplaan maaameti xgis aerofotole
*Kooskõlastamised, asjaajamine
*Ehitusteatise taotlemine

Täpsustavad küsimused oodatud

Küsimused hanke korraldajale

Küsimus: private ID62360   01.03.2024 05:18
Tere,

Mis tüüpi majaga tegemist on? (Mitu korrust, millest vaheseinad ja valisseinad ehitatud)
Kas esitatud alusprojekt on olemas ka .dwg formaadis?

Teavita reeglite rikkumisest

Korraldaja vastus: 01.03.2024 10:02

Tere

Majal on kolm korrust, lisan pildi "Ehitise konstruktsioonid ja materjalid" ehitus registrist

Kahjuks .dwg formaadis pole

Lugupidamisega
Sergei

Teavita reeglite rikkumisest

Lisa küsimus

Lisa küsimus

Minu pakkumine

Reeglid

Pakkumise kirjelduse väli on mõeldud pakkumise detailsemaks lahti kirjutamiseks. Pikema teksti mugavaks sisestamiseks klikkige kasti paremal ülaservas oleval ikoonil.
Pakkumist tehes on keelatud postitada enda kontaktandmeid (nimi, telefon, aadress jne). Me jälgime ja analüüsime pakkumisi, et vältida pettuseid ja reeglite rikkumisi.
Rikkumise puhul kasutajakonto blokeeritakse.

 

Teisi töid samas valdkonnas

Valdkonnas "Projekteerimine" on 6 aktiivset tööd

no-img Pilt puudub

1-kordse 120 m2 elumaja põhiprojekt

Asukoht: Harjumaa, Metsanurme
Aega jäänud: 8p 19h
Tehtud pakkumisi: 4

no-img Pilt puudub

Saunamaja eelprojekt ehitusteatiseks

Asukoht: Lääne-Virumaa
Aega jäänud: 1p 19h
Tehtud pakkumisi: 3

Vanemad teated:

Vaata kõiki

Sellel veebilehel kasutatakse küpsiseid. Kasutamist jätkates nõustute küpsiste kasutamisega.

Sulge
 
Minu pakkumine

Reeglid

Pakkumise kirjelduse väli on mõeldud pakkumise detailsemaks lahti kirjutamiseks. Pikema teksti mugavaks sisestamiseks klikkige kasti paremal ülaservas oleval ikoonil.
Pakkumist tehes on keelatud postitada enda kontaktandmeid (nimi, telefon, aadress jne). Me jälgime ja analüüsime pakkumisi, et vältida pettuseid ja reeglite rikkumisi.
Rikkumise puhul kasutajakonto blokeeritakse.