+ Lisa oma töö      

Otsid ehitajat "Projekteerimine" valdkonnast?

Parima pakkumise ja teostaja leidmiseks lisa oma töö.

Hange on lõppenud!

Võitjaks osutus kasutaja ID 62360

Korraldaja hinnang tehtud tööle

5.0
15.02.2024
Töökiirus: 12345
Kvaliteet: 12345
Hind: 12345

Töö kiire ja korralik! - Peeter A.

Õhksoojuspumba seadustamine

ID 88959

899 vaatamist

Prindi

  • check Pakkumiste tegemine
    kuni 04.01.2024
  • check Võitja valik kuni
    04.01.2024
  • 3 Töö teostamine
    ja hinnang
Hanke lõpp: N, 4. jaanuar, 2024
Maakond: Läänemaa
Linn: Haapsalu
Tööde algus: E, 15. jaanuar, 2024 (Soovituslik)
Tööde lõpp: N, 15. veebruar, 2024 (Soovituslik)
Ehitusmaterjalid: Töö tellija poolt
Soovin pakkumisi: Summa kogu projektile

Töö sisu

Haapsalu kortermaja. Hetkel on soojuspumba välisosa kinnitatud kortermaja seina/sokli külge (okt.2022), aga plaanis on see ümber tõsta maapinnale hoonest eraldiseisvale metallraamile (lisaks varjestuskast).

Muinsukaitse luba on nii olemasolevale kui ka planeeritud lahendusele (tööde tegemise luba). Samuti on olemas teiste korteriomanike nõusolek.

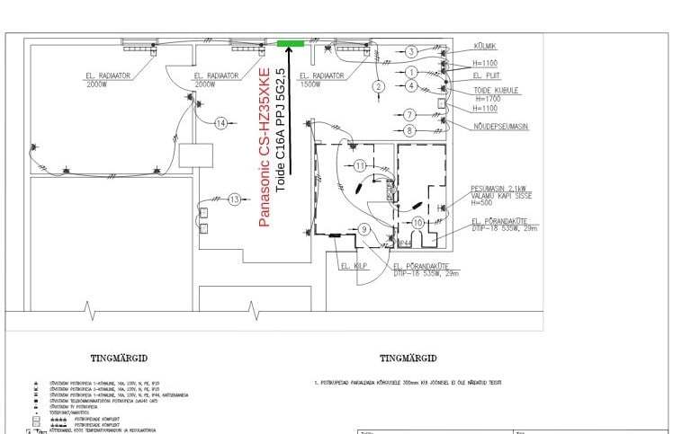
Pildid, video ja failid

Hanke korraldaja: eraisik ID24398

Pakkumised

Pakkumisi kokku: 2

Ettevõte Summa Käibemaks Lisatud Vestlus
Kasutaja ikoon ID62360
Pakkuja profiil Väike nool paremale
330€ Ei ole KMKR Ei ole KMKR 03.01.2024 Vestlus (9)

Pakkumise kirjeldus:

Pakkumine sisaldab: Küttesüsteemi rekonstrueerimisprojekt eelprojekti staadiumis.
-Põhiplaan
-Asendiskeem
-Lõiked
-Vaated
-Struktuurskeem
-Seletuskiri

Kooskõlastamine KOV. Ehitusteatis/Kasutusteatis.

Projekti koostamise aeg ca. 5 tööpäeva, peale vajaliku informatsiooni laekumist. Arhitektuursed alused Tellija poolt.

Kasutaja ikoon ID71562
Pakkuja profiil Väike nool paremale
300€ Ei ole KMKR Ei ole KMKR 04.01.2024 Vestlus (0)

Pakkumise kirjeldus:

Projekt sisaldab:
Tiitelleht
Seletuskiri
Joonised
Vaade (kui on seinale/maaraamile paigaldatud)
Asendiskeem

Ehitusteatise esitamiseks on vajalik allkirjastatud kooskõlastuse dokument korteriühistult/kaasomanikelt (olenevalt KOV-ist)

Kasutusteatise esitamiseks on vajalik seadme paigaldusakt, kasutus- ja hooldusjuhend, pildid, elektrideklaratsioon ... Rohkem

Küsimused hanke korraldajale

Hanke korraldajale ei ole veel küsimusi esitatud.

Lisa küsimus

Lisa küsimus

Minu pakkumine

Reeglid

Pakkumise kirjelduse väli on mõeldud pakkumise detailsemaks lahti kirjutamiseks. Pikema teksti mugavaks sisestamiseks klikkige kasti paremal ülaservas oleval ikoonil.
Pakkumist tehes on keelatud postitada enda kontaktandmeid (nimi, telefon, aadress jne). Me jälgime ja analüüsime pakkumisi, et vältida pettuseid ja reeglite rikkumisi.
Rikkumise puhul kasutajakonto blokeeritakse.

 

Teisi töid samas valdkonnas

Valdkonnas "Projekteerimine" on 6 aktiivset tööd

no-img Pilt puudub

1-kordse 120 m2 elumaja põhiprojekt

Asukoht: Harjumaa, Metsanurme
Aega jäänud: 8p 20h
Tehtud pakkumisi: 4

no-img Pilt puudub

Saunamaja eelprojekt ehitusteatiseks

Asukoht: Lääne-Virumaa
Aega jäänud: 1p 20h
Tehtud pakkumisi: 3

Vanemad teated:

Vaata kõiki

Sellel veebilehel kasutatakse küpsiseid. Kasutamist jätkates nõustute küpsiste kasutamisega.

Sulge
 
Minu pakkumine

Reeglid

Pakkumise kirjelduse väli on mõeldud pakkumise detailsemaks lahti kirjutamiseks. Pikema teksti mugavaks sisestamiseks klikkige kasti paremal ülaservas oleval ikoonil.
Pakkumist tehes on keelatud postitada enda kontaktandmeid (nimi, telefon, aadress jne). Me jälgime ja analüüsime pakkumisi, et vältida pettuseid ja reeglite rikkumisi.
Rikkumise puhul kasutajakonto blokeeritakse.