+ Lisa oma töö      

Otsid ehitajat "Vundamenditööd" valdkonnast?

Parima pakkumise ja teostaja leidmiseks lisa oma töö.

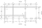
Lintvundament soojustamata abihoonele

ID 81865

702 vaatamist

Prindi

  • check Pakkumiste tegemine
    kuni 14.06.2023
  • check Võitja valik kuni
    21.06.2023
  • 3 Töö teostamine
    ja hinnang
Hanke lõpp: K, 14. juuni, 2023
Maakond: Harjumaa
Muu asula: Saha
Tööde algus: E, 17. juuli, 2023 (Soovituslik)
Tööde lõpp: E, 31. juuli, 2023 (Soovituslik)
Ehitusmaterjalid: Töö tegija poolt
Soovin pakkumisi: Summa kogu projektile

Töö sisu

-Tihendatud killustikalus 300mm
-Lintvundamendi taldmik 1,2m sügavusele.
-r/b taldmik 1000x200mm
-r/b lintvundament 280mm
-Maapinnast kõrgemale jäävat sokliseina ei ole vaja viimistleda.
-Hüdroisolatsioon

Abihoonet ei ole plaanis soojustada.
Pakkumine peaks ka sisaldama kaevetööd ja mahamärkimist.

Joonised lisatud piltidena.

Pildid, video ja failid

Hanke korraldaja: eraisik ID54061

Pakkumised

Pakkumisi kokku: 2

Ettevõte Summa Käibemaks Lisatud Vestlus
Kasutaja ikoon ID4350
Pakkuja profiil Väike nool paremale
18 900€ KM lisandub KM lisandub 15.05.2023 Vestlus (0)
Kasutaja ikoon ID73479
Pakkuja profiil Väike nool paremale
25 000€ Sisaldab KM Sisaldab KM 14.06.2023 Vestlus (0)

Pakkumise kirjeldus:

Tere

Hea meelega teostame tööd teie jaoks.tööd tehakse kvaliteetselt ja võimalikult kiiresti.Pakume 5 aastane garantii oma töödele.

See hind sisaldab kõiki nimekirjas olevaid soovitud tööd.
Spetsialisti tulek teie objektile, hinnapakkumise ja tööteostamise lepingu koostamine.

Minu firma tegeleb katuste, fassaadide ehitusega ning üldehi ... Rohkem

Küsimused hanke korraldajale

Küsimus: private ID66447   12.06.2023 22:30
Tere!
Kas saab ka hinna teha tööle?

Teavita reeglite rikkumisest

Korraldaja vastus:
Hanke korraldaja ei ole küsimusele veel vastanud

Küsimus: private ID59528   13.06.2023 20:33
Tere,

Kas oleks vōimalik lisada pdf file plaanidest ?

Parimat,

Erik

Teavita reeglite rikkumisest

Korraldaja vastus:
Hanke korraldaja ei ole küsimusele veel vastanud

Lisa küsimus

Lisa küsimus

Minu pakkumine

Reeglid

Pakkumise kirjelduse väli on mõeldud pakkumise detailsemaks lahti kirjutamiseks. Pikema teksti mugavaks sisestamiseks klikkige kasti paremal ülaservas oleval ikoonil.
Pakkumist tehes on keelatud postitada enda kontaktandmeid (nimi, telefon, aadress jne). Me jälgime ja analüüsime pakkumisi, et vältida pettuseid ja reeglite rikkumisi.
Rikkumise puhul kasutajakonto blokeeritakse.

 

Teisi töid samas valdkonnas

Valdkonnas "Vundamenditööd" on 4 aktiivset tööd

no-img Pilt puudub

Plaatvundamendi ehitus

Asukoht: Harjumaa
Aega jäänud: 8p 22h
Tehtud pakkumisi: 1

Vana hoone utiliseerimine ja plaatvundamendi valamine

Asukoht: Viljandimaa, Jaska
Aega jäänud: 11p 22h
Tehtud pakkumisi: 0

Vanemad teated:

Vaata kõiki

Sellel veebilehel kasutatakse küpsiseid. Kasutamist jätkates nõustute küpsiste kasutamisega.

Sulge
 
Minu pakkumine

Reeglid

Pakkumise kirjelduse väli on mõeldud pakkumise detailsemaks lahti kirjutamiseks. Pikema teksti mugavaks sisestamiseks klikkige kasti paremal ülaservas oleval ikoonil.
Pakkumist tehes on keelatud postitada enda kontaktandmeid (nimi, telefon, aadress jne). Me jälgime ja analüüsime pakkumisi, et vältida pettuseid ja reeglite rikkumisi.
Rikkumise puhul kasutajakonto blokeeritakse.