+ Lisa oma töö      

Otsid ehitajat "Katusetööd" valdkonnast?

Parima pakkumise ja teostaja leidmiseks lisa oma töö.

Üksikelamu katuse vahetus

ID 71394

440 vaatamist

Prindi

  • check Pakkumiste tegemine
    kuni 06.05.2022
  • check Võitja valik kuni
    13.05.2022
  • 3 Töö teostamine
    ja hinnang
Hanke lõpp: R, 6. mai, 2022
Maakond: Harjumaa
Linn: Tallinn
Tööde algus: E, 27. juuni, 2022 (Soovituslik)
Tööde lõpp: R, 30. september, 2022 (Soovituslik)
Ehitusmaterjalid: Töö tellija poolt
Soovin pakkumisi: Tüki- või ühikuhinda

Töö sisu

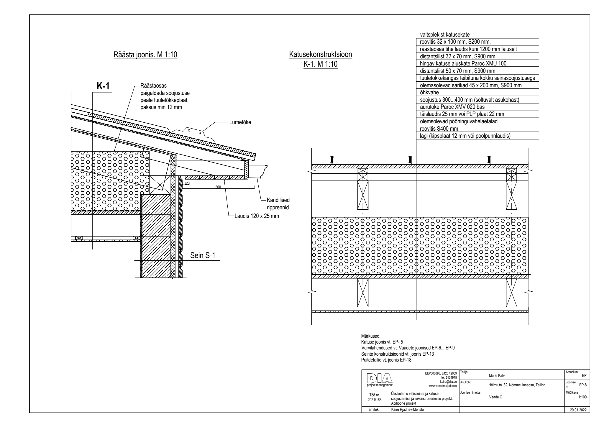
Väikeelamu katuse vahetus, projekt olemas. Vana katusematerjali eemaldamine, uue valtspleki panek.

Pildid, video ja failid

Hanke korraldaja: eraisik ID68624

Pakkumised

Pakkumisi kokku: 0

Küsimused hanke korraldajale

Küsimus: private ID49443   23.04.2022 14:50
Pilte?

Teavita reeglite rikkumisest

Korraldaja vastus: 25.04.2022 10:07

Lisasin maja joonised, olemas on projekt ja kehtiv ehitusluba.

Teavita reeglite rikkumisest

Küsimus: private ID49443   25.04.2022 19:00
Kas hetkel peal ka valtsplekk, mis tuleks eemaldada?

Teavita reeglite rikkumisest

Korraldaja vastus: 26.04.2022 08:59

Tere
Üks osa katust on valtsplekiga, teine tavaline katuseplekk. Mõlemad plekid on vaja eemaldada ja asendada.

Teavita reeglite rikkumisest

Küsimus: private ID49443   26.04.2022 16:11
Kas oleks võimalik panna pilt ka projektist , kas uus valtsplekk tsink või värvitud. Aluskate tuleb alla või on olemas juba?

Teavita reeglite rikkumisest

Korraldaja vastus: 26.04.2022 16:32

Materjale veel ei ole. Lisasin projektist katuse ja räästa osa.

Teavita reeglite rikkumisest

Küsimus: private ID49443   26.04.2022 17:37
Küsin siis nii ,et kas uue valtspleki alla tuleb ka katuse aluskile paigaldada ja uus roov.
Tänan.

Teavita reeglite rikkumisest

Korraldaja vastus: 27.04.2022 07:53

Roovituse kohta ei saa oska enne vana materjali eemaldamist täpselt öelda, võib olla, et peab roovitust uuendama.

Teavita reeglite rikkumisest

Küsimus: private ID49443   04.05.2022 09:08
Kas hind peab sisaldama ka vihmavee süsteemide paigaldust või ainult vana pleki eemaldust ja uue valtspleki paigaldust!
Tänud

Teavita reeglite rikkumisest

Korraldaja vastus: 04.05.2022 09:45

Tere
vana vihmavee süsteemi üldiselt ei eksisteeri enam, aga enne oleks vist vaja fassaad korrastada?

Teavita reeglite rikkumisest

Küsimus: private ID54528   04.05.2022 20:23
Tere,
Oskate öelda katuse m2 ?

Teavita reeglite rikkumisest

Korraldaja vastus: 05.05.2022 10:28

Tere
Projekti joonisel on mõõdud ja nende järgi peaks olema võimalik m2 arvutada?

Teavita reeglite rikkumisest

Küsimus: private ID59528   05.05.2022 17:25
Tere,

Kas valtsprofiil Kalssik sobib katusekatteks ?

Parimat,

Erik

Teavita reeglite rikkumisest

Korraldaja vastus: 05.05.2022 21:08

Tere
Lisasin projekti seletuskirja, Kui selles ei ole viidet profiili osas, siis pean arhitekti käest täpsustama.

Parimat
Merle

Teavita reeglite rikkumisest

Lisa küsimus

Lisa küsimus

Minu pakkumine

Reeglid

Pakkumise kirjelduse väli on mõeldud pakkumise detailsemaks lahti kirjutamiseks. Pikema teksti mugavaks sisestamiseks klikkige kasti paremal ülaservas oleval ikoonil.
Pakkumist tehes on keelatud postitada enda kontaktandmeid (nimi, telefon, aadress jne). Me jälgime ja analüüsime pakkumisi, et vältida pettuseid ja reeglite rikkumisi.
Rikkumise puhul kasutajakonto blokeeritakse.

 

Teisi töid samas valdkonnas

Valdkonnas "Katusetööd" on 9 aktiivset tööd

no-img Pilt puudub

Käidava katuse PVC 54m2

Asukoht: Harjumaa, Muraste
Aega jäänud: 4p 9h
Tehtud pakkumisi: 3

Garaaži katuse vahetamine

Asukoht: Harjumaa, Viimsi
Aega jäänud: 13p 9h
Tehtud pakkumisi: 2

Vanemad teated:

Vaata kõiki

Sellel veebilehel kasutatakse küpsiseid. Kasutamist jätkates nõustute küpsiste kasutamisega.

Sulge
 
Minu pakkumine

Reeglid

Pakkumise kirjelduse väli on mõeldud pakkumise detailsemaks lahti kirjutamiseks. Pikema teksti mugavaks sisestamiseks klikkige kasti paremal ülaservas oleval ikoonil.
Pakkumist tehes on keelatud postitada enda kontaktandmeid (nimi, telefon, aadress jne). Me jälgime ja analüüsime pakkumisi, et vältida pettuseid ja reeglite rikkumisi.
Rikkumise puhul kasutajakonto blokeeritakse.