+ Lisa oma töö      

Otsid ehitajat "Projekteerimine" valdkonnast?

Parima pakkumise ja teostaja leidmiseks lisa oma töö.

Hange on lõppenud!

Võitjaks osutus kasutaja ID 79821

Suvila elektriprojekt

ID 130489

1060 vaatamist

Prindi

  • check Pakkumiste tegemine
    kuni 20.03.2026
  • check Võitja valik kuni
    30.03.2026
  • 3 Töö teostamine
    ja hinnang
Hanke lõpp: R, 20. märts, 2026
Maakond: Pärnumaa
Linn: Pärnu
Tööde lõpp: Kokkuleppel
Ehitusmaterjalid: Töö tegija poolt
Soovin pakkumisi: Summa kogu projektile

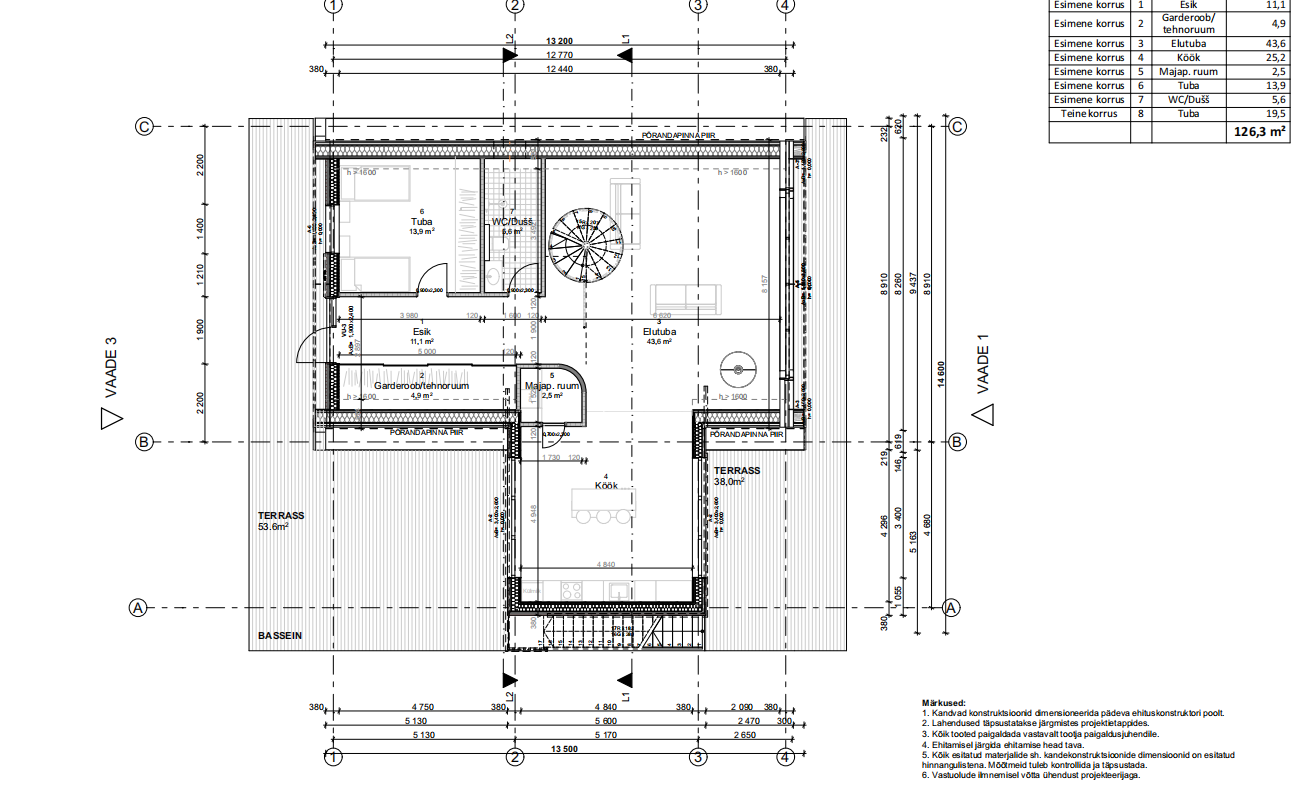
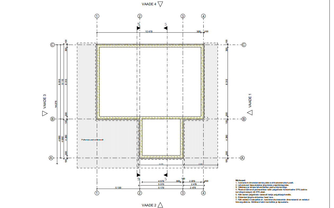
Töö sisu

Kogu kinnistu ja hoonete elektriprojekt, elektriliitumine on olemas ja kilp asub krundi piiril
Elamu- kütteks õhkvesi soojuspump
Abihoone- elektrikilbi asukoht tehnoruumis
2 aiamaja- õhksoojuspump
Päikesepaneelid, akusalvestus, autolaadija
Bassein
Maakelder
Biopuhasti ja puurkaev
Välivalgustus

Pildid, video ja failid

Hanke korraldaja: eraisik ID96232

Pakkumised

Pakkumisi kokku: 3

Ettevõte Summa Käibemaks Lisatud Vestlus
Kasutaja ikoon ID31470
Pakkuja profiil Väike nool paremale
1 300€ KM lisandub KM lisandub 07.03.2026 Vestlus (0)

Pakkumise kirjeldus:

Tere,

teeme pakkumise antud hoone tugevvoolupaigaldise EVS standardile vastavas mahus põhiprojekti koostamiseks (tiitelleht, dok nimekiri, seletuskiri, korruseplaanid, kilbiskeem, potentsiaaliühtlustuse skeem, materjalide loend). Pärast lähteülesande kättesaamist saame projekti valmimise ajaks lubada maksimaalselt 1 töönädal. Töid teostab volita ... Rohkem

Kasutaja ikoon ID46459
Pakkuja profiil Väike nool paremale
530€ Ei ole KMKR Ei ole KMKR 07.03.2026 Vestlus (0)

Pakkumise kirjeldus:

Tere. Elektriprojekt vastavalt EVS normidele. Teostusaeg 5tööpäva lähteandmete saamisest.

Kasutaja ikoon ID79821
Pakkuja profiil Väike nool paremale
610€ KM lisandub KM lisandub 11.03.2026 Vestlus (0)

Pakkumise kirjeldus:

Eesti Vabariigi normidele ja EVS standarditele vastav kvaliteetne põhjalik põhiprojekt. Projekti valmimise aeg 20 päeva jooksul peale alusmaterjali (DWG kujul) ja lähteülesanne esitamist. Elektriprojekteerimise kogemus >10a., soovi korral esitame projektlahendused kogemuse alusel.

Hind sisaldab:
1. Tekstiline osa (tiitelleht, dokumentide nimekiri, s ... Rohkem

Küsimused hanke korraldajale

Küsimus: private ID66602   08.03.2026 11:03
Palun täpsustage:
1. Kas kinnistu ja hoonete elektriprojekti soovitakse põhiprojekti staadiumis?
2. Päikesepaneelid, akusalvestus, autolaadija - kas hangitava projektiga peavad need osad olema lahendatud või peakilbis tuleb arvestada nende valmidusega?

Teavita reeglite rikkumisest

Korraldaja vastus: 08.03.2026 12:43

Põhiprojekt
Kõik peab olema lahendatud

Teavita reeglite rikkumisest

Lisa küsimus

Lisa küsimus

Minu pakkumine

Reeglid

Pakkumise kirjelduse väli on mõeldud pakkumise detailsemaks lahti kirjutamiseks. Pikema teksti mugavaks sisestamiseks klikkige kasti paremal ülaservas oleval ikoonil.
Pakkumist tehes on keelatud postitada enda kontaktandmeid (nimi, telefon, aadress jne). Me jälgime ja analüüsime pakkumisi, et vältida pettuseid ja reeglite rikkumisi.
Rikkumise puhul kasutajakonto blokeeritakse.

 

Teisi töid samas valdkonnas

Valdkonnas "Projekteerimine" on 10 aktiivset tööd

Ehitusteatise eelprojekt

Asukoht: Järvamaa
Aega jäänud: 2h 59 min
Tehtud pakkumisi: 14

Eramu renoveerimisprojekt

Asukoht: Lääne-Virumaa, Kadrina
Aega jäänud: 2p 2h
Tehtud pakkumisi: 7

Vanemad teated:

Vaata kõiki

Sellel veebilehel kasutatakse küpsiseid. Kasutamist jätkates nõustute küpsiste kasutamisega.

Sulge
 
Minu pakkumine

Reeglid

Pakkumise kirjelduse väli on mõeldud pakkumise detailsemaks lahti kirjutamiseks. Pikema teksti mugavaks sisestamiseks klikkige kasti paremal ülaservas oleval ikoonil.
Pakkumist tehes on keelatud postitada enda kontaktandmeid (nimi, telefon, aadress jne). Me jälgime ja analüüsime pakkumisi, et vältida pettuseid ja reeglite rikkumisi.
Rikkumise puhul kasutajakonto blokeeritakse.