+ Lisa oma töö      

Otsid ehitajat "Projekteerimine" valdkonnast?

Parima pakkumise ja teostaja leidmiseks lisa oma töö.

Eramu renoveerimisprojekt

ID 132910

229 vaatamist

Prindi

  • 1 Pakkumiste tegemine
    kuni 27.04.2026
  • 2 Võitja valik kuni
    07.05.2026
  • 3 Töö teostamine
    ja hinnang
Hanke lõpp: E, 27. aprill, 2026
Maakond: Lääne-Virumaa
Muu asula: Kadrina
Tööde lõpp: P, 31. mai, 2026
Ehitusmaterjalid: Töö tegija poolt
Soovin pakkumisi: Summa kogu projektile

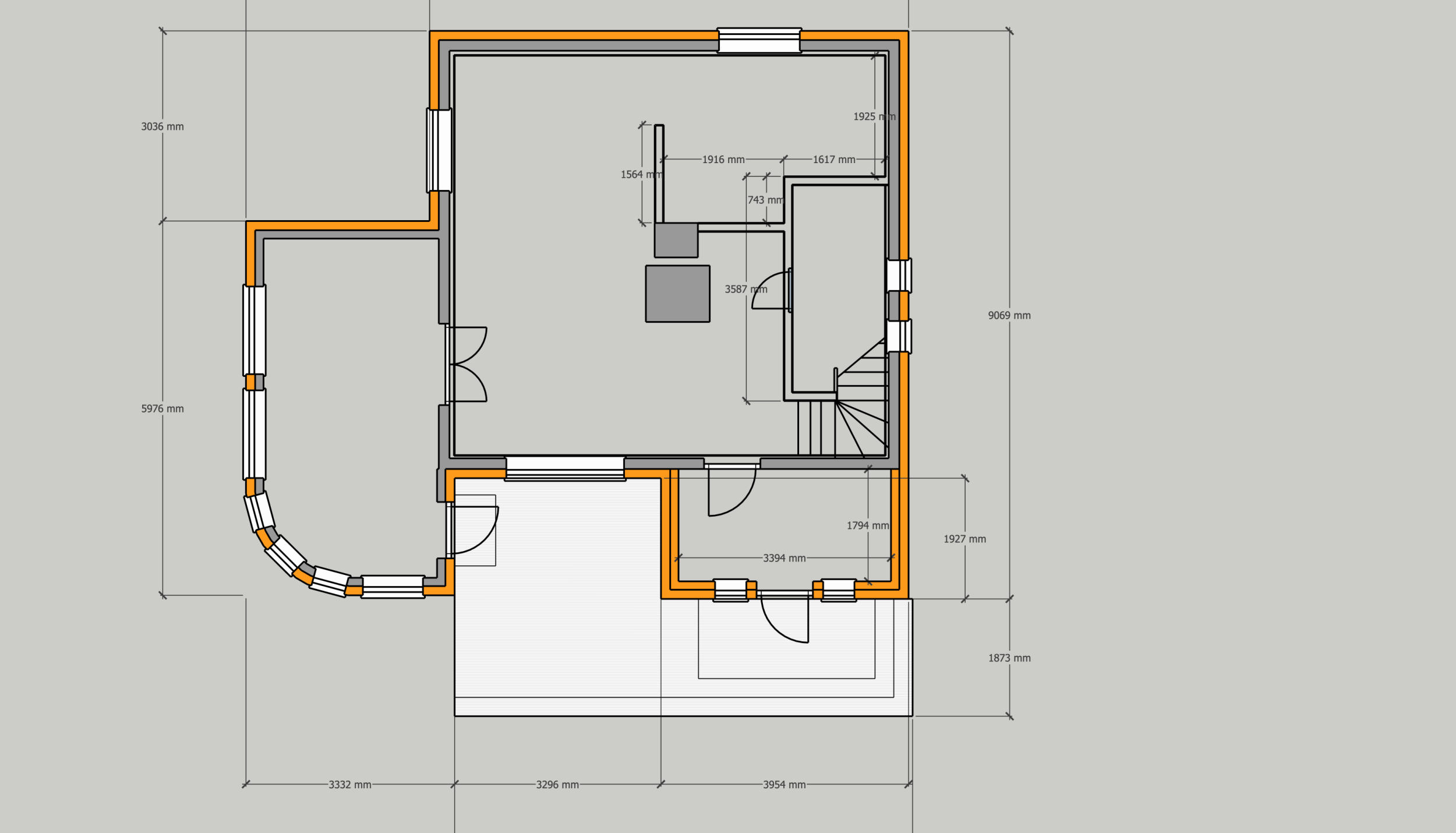
Töö sisu

Oleks vaja koostada eramule renoveerimisprojekt ehitusteatise ning hiljem kasutusteatise esitamiseks.
Lisaks elektriprojekt.

Juba tehtud tööd, mis ei kajastu EHR-is:

Tööd, mis on teostatud millalgi enne 2010 aastat:
• vahetatud katusekate - eterniit pleki vastu ning veranda osale paigaldatud bituumensindelkatus;
• liitumine ühisvee- ning kanalisatsioonivõrguga;
• kööki ning wc-sse vesi ja kanalisatsioon sisse veetud.

2016 esitatud ehitusteatis ning eskiis ja vaated alljärgnevate tööde teostamiseks (kasutusteatis esitamata):
• välisfassaad eemaldatud (tep plaat ning krohv);
• uus välisfassaad (puitvooder) koos soojustamisega;
• katusealuse välistrepi platvorm kinni ehitatud esikuks;
• uus välistrepp.

Lisaks on teostatud järgnevad tööd:
• liigutatud siseseinu nii esimesel kui teisel korrusel;
• lisaks kaldlae alust seina nihutatud väljapoole;
• 2k elektrikaabeldus vahetatud;
• ehitatud terrass.

Plaanis esimese korruse renoveerimine:
• põrandate ning vaheseinte lammutamine;
• uute põrandate ehitamine;
• vaheseinte liigutamine, ehitamine;
• uue vee- ja kanalisatsioonitorustiku paigaldamine;
• elektrikaabelduse vahetamine, elektrikilbi paigaldamine;
• õhk-õhk soojuspumba paigaldamine.

Pildid, video ja failid

Hanke korraldaja: eraisik ID41008

Pakkumised

Pakkumisi kokku: 3

Küsimused hanke korraldajale

Hanke korraldajale ei ole veel küsimusi esitatud.

Lisa küsimus

Lisa küsimus

Minu pakkumine

Reeglid

Pakkumise kirjelduse väli on mõeldud pakkumise detailsemaks lahti kirjutamiseks. Pikema teksti mugavaks sisestamiseks klikkige kasti paremal ülaservas oleval ikoonil.
Pakkumist tehes on keelatud postitada enda kontaktandmeid (nimi, telefon, aadress jne). Me jälgime ja analüüsime pakkumisi, et vältida pettuseid ja reeglite rikkumisi.
Rikkumise puhul kasutajakonto blokeeritakse.

 

Aega jäänud: 9 päeva 7h

Jälgi seda hanget

Teisi töid samas valdkonnas

Valdkonnas "Projekteerimine" on 10 aktiivset tööd

Ehitusteatise eelprojekt

Asukoht: Järvamaa
Aega jäänud: 7p 7h
Tehtud pakkumisi: 9

no-img Pilt puudub

Eramu eelprojekti koostamine ehitusloa taotlemiseks

Asukoht: Harjumaa
Aega jäänud: 4p 7h
Tehtud pakkumisi: 7

Vanemad teated:

Vaata kõiki

Sellel veebilehel kasutatakse küpsiseid. Kasutamist jätkates nõustute küpsiste kasutamisega.

Sulge
 
Minu pakkumine

Reeglid

Pakkumise kirjelduse väli on mõeldud pakkumise detailsemaks lahti kirjutamiseks. Pikema teksti mugavaks sisestamiseks klikkige kasti paremal ülaservas oleval ikoonil.
Pakkumist tehes on keelatud postitada enda kontaktandmeid (nimi, telefon, aadress jne). Me jälgime ja analüüsime pakkumisi, et vältida pettuseid ja reeglite rikkumisi.
Rikkumise puhul kasutajakonto blokeeritakse.