+ Lisa oma töö      

Otsid ehitajat "Projekteerimine" valdkonnast?

Parima pakkumise ja teostaja leidmiseks lisa oma töö.

Poolmaja (2 korrust) veevarustuse ja kanalisatsiooni projekt Ida-Virumaal

ID 130125

889 vaatamist

Prindi

  • check Pakkumiste tegemine
    kuni 06.03.2026
  • check Võitja valik kuni
    16.03.2026
  • 3 Töö teostamine
    ja hinnang
Hanke lõpp: R, 6. märts, 2026
Maakond: Ida-Virumaa
Muu asula: Kukruse
Tööde lõpp: Kokkuleppel
Ehitusmaterjalid: Töö tellija poolt
Soovin pakkumisi: Summa kogu projektile

Töö sisu

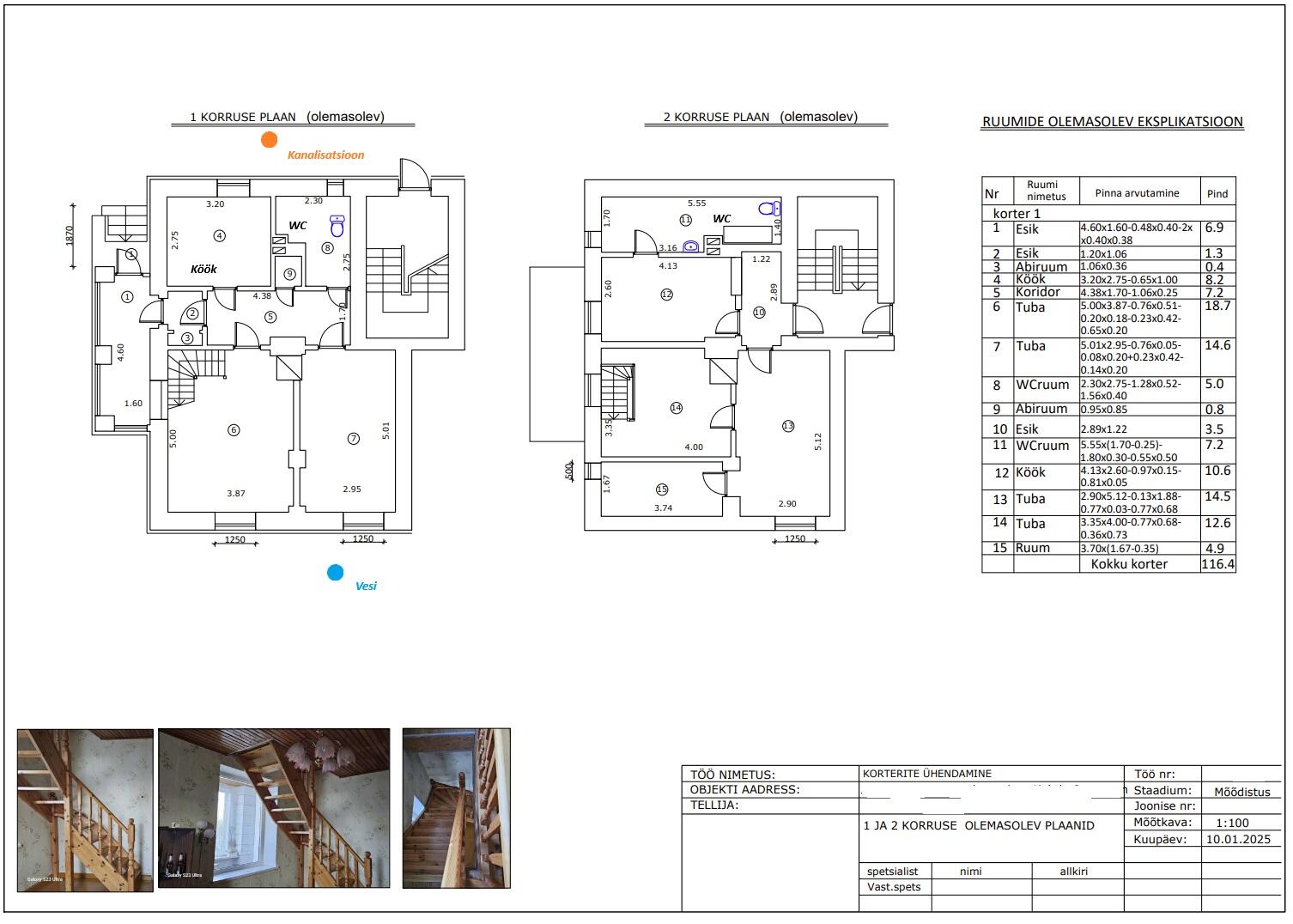
Olemasolev olukord: Olemasoleva plaanil on kirjas kõik nagu on.
Muudatuste kirjeldus: Plaanis õhk-vesi küttesüsteemi kasutamine ning köögi ja vannitoa paigalduse muutmine.
Ootused: veevarustuse ja kanalisatsiooni projekt liitumispunktist, arvestades tarbimispunktide ümberpaigaldamisega.
Oleks hea kui koos veevarustuse ja kanalisatsiooni projektiga on võimalik ka põrandaküttesüsteemi projekt teha.

Pildid, video ja failid

Hanke korraldaja: korteriühistu ID96615

Pakkumised

Pakkumisi kokku: 1

Ettevõte Summa Käibemaks Lisatud Vestlus
Kasutaja ikoon ID95663
Pakkuja profiil Väike nool paremale
400€ KM lisandub KM lisandub 02.03.2026 Vestlus (0)

Pakkumise kirjeldus:

Töö sisuks on hoone ning kinnistu veevarustuse ja kanalisatsiooni põhiprojekti koostamine. Ei sisalda põrandkütte osa.

Küsimused hanke korraldajale

Küsimus: private ID95663   01.03.2026 09:10
Kas saan õigesti aru, et vee-ettevõtte kinnistul paiknevast liitumispunktist alates on tarvis projekteerimistöid teostada? Või jääb hoone kinnistul paiknevad ühendused paika ja poolmaja ühendusi on tarvis ümber projekteerida peale veemõõdusõlme? Kui töid teostatakse veemõõdusõlme järel, siis pole tarvis vee-ettevõttega lahendust kooskõlastada.

Teavita reeglite rikkumisest

Korraldaja vastus: 01.03.2026 15:56

Tere! Projekteerida on vaja liitumispunktist, kuna torud on üsna vanad.

Teavita reeglite rikkumisest

Lisa küsimus

Lisa küsimus

Minu pakkumine

Reeglid

Pakkumise kirjelduse väli on mõeldud pakkumise detailsemaks lahti kirjutamiseks. Pikema teksti mugavaks sisestamiseks klikkige kasti paremal ülaservas oleval ikoonil.
Pakkumist tehes on keelatud postitada enda kontaktandmeid (nimi, telefon, aadress jne). Me jälgime ja analüüsime pakkumisi, et vältida pettuseid ja reeglite rikkumisi.
Rikkumise puhul kasutajakonto blokeeritakse.

 

Teisi töid samas valdkonnas

Valdkonnas "Projekteerimine" on 8 aktiivset tööd

Ehitusteatise eelprojekt

Asukoht: Järvamaa
Aega jäänud: 4p 1h
Tehtud pakkumisi: 10

no-img Pilt puudub

Eramu eelprojekti koostamine ehitusloa taotlemiseks

Asukoht: Harjumaa
Aega jäänud: 1p 1h
Tehtud pakkumisi: 9

Vanemad teated:

Vaata kõiki

Sellel veebilehel kasutatakse küpsiseid. Kasutamist jätkates nõustute küpsiste kasutamisega.

Sulge
 
Minu pakkumine

Reeglid

Pakkumise kirjelduse väli on mõeldud pakkumise detailsemaks lahti kirjutamiseks. Pikema teksti mugavaks sisestamiseks klikkige kasti paremal ülaservas oleval ikoonil.
Pakkumist tehes on keelatud postitada enda kontaktandmeid (nimi, telefon, aadress jne). Me jälgime ja analüüsime pakkumisi, et vältida pettuseid ja reeglite rikkumisi.
Rikkumise puhul kasutajakonto blokeeritakse.