+ Lisa oma töö      

Otsid ehitajat "Projekteerimine" valdkonnast?

Parima pakkumise ja teostaja leidmiseks lisa oma töö.

Elamu konstruktsioonid: vundament+avad

ID 122884

1589 vaatamist

Prindi

  • check Pakkumiste tegemine
    kuni 03.10.2025
  • check Võitja valik kuni
    10.10.2025
  • 3 Töö teostamine
    ja hinnang
Hanke lõpp: R, 3. oktoober, 2025
Maakond: Harjumaa
Linn: Paldiski
Tööde lõpp: Kokkuleppel
Ehitusmaterjalid: Töö tegija poolt
Soovin pakkumisi: Summa kogu projektile

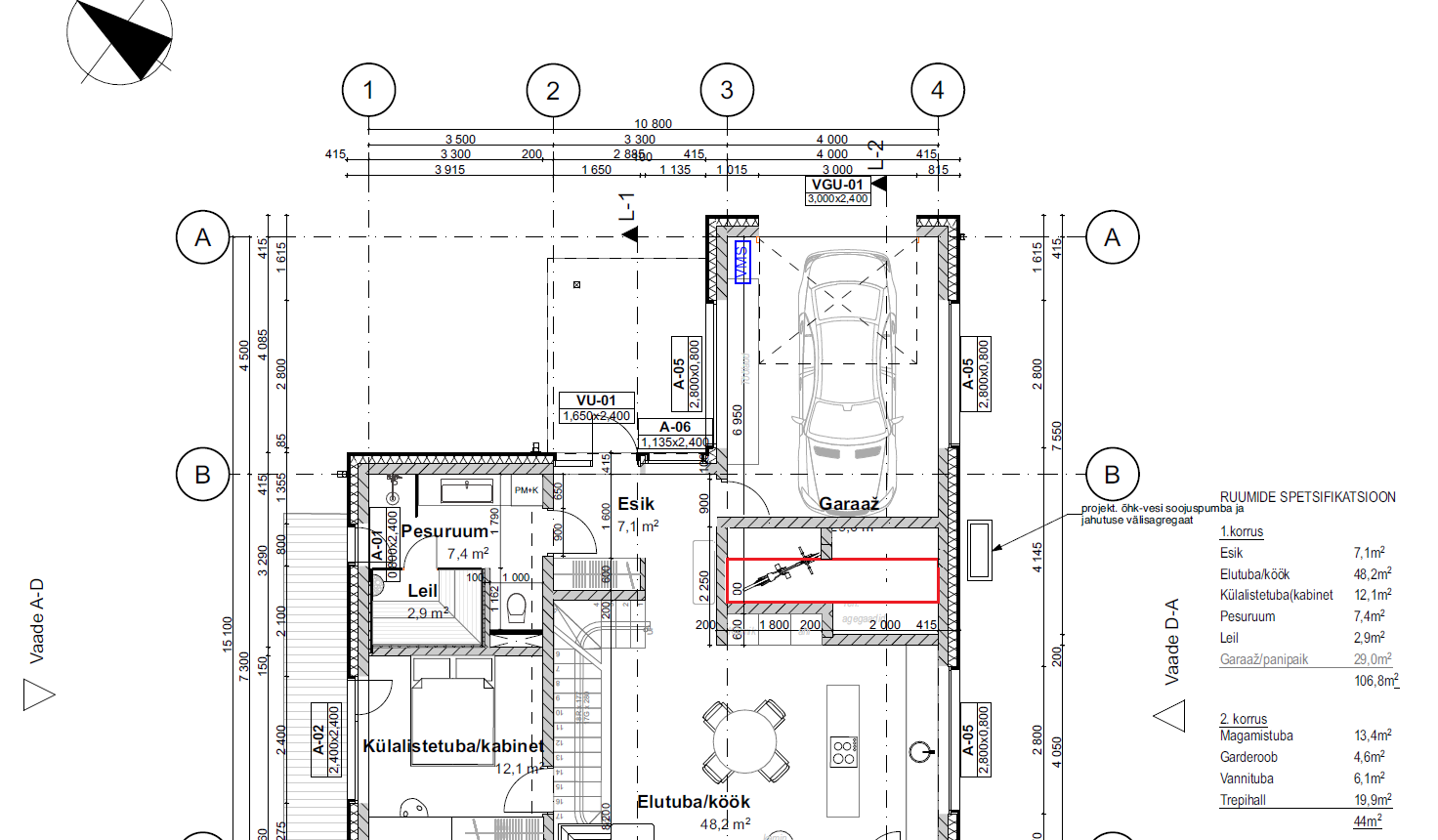
Töö sisu

Esmajoones vajalik:
1) (lint)vundamendi talla laiused ning keldriosa (projekti muudatus) konstruktsioon;
2) IPE talade alused/padjad - lisatud 2k. puitsõrestiku ja vahelae talade projekt.
3) avade sillused.

PS! Eelprojektiga võrreldes on 1. korruse seina kõrgus 2800 asemel 2700(+ müürilatt 50).

Info pinnase kohta (alt üles): paas u.2m; savi 150mm; (vesine) kruus 250mm, liiv; muld u.200mm

Pildid, video ja failid

Hanke korraldaja: eraisik ID83722

Pakkumised

Pakkumisi kokku: 2

Ettevõte Summa Käibemaks Lisatud Vestlus
Kasutaja ikoon ID69164
Pakkuja profiil Väike nool paremale
2 800€ Ei ole KMKR Ei ole KMKR 05.09.2025 Vestlus (2)

Pakkumise kirjeldus:

Hoone konstruktiivne ehitusprojekt põhiprojekti staadiumis.

Koostatav projekt vastab EVS 932:2017 ja MKM määruse nr. 97 „Nõuded ehitusprojektile1" nõuetele.

Arveldamine:

100% tasuda siis, kui allkirjastatud projekt on Tellijale üle antud.

Kasutaja ikoon ID48870
Pakkuja profiil Väike nool paremale
1 450€ Ei ole KMKR Ei ole KMKR 03.10.2025 Vestlus (0)

Pakkumise kirjeldus:

Tere,
pakkumise hind sisaldab järgmist:
projekteerimine põhiprojekti staadiumis kooskõlas arhitektuurse projektiga (vt EVS 932:2017)
Projekti sisu:
1. konstruktsiooniarvutused
2. joonised
Olen insener, arhitekt tase 7.
Omame MTR registreeringut, EEP-EEO-EPE-EEK,
EEP: arhitektuuri osa
hoonesisene või selle juurde kuuluv veevarustuse või kanalisa ... Rohkem

Küsimused hanke korraldajale

Küsimus: private ID59528   10.09.2025 09:07
Tere!

Oleme huvitatud Teile ehituse hinnapakkumise koostamisest. Kas Teil on olemas projekt, plaanid või mõõdud, mille põhjal saaksime pakkumise koostada?

Meie ettevõttel on kehtiv MTR registreering.

Tutvuda meie varasemate tööde ja klientide tagasisidega saate meie avalikul Hange.ee profiilil:
https://www.hange.ee/ettevote/59528/

Parimate soovidega,
Erik

Teavita reeglite rikkumisest

Korraldaja vastus:
Hanke korraldaja ei ole küsimusele veel vastanud

Lisa küsimus

Lisa küsimus

Minu pakkumine

Reeglid

Pakkumise kirjelduse väli on mõeldud pakkumise detailsemaks lahti kirjutamiseks. Pikema teksti mugavaks sisestamiseks klikkige kasti paremal ülaservas oleval ikoonil.
Pakkumist tehes on keelatud postitada enda kontaktandmeid (nimi, telefon, aadress jne). Me jälgime ja analüüsime pakkumisi, et vältida pettuseid ja reeglite rikkumisi.
Rikkumise puhul kasutajakonto blokeeritakse.

 

Teisi töid samas valdkonnas

Valdkonnas "Projekteerimine" on 6 aktiivset tööd

no-img Pilt puudub

1-kordse 120 m2 elumaja põhiprojekt

Asukoht: Harjumaa, Metsanurme
Aega jäänud: 8p 10h
Tehtud pakkumisi: 4

no-img Pilt puudub

Saunamaja eelprojekt ehitusteatiseks

Asukoht: Lääne-Virumaa
Aega jäänud: 1p 10h
Tehtud pakkumisi: 3

Vanemad teated:

Vaata kõiki

Sellel veebilehel kasutatakse küpsiseid. Kasutamist jätkates nõustute küpsiste kasutamisega.

Sulge
 
Minu pakkumine

Reeglid

Pakkumise kirjelduse väli on mõeldud pakkumise detailsemaks lahti kirjutamiseks. Pikema teksti mugavaks sisestamiseks klikkige kasti paremal ülaservas oleval ikoonil.
Pakkumist tehes on keelatud postitada enda kontaktandmeid (nimi, telefon, aadress jne). Me jälgime ja analüüsime pakkumisi, et vältida pettuseid ja reeglite rikkumisi.
Rikkumise puhul kasutajakonto blokeeritakse.