+ Lisa oma töö      

Otsid ehitajat "Projekteerimine" valdkonnast?

Parima pakkumise ja teostaja leidmiseks lisa oma töö.

Hange on lõppenud!

Võitjaks osutus kasutaja ID 31470

Korraldaja hinnang tehtud tööle

 
5.0
14.08.2025
Töökiirus: 12345
Kvaliteet: 12345
Hind: 12345

Väga meeldiv, sujuv ja professionaalne töötegemine. - Liis M.

Elektriprojekt

ID 118502

952 vaatamist

Prindi

  • check Pakkumiste tegemine
    kuni 07.07.2025
  • check Võitja valik kuni
    14.07.2025
  • 3 Töö teostamine
    ja hinnang
Hanke lõpp: E, 7. juuli, 2025
Maakond: Harjumaa
Linn: Tallinn
Tööde lõpp: Kokkuleppel
Ehitusmaterjalid: Töö tegija poolt
Soovin pakkumisi: Summa kogu projektile

Töö sisu

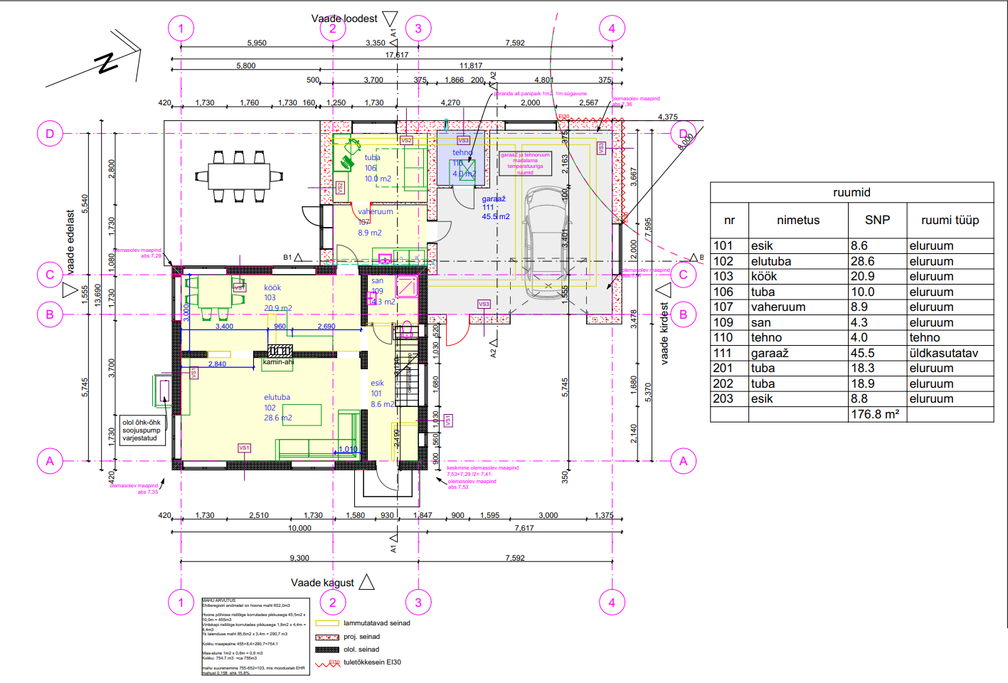
Vaja läheb elektriprojekti, mille järgi üldehituse käigus paigaldada elektrijuhtmestik eramaja juurdeehituse osale (joonisel ruumid 106, 107, 110, 111)
Palun lisada, millal oleks võimalik tööga alustada ning orienteeruv tööle kuluv aeg.

Pildid, video ja failid

Hanke korraldaja: eraisik ID63713

Pakkumised

Pakkumisi kokku: 1

Ettevõte Summa Käibemaks Lisatud Vestlus
Kasutaja ikoon ID31470
Pakkuja profiil Väike nool paremale
600€ KM lisandub KM lisandub 01.07.2025 Vestlus (0)

Pakkumise kirjeldus:

Tere,

teeme pakkumise antud hoone tugevvoolupaigaldise EVS standardile vastavas mahus tööprojekti koostamiseks (tiitelleht, dok nimekiri, seletuskiri, korruseplaanid, kilbiskeem, potentsiaaliühtlustuse skeem, materjalide loend). Pärast lähteülesande kättesaamist saame projekti valmimise ajaks lubada maksimaalselt 1 töönädal. Töid teostab volita ... Rohkem

Küsimused hanke korraldajale

Küsimus: private ID31470   01.07.2025 08:28
Tere, kas tegemist on 2-korruselise eramuga? Kas hind peab sisaldama ka nõrkvoolu osa, nt suitsuandurid, side, valveandurid, videovalve? Parimat, V.

Teavita reeglite rikkumisest

Korraldaja vastus: 01.07.2025 08:34

Tere! Tegemist on ühekorruselise juurdeehituse osaga (joonisel "proj. seinad"). Peakilp on ja jääb vanasse hooneosasse. Nõrkvoolu ei ole vaja.

Teavita reeglite rikkumisest

Lisa küsimus

Lisa küsimus

Minu pakkumine

Reeglid

Pakkumise kirjelduse väli on mõeldud pakkumise detailsemaks lahti kirjutamiseks. Pikema teksti mugavaks sisestamiseks klikkige kasti paremal ülaservas oleval ikoonil.
Pakkumist tehes on keelatud postitada enda kontaktandmeid (nimi, telefon, aadress jne). Me jälgime ja analüüsime pakkumisi, et vältida pettuseid ja reeglite rikkumisi.
Rikkumise puhul kasutajakonto blokeeritakse.

 

Teisi töid samas valdkonnas

Valdkonnas "Projekteerimine" on 6 aktiivset tööd

no-img Pilt puudub

1-kordse 120 m2 elumaja põhiprojekt

Asukoht: Harjumaa, Metsanurme
Aega jäänud: 8p 21h
Tehtud pakkumisi: 4

no-img Pilt puudub

Saunamaja eelprojekt ehitusteatiseks

Asukoht: Lääne-Virumaa
Aega jäänud: 1p 21h
Tehtud pakkumisi: 3

Vanemad teated:

Vaata kõiki

Sellel veebilehel kasutatakse küpsiseid. Kasutamist jätkates nõustute küpsiste kasutamisega.

Sulge
 
Minu pakkumine

Reeglid

Pakkumise kirjelduse väli on mõeldud pakkumise detailsemaks lahti kirjutamiseks. Pikema teksti mugavaks sisestamiseks klikkige kasti paremal ülaservas oleval ikoonil.
Pakkumist tehes on keelatud postitada enda kontaktandmeid (nimi, telefon, aadress jne). Me jälgime ja analüüsime pakkumisi, et vältida pettuseid ja reeglite rikkumisi.
Rikkumise puhul kasutajakonto blokeeritakse.