+ Lisa oma töö      

Otsid ehitajat "Projekteerimine" valdkonnast?

Parima pakkumise ja teostaja leidmiseks lisa oma töö.

Hange on lõppenud!

Võitjaks osutus kasutaja ID 48870

Korraldaja hinnang tehtud tööle

 
5.0
25.07.2025
Töökiirus: 12345
Kvaliteet: 12345
Hind: 12345

Kõik oli nii nagu peab. - Madis K.

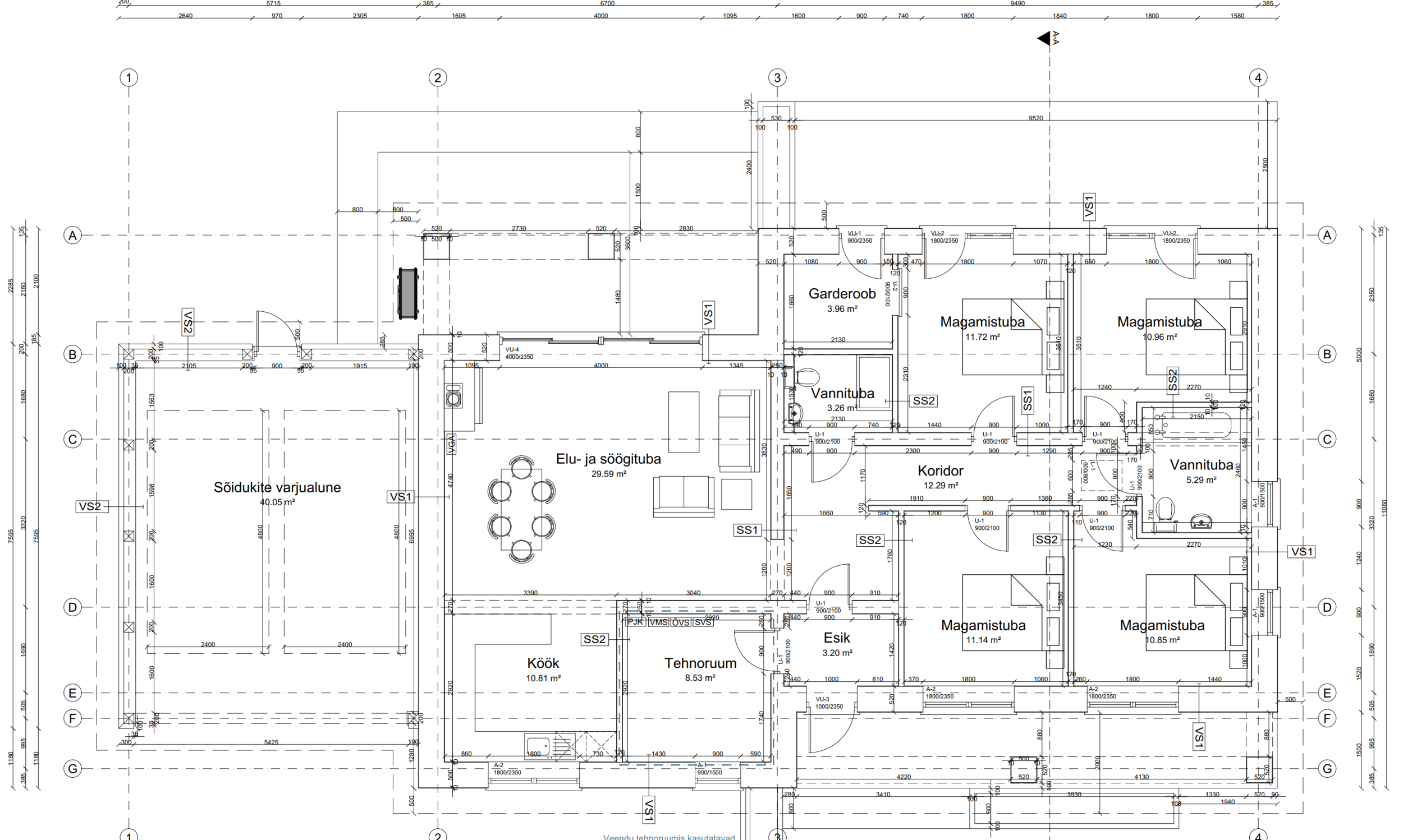
Plaatvundamendi põhiprojekt

ID 115962

1057 vaatamist

Prindi

  • check Pakkumiste tegemine
    kuni 29.05.2025
  • check Võitja valik kuni
    05.06.2025
  • 3 Töö teostamine
    ja hinnang
Hanke lõpp: N, 29. mai, 2025
Maakond: Harjumaa
Muu asula: Kiili
Tööde lõpp: Kokkuleppel
Ehitusmaterjalid: Töö tellija poolt
Soovin pakkumisi: Summa kogu projektile

Töö sisu

Olemas eelprojekt ja asendiplaan (dwg joonised on ka olemas kõige kohta). Pinnas on saviliiv- ja liivsavimoreen (kihi tüsedus 13m, kihi lamami sügavus 13m). Seinad on plaanitud bauroc ECOTERM+ 500 kivist, plekkkatus, ühekordne hoone. "Garaaz" on lahtiste seintega katusealune, Samuti sooviks võimalusel lahenduse kirjeldust ka vundamendi drenaažile. Rohkem ei oska hetkel midagi lisada, kui on lisainfot vaja siis palun küsige.

Pildid, video ja failid

Hanke korraldaja: eraisik ID70014

Pakkumised

Pakkumisi kokku: 1

Ettevõte Summa Käibemaks Lisatud Vestlus
Kasutaja ikoon ID48870
Pakkuja profiil Väike nool paremale
750€ Ei ole KMKR Ei ole KMKR 23.05.2025 Vestlus (0)

Pakkumise kirjeldus:

Tere,
pakkumise hind sisaldab järgmist:
vundamendi ehituskonstruktsioonide projekteerimine põhiprojekti staadiumis kooskõlas arhitektuurse projektiga (vt EVS 932:2017)
Projekti sisu:
1. konstruktsiooniarvutused
2. joonised
3. vundamendi plaan

Olen insener, arhitekt tase 7.
Omame MTR registreeringut, EEP-EEO-EPE-EEK,
EEP: arhitektuuri osa
hoone ... Rohkem

Küsimused hanke korraldajale

Hanke korraldajale ei ole veel küsimusi esitatud.

Lisa küsimus

Lisa küsimus

Minu pakkumine

Reeglid

Pakkumise kirjelduse väli on mõeldud pakkumise detailsemaks lahti kirjutamiseks. Pikema teksti mugavaks sisestamiseks klikkige kasti paremal ülaservas oleval ikoonil.
Pakkumist tehes on keelatud postitada enda kontaktandmeid (nimi, telefon, aadress jne). Me jälgime ja analüüsime pakkumisi, et vältida pettuseid ja reeglite rikkumisi.
Rikkumise puhul kasutajakonto blokeeritakse.

 

Teisi töid samas valdkonnas

Valdkonnas "Projekteerimine" on 6 aktiivset tööd

no-img Pilt puudub

1-kordse 120 m2 elumaja põhiprojekt

Asukoht: Harjumaa, Metsanurme
Aega jäänud: 8p 18h
Tehtud pakkumisi: 4

no-img Pilt puudub

Saunamaja eelprojekt ehitusteatiseks

Asukoht: Lääne-Virumaa
Aega jäänud: 1p 18h
Tehtud pakkumisi: 3

Vanemad teated:

Vaata kõiki

Sellel veebilehel kasutatakse küpsiseid. Kasutamist jätkates nõustute küpsiste kasutamisega.

Sulge
 
Minu pakkumine

Reeglid

Pakkumise kirjelduse väli on mõeldud pakkumise detailsemaks lahti kirjutamiseks. Pikema teksti mugavaks sisestamiseks klikkige kasti paremal ülaservas oleval ikoonil.
Pakkumist tehes on keelatud postitada enda kontaktandmeid (nimi, telefon, aadress jne). Me jälgime ja analüüsime pakkumisi, et vältida pettuseid ja reeglite rikkumisi.
Rikkumise puhul kasutajakonto blokeeritakse.