+ Lisa oma töö      

Otsid ehitajat "Projekteerimine" valdkonnast?

Parima pakkumise ja teostaja leidmiseks lisa oma töö.

Hange on lõppenud!

Võitjaks osutus kasutaja ID 86806

Suvila ümberehitus projekt

ID 115179

808 vaatamist

Prindi

  • check Pakkumiste tegemine
    kuni 27.05.2025
  • check Võitja valik kuni
    27.05.2025
  • 3 Töö teostamine
    ja hinnang
Hanke lõpp: T, 27. mai, 2025
Maakond: Harjumaa
Muu asula: Laulasmaa
Tööde lõpp: Kokkuleppel
Ehitusmaterjalid: Töö tegija poolt
Soovin pakkumisi: Tüki- või ühikuhinda

Töö sisu

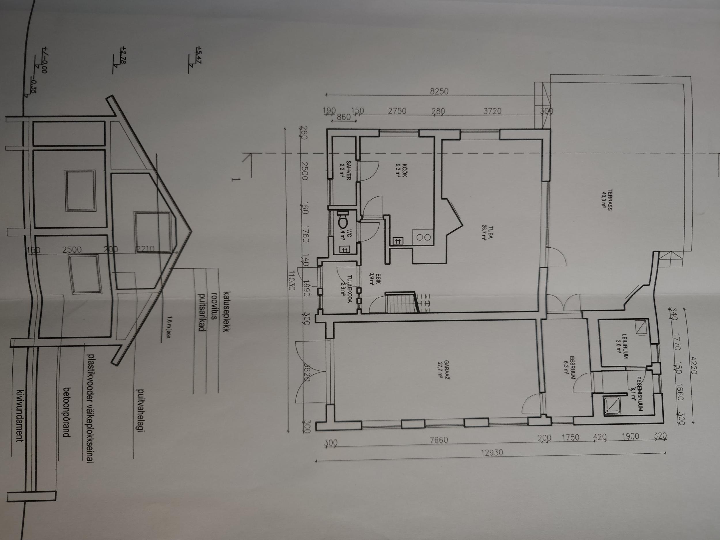
Sooviks projekti suvila ümber ehitamiseks elamuks.
Kuna selline tegevus on esmakordne ja kogemus puudub siis sooviks ka nõu ja abi paberite ja lubade hankimisel.
Plaanitavad muudatused majas oleks:
- Põrandate soojustamine ja vesipõrandakütte paigaldamine.
- Majasisene kanalisatsioon ja veetorustik, kui projekt on nõutud. Tsentraalne veevärk on majja sisse ära veetud.
- Akende vahetus ja mõnedel asukoha ja suuruse muutmine.
- Kahe kandva seina muutmine, ühe asukoha muutmine ja teisel asendamine tugitalaga.
- Ühe ukseava lisamine siseseina ja kahe majja sissepääsu sulgemine ja kinni ehitamine.
- Maja sisemiste seinte ja ruumide muutmine.( Ei ole kandvad seinad)
- Ventilatsiooni projekt, kui on nõutud.
- Elektriprojekt, kui on nõutud.
- Maja seinte soojustamine väljast.(Hetkel 10cm villa ja vooder)
- Vundamendi soojustamine.

Majal on olemas mõõdistusprojekt.

Elamispind 86,2 ruutmeetrit
Ja suletud netopind 113,9 ruutmeetrit

Sooviks, et vajalikud projekti osad ja nende hinnad oleks eraldi välja toodud.

Pildid, video ja failid

Hanke korraldaja: eraisik ID90147

Pakkumised

Pakkumisi kokku: 3

Ettevõte Summa Käibemaks Lisatud Vestlus
Kasutaja ikoon ID76566
Pakkuja profiil Väike nool paremale
1 900€ KM lisandub KM lisandub 22.05.2025 Vestlus (0)

Pakkumise kirjeldus:

Tere!

Väljatoodud hinnas pakume arhitektuurse eelprojekti koostamist hoone rekonstrueerimiseks ja kooskõlastamist omavalitsusega.

Töömaht sisaldab:

- Eelprojekti taotluse joonised: vundament, korruste plaanid, katuseplaan, maja sektsioon, vaated, krundi planeering geoalusel
- Seletuskiri
- Taotluste esitamist ning kohaliku omavalitsusega s ... Rohkem

Kasutaja ikoon ID69164
Pakkuja profiil Väike nool paremale
2 000€ Ei ole KMKR Ei ole KMKR 22.05.2025 Vestlus (0)

Pakkumise kirjeldus:

Hoone ehitusprojekt eelprojekti staadiumis.

Koostatav projekt vastab EVS 932:2017 ja MKM määruse nr. 97 „Nõuded ehitusprojektile1" nõuetele.

Märkused:
1. Hinnapakkumine ei sisalda Topo-geodeetiliste, ehitusgeoloogiliste, dendroloogiliste uuringute koostamist, ega nende maksumust,
2. Projektiga ja projekteerimisega seotud kõik kooskõlastustas ... Rohkem

Kasutaja ikoon ID86806
Pakkuja profiil Väike nool paremale
1 700€ Ei ole KMKR Ei ole KMKR 23.05.2025 Vestlus (0)

Pakkumise kirjeldus:

Tere!

pakkumine sisaldab arhitektuurset rekonstrueerimisprojekti eelprojekti staadiumis, koos ehitusloa taotlemisega. Teostame kohapealse ülevaatuse ja paneme kliendiga paika täpse lähteülesande.
- Seletuskiri
- Asendiplaan
- Vaated, lõiked
- Korruste plaanid
- Ehitusloa taotlemine

Hind ei sisalda eriosade projekte, mis ei ole vajalikud ka eh ... Rohkem

Küsimused hanke korraldajale

Hanke korraldajale ei ole veel küsimusi esitatud.

Lisa küsimus

Lisa küsimus

Minu pakkumine

Reeglid

Pakkumise kirjelduse väli on mõeldud pakkumise detailsemaks lahti kirjutamiseks. Pikema teksti mugavaks sisestamiseks klikkige kasti paremal ülaservas oleval ikoonil.
Pakkumist tehes on keelatud postitada enda kontaktandmeid (nimi, telefon, aadress jne). Me jälgime ja analüüsime pakkumisi, et vältida pettuseid ja reeglite rikkumisi.
Rikkumise puhul kasutajakonto blokeeritakse.

 

Teisi töid samas valdkonnas

Valdkonnas "Projekteerimine" on 7 aktiivset tööd

Suvila eelprojekti koostamine

Asukoht: Tartumaa, Erala
Aega jäänud: 10p 6h
Tehtud pakkumisi: 8

Kortermaja renoveerimisprojekti koostamine

Asukoht: Viljandimaa, Viljandi
Aega jäänud: 6h 31 min
Tehtud pakkumisi: 7

Vanemad teated:

Vaata kõiki

Sellel veebilehel kasutatakse küpsiseid. Kasutamist jätkates nõustute küpsiste kasutamisega.

Sulge
 
Minu pakkumine

Reeglid

Pakkumise kirjelduse väli on mõeldud pakkumise detailsemaks lahti kirjutamiseks. Pikema teksti mugavaks sisestamiseks klikkige kasti paremal ülaservas oleval ikoonil.
Pakkumist tehes on keelatud postitada enda kontaktandmeid (nimi, telefon, aadress jne). Me jälgime ja analüüsime pakkumisi, et vältida pettuseid ja reeglite rikkumisi.
Rikkumise puhul kasutajakonto blokeeritakse.