+ Lisa oma töö      

Otsid ehitajat "Projekteerimine" valdkonnast?

Parima pakkumise ja teostaja leidmiseks lisa oma töö.

Hange on lõppenud!

Võitjaks osutus kasutaja ID 86685

Korraldaja hinnang tehtud tööle

5.0
11.02.2025
Töökiirus: 12345
Kvaliteet: 12345
Hind: 12345

Koostöö oli kiire ja sujuv - Merilin L.

Kütte, ventilatsiooni ja jahutuse projekt eramajale

ID 107460

1872 vaatamist

Prindi

  • check Pakkumiste tegemine
    kuni 10.12.2024
  • check Võitja valik kuni
    17.12.2024
  • 3 Töö teostamine
    ja hinnang
Hanke lõpp: T, 10. detsember, 2024
Maakond: Pärnumaa
Tööde lõpp: Kokkuleppel
Ehitusmaterjalid: Töö tellija poolt
Soovin pakkumisi: Summa kogu projektile

Töö sisu

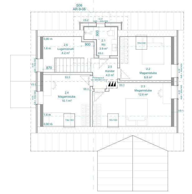
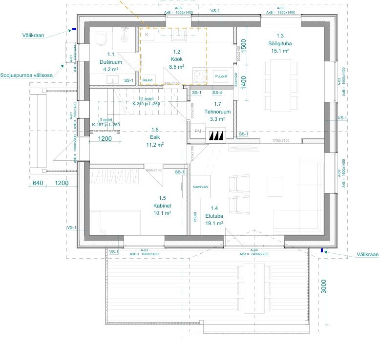
Töö sisuks on koostada 115m2 eramajale kütte-, ventilatsiooni- ja jahutussüsteemide projekt põhiprojekti staadiumis. Küttesüsteemina on planeeritud õhk-vesisoojuspump. Ventilatsioon peab olema lahendatud sundventilatsioonina.

Pildid, video ja failid

Hanke korraldaja: eraisik ID74352

Pakkumised

Pakkumisi kokku: 4

Ettevõte Summa Käibemaks Lisatud Vestlus
Kasutaja ikoon ID63115
Pakkuja profiil Väike nool paremale
1 400€ KM lisandub KM lisandub 27.11.2024 Vestlus (2)

Pakkumise kirjeldus:

Tere

Hinnapakkumine sisaldab kütte-, ventilatsiooni-, jahutussüsteemide põhiprojekti.
Ettemaksu ei soovi. Vastutava isiku allkiri on hinna sees.
Kütte pakkumine sisaldab soojuskadude arvutamist dünaamilises tarkvaras, põrandküttetorude projekteerimist, magistraalide jooniseid, soojussõlme projekteerimist, põhiseadmete mahuloetelu ja seletuski ... Rohkem

Kasutaja ikoon ID84522
Pakkuja profiil Väike nool paremale
1 900€ KM lisandub KM lisandub 27.11.2024 Vestlus (1)
Kasutaja ikoon ID48870
Pakkuja profiil Väike nool paremale
950€ Ei ole KMKR Ei ole KMKR 10.12.2024 Vestlus (0)

Pakkumise kirjeldus:

Minu pakkumine küttesüsteemi ja ventilatsioonisüsteemi projekteerimiseks on 950 eurot.

Kasutaja ikoon ID86685
Pakkuja profiil Väike nool paremale
1 100€ Ei ole KMKR Ei ole KMKR 10.12.2024 Vestlus (2)

Pakkumise kirjeldus:

Projekt vastavalt tellija soovidele ja normidele.
Kogemus paljude erinevate objektidega.
Tööga saab alustada koheselt.

Küsimused hanke korraldajale

Hanke korraldajale ei ole veel küsimusi esitatud.

Lisa küsimus

Lisa küsimus

Minu pakkumine

Reeglid

Pakkumise kirjelduse väli on mõeldud pakkumise detailsemaks lahti kirjutamiseks. Pikema teksti mugavaks sisestamiseks klikkige kasti paremal ülaservas oleval ikoonil.
Pakkumist tehes on keelatud postitada enda kontaktandmeid (nimi, telefon, aadress jne). Me jälgime ja analüüsime pakkumisi, et vältida pettuseid ja reeglite rikkumisi.
Rikkumise puhul kasutajakonto blokeeritakse.

 

Teisi töid samas valdkonnas

Valdkonnas "Projekteerimine" on 7 aktiivset tööd

no-img Pilt puudub

1-kordse 120 m2 elumaja põhiprojekt

Asukoht: Harjumaa, Metsanurme
Aega jäänud: 8p 9h
Tehtud pakkumisi: 4

no-img Pilt puudub

Saunamaja eelprojekt ehitusteatiseks

Asukoht: Lääne-Virumaa
Aega jäänud: 1p 9h
Tehtud pakkumisi: 3

Vanemad teated:

Vaata kõiki

Sellel veebilehel kasutatakse küpsiseid. Kasutamist jätkates nõustute küpsiste kasutamisega.

Sulge
 
Minu pakkumine

Reeglid

Pakkumise kirjelduse väli on mõeldud pakkumise detailsemaks lahti kirjutamiseks. Pikema teksti mugavaks sisestamiseks klikkige kasti paremal ülaservas oleval ikoonil.
Pakkumist tehes on keelatud postitada enda kontaktandmeid (nimi, telefon, aadress jne). Me jälgime ja analüüsime pakkumisi, et vältida pettuseid ja reeglite rikkumisi.
Rikkumise puhul kasutajakonto blokeeritakse.