+ Lisa oma töö      

Otsid ehitajat "Elektritööd" valdkonnast?

Parima pakkumise ja teostaja leidmiseks lisa oma töö.

Pakkumised

Pakkumisi kokku: 1

Ettevõte Summa Käibemaks Lisatud Vestlus
Kasutaja ikoon ID49928
Pakkuja profiil Väike nool paremale
12 000€ Sisaldab KM Sisaldab KM 17.06.2024 Vestlus (0)

Pakkumise kirjeldus:

Elektritööd
Freesimistööd
Elektrikaablite paigaldus
Cat6 kaablite paigaldus
Maanduskontuur
Seadmetooside paigaldus
Elektrikilbi paigaldus
Elektripaigaldise audit
Pistikupesade ja valgustite paigaldus(ei sisalda pistikupesasid ja valgusteid)

Küsimused hanke korraldajale

Küsimus: private ID52993   15.06.2024 07:50
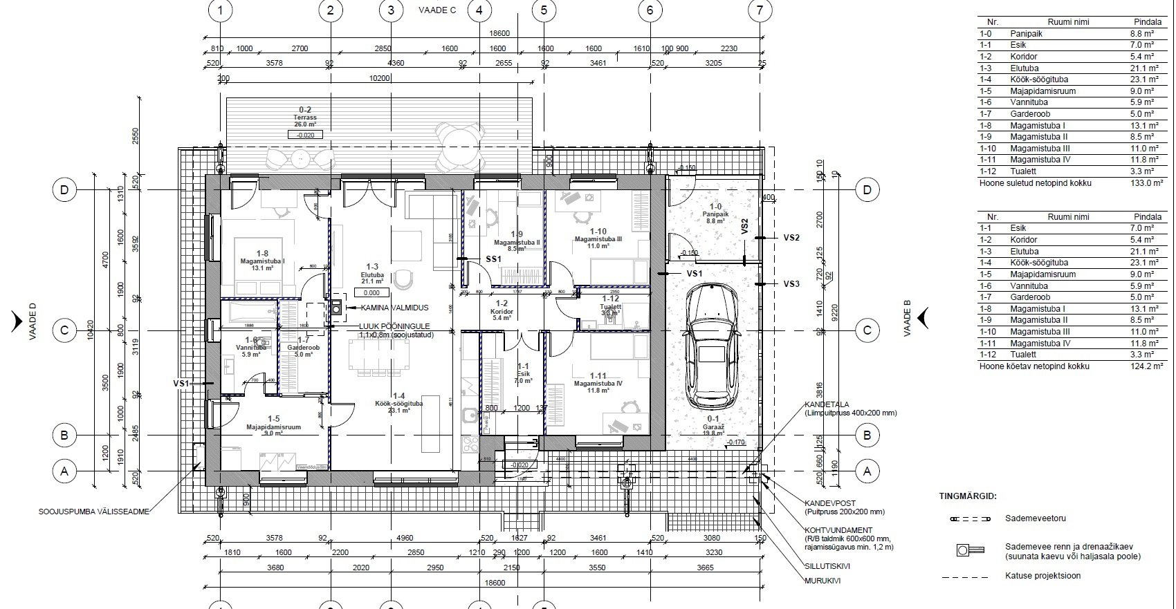
Joonised peaks üles laadima siia kuna Hanke keskkonnas saab kontakte avaldada/vahetada ainult hanke võitjaga, pakkumisi aga ilma joonisteta suht raske teha.

Teavita reeglite rikkumisest

Korraldaja vastus: 15.06.2024 13:30

Lisasin joonised.

Teavita reeglite rikkumisest

Lisa küsimus

Lisa küsimus

Minu pakkumine

Reeglid

Pakkumise kirjelduse väli on mõeldud pakkumise detailsemaks lahti kirjutamiseks. Pikema teksti mugavaks sisestamiseks klikkige kasti paremal ülaservas oleval ikoonil.
Pakkumist tehes on keelatud postitada enda kontaktandmeid (nimi, telefon, aadress jne). Me jälgime ja analüüsime pakkumisi, et vältida pettuseid ja reeglite rikkumisi.
Rikkumise puhul kasutajakonto blokeeritakse.

 

Teisi töid samas valdkonnas

Valdkonnas "Elektritööd" on 5 aktiivset tööd

Vana talu elektrisüsteemi uuendamine (kilp, pistikud, välivalgustus, EV valmidus)

Asukoht: Raplamaa, Suurekivi
Aega jäänud: 1p 15h
Tehtud pakkumisi: 5

Korteri remont

Asukoht: Tartumaa
Aega jäänud: 15h 35 min
Tehtud pakkumisi: 2

Vanemad teated:

Vaata kõiki

Sellel veebilehel kasutatakse küpsiseid. Kasutamist jätkates nõustute küpsiste kasutamisega.

Sulge
 
Minu pakkumine

Reeglid

Pakkumise kirjelduse väli on mõeldud pakkumise detailsemaks lahti kirjutamiseks. Pikema teksti mugavaks sisestamiseks klikkige kasti paremal ülaservas oleval ikoonil.
Pakkumist tehes on keelatud postitada enda kontaktandmeid (nimi, telefon, aadress jne). Me jälgime ja analüüsime pakkumisi, et vältida pettuseid ja reeglite rikkumisi.
Rikkumise puhul kasutajakonto blokeeritakse.