+ Lisa oma töö      

Otsid ehitajat "Elektritööd" valdkonnast?

Parima pakkumise ja teostaja leidmiseks lisa oma töö.

Kogu korteri uus kaabeldus, tooside ja soonte freesimine. Kilbi koostamine tuleb hiljem kui uus sein kuhu kilp tuleb paigas.

ID 97878

403 vaatamist

Prindi

  • check Pakkumiste tegemine
    kuni 07.06.2024
  • check Võitja valik kuni
    14.06.2024
  • 3 Töö teostamine
    ja hinnang
Hanke lõpp: R, 7. juuni, 2024
Maakond: Jõgevamaa
Linn: Põltsamaa
Tööde lõpp: Kokkuleppel
Ehitusmaterjalid: Töö tellija poolt
Soovin pakkumisi: Summa kogu projektile

Töö sisu

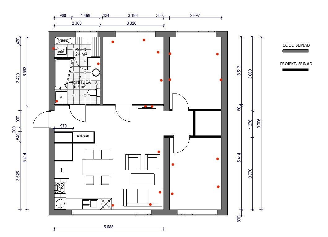
Pildile on märgitud palju umbes pistikuid tuleb. Iga pistik läheb hiljem eraldi kaitsme alla. Korteri plaanist on näha kuhu saun ja tehnoruum ning köök.

Pildid, video ja failid

Hanke korraldaja: eraisik ID82608

Pakkumised

Pakkumisi kokku: 1

Ettevõte Summa Käibemaks Lisatud Vestlus
Kasutaja ikoon ID81556
Pakkuja profiil Väike nool paremale
3 500€ KM lisandub KM lisandub 04.06.2024 Vestlus (0)

Pakkumise kirjeldus:

Tere!

Pakkumine sisaldab järgnevaid töid:
•kaabeldustööd
•tooside paigaldus, freesimine
•korterisisese jaotuskilbi paigaldus ja ühendmaine
•toitekaabel koridorist jaotuskilpi
•peale viimistlustöid lülitite ja pistikupesade paigaldus
•dokumentatsioon(teostusjoonis, kilbijoonis)

Pakkumine ei sisalda viimistlustöid.

Pakkumine ... Rohkem

Küsimused hanke korraldajale

Küsimus: private ID81556   04.06.2024 19:03
Tere!
Mis materjalist olemasolevad seinad? Kas krohvitakse või tuleb karkass?
Kas põrandad võetakse üles? Kas paigaltakse ripplagi või krohvitakse olemasolev?
Millal oleks soovitud tööde algus aeg?

Teavita reeglite rikkumisest

Korraldaja vastus: 04.06.2024 19:25

Tere, seinad poorbetoon. Seinad krohvitakse. Vana põrand võetakse välja ning lagi tuleb uus kips. Tööde algus aeg siis kui põrandad väljas ja vaheseinad paigas uued baurocist.

Teavita reeglite rikkumisest

Lisa küsimus

Lisa küsimus

Minu pakkumine

Reeglid

Pakkumise kirjelduse väli on mõeldud pakkumise detailsemaks lahti kirjutamiseks. Pikema teksti mugavaks sisestamiseks klikkige kasti paremal ülaservas oleval ikoonil.
Pakkumist tehes on keelatud postitada enda kontaktandmeid (nimi, telefon, aadress jne). Me jälgime ja analüüsime pakkumisi, et vältida pettuseid ja reeglite rikkumisi.
Rikkumise puhul kasutajakonto blokeeritakse.

 

Teisi töid samas valdkonnas

Valdkonnas "Elektritööd" on 5 aktiivset tööd

Vana talu elektrisüsteemi uuendamine (kilp, pistikud, välivalgustus, EV valmidus)

Asukoht: Raplamaa, Suurekivi
Aega jäänud: 1p 8h
Tehtud pakkumisi: 5

Kaablite vahetus paneelmaja korteris ja siseviimistlus

Asukoht: Harjumaa, Tallinn
Aega jäänud: 6p 8h
Tehtud pakkumisi: 3

Vanemad teated:

Vaata kõiki

Sellel veebilehel kasutatakse küpsiseid. Kasutamist jätkates nõustute küpsiste kasutamisega.

Sulge
 
Minu pakkumine

Reeglid

Pakkumise kirjelduse väli on mõeldud pakkumise detailsemaks lahti kirjutamiseks. Pikema teksti mugavaks sisestamiseks klikkige kasti paremal ülaservas oleval ikoonil.
Pakkumist tehes on keelatud postitada enda kontaktandmeid (nimi, telefon, aadress jne). Me jälgime ja analüüsime pakkumisi, et vältida pettuseid ja reeglite rikkumisi.
Rikkumise puhul kasutajakonto blokeeritakse.