+ Lisa oma töö      

Otsid ehitajat "Üldehitus" valdkonnast?

Parima pakkumise ja teostaja leidmiseks lisa oma töö.

Maja renoveerimine ja laiendamine

ID 97408

904 vaatamist

Prindi

  • check Pakkumiste tegemine
    kuni 26.06.2024
  • check Võitja valik kuni
    03.07.2024
  • 3 Töö teostamine
    ja hinnang
Hanke lõpp: K, 26. juuni, 2024
Maakond: Harjumaa
Muu asula: Anija
Tööde lõpp: Kokkuleppel
Ehitusmaterjalid: Töö tegija poolt
Soovin pakkumisi: Summa kogu projektile

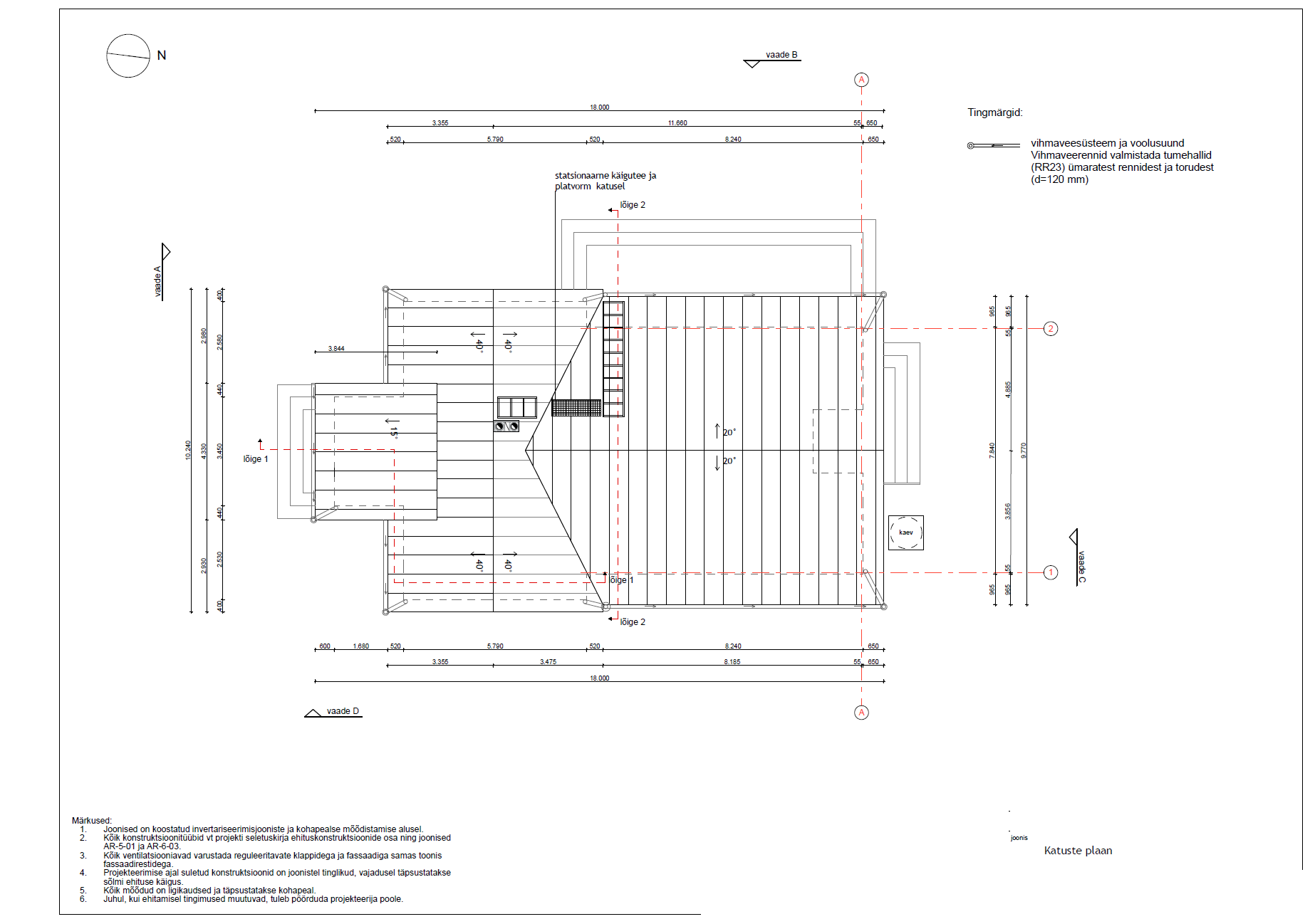
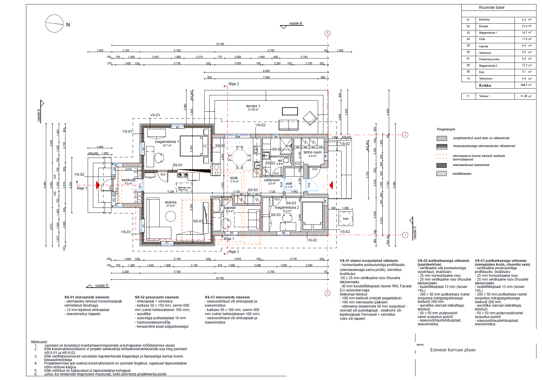
Töö sisu

Maja renoveerimine ja laiendamine vastavalt olemasolevale projektile. Projekt sisaldab muuhulgas:
1. maja osaline lammutus
2. vundamendi laiendamine
3. uue majaosa karkass
4. uue majaosa soojustus
5. vana majaosa soojustus
6. katuse vahetus
7. akende ja uste vahetamine
8. kütte ja ventilatsioonisüsteemi rajamine ( maaküte)
9. maja uus fassaad
Ehitusluba on olemas.
Projekt ei sisalda siseviimistluse töid.
Huvi korral võin saata projekti seletuskirja. Soov on kasutada Kredexi Väikeelamute rekonstrueerimistoetust 2024 RRF.

Pildid, video ja failid

Hanke korraldaja: eraisik ID82423

Pakkumised

Pakkumisi kokku: 3

Ettevõte Summa Käibemaks Lisatud Vestlus
Kasutaja ikoon ID70952
Pakkuja profiil Väike nool paremale
150 000€ KM lisandub KM lisandub 26.06.2024 Vestlus (0)

Pakkumise kirjeldus:

Tere,

Hind on idikatiivne kuna oleks vaja teostada enne ülevaatus ning siis saaks juba täpsema hinna paika panna.
Võime vestluses juba täpsemalt arutada.
Saame koostada kõik vajalkud dokumendid jne.
Kõigile töödele garantii

Lugupidamisega

Kasutaja ikoon ID59528
Pakkuja profiil Väike nool paremale
101 460€ KM lisandub KM lisandub 26.06.2024 Vestlus (5)

Pakkumise kirjeldus:

Tere,

Pakkumine tehtud vastavalt Hankes kirjeldatud töödele. Täpsema hinnakalkulatsiooni saame saata vestluses.
Lammutus 5125 +km
Vundament ja põrand 36 595+km
Seina konstruktsioonid ja fassaad 24 750+km
Katuse konstruktsioon ja kate 34 990

Avatäited ja küte pole hinnas, kuna ei tea millised tooteid tahate kasutada

Meie profiili alt näet ... Rohkem

Kasutaja ikoon ID8633
Pakkuja profiil Väike nool paremale
115 000€ KM lisandub KM lisandub 26.06.2024 Vestlus (0)

Küsimused hanke korraldajale

Küsimus: private ID59528   25.06.2024 19:57
Tere,

Oleme huvitatud hinnapakkumise koostamisest
Kas saate pdf formaadis joonised lisada palun ?

Parimat,

Erik

Teavita reeglite rikkumisest

Korraldaja vastus: 25.06.2024 22:09

Tere. Lisasin PDF failid.

Teavita reeglite rikkumisest

Küsimus: private ID59528   26.06.2024 00:08
Saad seletuskirja ka veel lisada, siis peaks kõik olemas olema pakkumise koostamiseks

Teavita reeglite rikkumisest

Korraldaja vastus: 26.06.2024 18:56

Tere.
Lisasin ka seletuskirja.

Teavita reeglite rikkumisest

Lisa küsimus

Lisa küsimus

Minu pakkumine

Reeglid

Pakkumise kirjelduse väli on mõeldud pakkumise detailsemaks lahti kirjutamiseks. Pikema teksti mugavaks sisestamiseks klikkige kasti paremal ülaservas oleval ikoonil.
Pakkumist tehes on keelatud postitada enda kontaktandmeid (nimi, telefon, aadress jne). Me jälgime ja analüüsime pakkumisi, et vältida pettuseid ja reeglite rikkumisi.
Rikkumise puhul kasutajakonto blokeeritakse.

 

Teisi töid samas valdkonnas

Valdkonnas "Üldehitus" on 30 aktiivset tööd

Maja värvimine

Asukoht: Harjumaa, Saue
Aega jäänud: 2p 6h
Tehtud pakkumisi: 5

Terassi õlitamine, 13,7 ruutu

Asukoht: Harjumaa, Saue
Aega jäänud: 5p 6h
Tehtud pakkumisi: 5

Vanemad teated:

Vaata kõiki

Sellel veebilehel kasutatakse küpsiseid. Kasutamist jätkates nõustute küpsiste kasutamisega.

Sulge
 
Minu pakkumine

Reeglid

Pakkumise kirjelduse väli on mõeldud pakkumise detailsemaks lahti kirjutamiseks. Pikema teksti mugavaks sisestamiseks klikkige kasti paremal ülaservas oleval ikoonil.
Pakkumist tehes on keelatud postitada enda kontaktandmeid (nimi, telefon, aadress jne). Me jälgime ja analüüsime pakkumisi, et vältida pettuseid ja reeglite rikkumisi.
Rikkumise puhul kasutajakonto blokeeritakse.