+ Lisa oma töö      

Otsid ehitajat "Ehitusprojektid" valdkonnast?

Parima pakkumise ja teostaja leidmiseks lisa oma töö.

Hange on lõppenud!

Võitjaks osutus kasutaja ID 79821

Korraldaja hinnang tehtud tööle

5.0
13.06.2024
Töökiirus: 12345
Kvaliteet: 12345
Hind: 12345

Super koostöö ja kaasa mõtlemine Stanislavi poolt. Töö kiire ja asjalik. - Mairo P.

Elektriprojekt eramule

ID 96580

621 vaatamist

Prindi

  • check Pakkumiste tegemine
    kuni 23.05.2024
  • check Võitja valik kuni
    23.05.2024
  • 3 Töö teostamine
    ja hinnang
Hanke lõpp: N, 23. mai, 2024
Maakond: Harjumaa
Muu asula: Hüüru
Tööde lõpp: Kokkuleppel
Ehitusmaterjalid: Töö tellija poolt
Soovin pakkumisi: Summa kogu projektile

Töö sisu

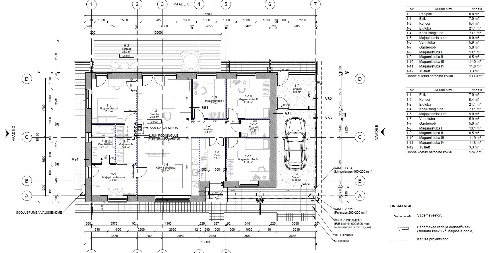
Soovime uusehitusele elektriprojekti.

Pildid, video ja failid

Hanke korraldaja: eraisik ID77718

Pakkumised

Pakkumisi kokku: 5

Ettevõte Summa Käibemaks Lisatud Vestlus
Kasutaja ikoon ID79821
Pakkuja profiil Väike nool paremale
490€ KM lisandub KM lisandub 15.05.2024 Vestlus (4)

Pakkumise kirjeldus:

Eesti Vabariigi normidele ja EVS standarditele vastav kvaliteetne põhjalik põhiprojekt. Projekti valmimise aeg 10 päeva jooksul peale alusmaterjali ja lähteülesanne esitamist.

Hind sisaldab:
1. Tekstiline osa (tiitelleht, dokumentide nimekiri, seletuskiri, spetsifikatsioon)
2. Struktuurskeemid (elektrivarustus, potentsiaalühtlustus, välistarbijad ... Rohkem

Kasutaja ikoon ID31470
Pakkuja profiil Väike nool paremale
400€ KM lisandub KM lisandub 16.05.2024 Vestlus (0)

Pakkumise kirjeldus:

Tere, teeme pakkumise antud hoone tugevvoolupaigaldise põhiprojekti koostamiseks. Samadel joonistel näitame ära ka sidepaigaldise pistikupesad. Töö valmimise ajaks on maksimaalselt 1 nädal pärast lähteülesande kokku leppimist. Töid teostab Volitatud elektriinsener, tase 8 kutsetunnistusega isik. Edu hankel! Lugupidamisega, V.

Kasutaja ikoon ID44271
Pakkuja profiil Väike nool paremale
600€ KM lisandub KM lisandub 16.05.2024 Vestlus (0)
Kasutaja ikoon ID44421
Pakkuja profiil Väike nool paremale
350€ Sisaldab KM Sisaldab KM 20.05.2024 Vestlus (4)

Pakkumise kirjeldus:

Töö kiire ja korralik!

Kasutaja ikoon ID34425
Pakkuja profiil Väike nool paremale
400€ KM lisandub KM lisandub 20.05.2024 Vestlus (0)

Pakkumise kirjeldus:

Sisaldab elektri projekti vastavalt EHR-i nõuetele.

Küsimused hanke korraldajale

Küsimus: private ID31470   15.05.2024 08:54
Tere, kas soovite ainult hoone sisest tugevvooluprojekti või on vajalik ka nõrkvooluprojekt (side, valveandurid, suitsuandurid)? Lugupidamisega, V.

Teavita reeglite rikkumisest

Korraldaja vastus: 16.05.2024 11:17

Tere

Võiks olla nõrkvool side näol. Valve jms paneme juhtmevabad.

Parimat

Teavita reeglite rikkumisest

Lisa küsimus

Lisa küsimus

Minu pakkumine

Reeglid

Pakkumise kirjelduse väli on mõeldud pakkumise detailsemaks lahti kirjutamiseks. Pikema teksti mugavaks sisestamiseks klikkige kasti paremal ülaservas oleval ikoonil.
Pakkumist tehes on keelatud postitada enda kontaktandmeid (nimi, telefon, aadress jne). Me jälgime ja analüüsime pakkumisi, et vältida pettuseid ja reeglite rikkumisi.
Rikkumise puhul kasutajakonto blokeeritakse.

 

Teisi töid samas valdkonnas

Valdkonnas "Ehitusprojektid" on 6 aktiivset tööd

no-img Pilt puudub

Ehitusinsener tase 7 vastutav allikiri

Asukoht: Pärnumaa, Pärnu
Aega jäänud: 20h 1 min
Tehtud pakkumisi: 2

Korteri elektri projekt

Asukoht: Harjumaa, Tallinn
Aega jäänud: 2p 20h
Tehtud pakkumisi: 2

Vanemad teated:

Vaata kõiki

Sellel veebilehel kasutatakse küpsiseid. Kasutamist jätkates nõustute küpsiste kasutamisega.

Sulge
 
Minu pakkumine

Reeglid

Pakkumise kirjelduse väli on mõeldud pakkumise detailsemaks lahti kirjutamiseks. Pikema teksti mugavaks sisestamiseks klikkige kasti paremal ülaservas oleval ikoonil.
Pakkumist tehes on keelatud postitada enda kontaktandmeid (nimi, telefon, aadress jne). Me jälgime ja analüüsime pakkumisi, et vältida pettuseid ja reeglite rikkumisi.
Rikkumise puhul kasutajakonto blokeeritakse.