+ Lisa oma töö      

Otsid ehitajat "Elektritööd" valdkonnast?

Parima pakkumise ja teostaja leidmiseks lisa oma töö.

Hange on lõppenud!

Võitjaks osutus kasutaja ID 80919

Põrandakütte automaatika paigaldus ja ost

ID 96455

556 vaatamist

Prindi

  • check Pakkumiste tegemine
    kuni 13.05.2024
  • check Võitja valik kuni
    13.05.2024
  • 3 Töö teostamine
    ja hinnang
Hanke lõpp: E, 13. mai, 2024
Maakond: Harjumaa
Muu asula: Jälgimäe
Tööde lõpp: Kokkuleppel
Ehitusmaterjalid: Töö tegija poolt
Soovin pakkumisi: Summa kogu projektile

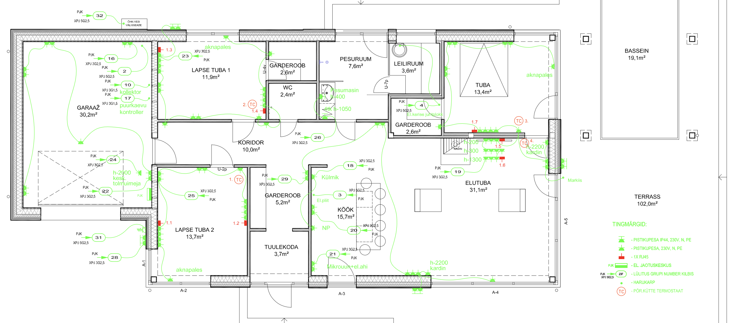
Töö sisu

Sooviks pakkumist siis põrandakütta automaatika ja seina termostaadid paigaldusele kui ka sooviks, et soovitaksite millist automaatikat ja seinapealseid termostaadid soovitaksite soetada. Sooviks kogu kupatuse ühelt inimeselt/firmalt osta kui võimalik. Kui head automaatikad on välismaal olemas, siis olen valmis need ka sealt tellima vastavalt soovitusele. Termostaatide jaoks on kaabeldus veetud ning ei soovi patareidega lahendust. Kogu elektrilahendus ja termostaatide asukohad on näha ka plaanilt, mille lisasin pildina

Pildid, video ja failid

Hanke korraldaja: eraisik ID64926

Pakkumised

Pakkumisi kokku: 2

Ettevõte Summa Käibemaks Lisatud Vestlus
Kasutaja ikoon ID20796
Pakkuja profiil Väike nool paremale
3 600€ Sisaldab KM Sisaldab KM 13.05.2024 Vestlus (2)

Pakkumise kirjeldus:

SAS931WHL-XT-WIFI
(SAS931WHL-0-BUS-WIFI master control+SCU211-BUS-485 control center) + 3 SAS931WHL-0-BUS
+8 vahatermomootorid
Komplekt on WiFi kaudu jälgitav

Kasutaja ikoon ID80919
Pakkuja profiil Väike nool paremale
725€ Sisaldab KM Sisaldab KM 13.05.2024 Vestlus (3)

Pakkumise kirjeldus:

Pakkumine sisaldab soodsat automaatika plokki, 8x ajamit ja 4x mehaanilist termostaati. Automaatika paigaldust. Soovi korral saab vahetada mehaanilised termostaadid digitaalsete vastu ja lisada tarke funktsioone. Valikus ENGO, TECE, Danfoss või UPONOR automaatika.

Küsimused hanke korraldajale

Küsimus: private ID44271   12.05.2024 23:05
Tere.
Võib olla te soviksite sama saari lüliti ja pesaga? Kas teate missugused teil on?

Teavita reeglite rikkumisest

Korraldaja vastus:
Hanke korraldaja ei ole küsimusele veel vastanud

Küsimus: private ID44271   12.05.2024 23:07
Kas vee ajamid on teil juba ostnud?

Teavita reeglite rikkumisest

Korraldaja vastus: 13.05.2024 13:29

koik nii nagu pildil näha. Ei ole ajameid

Teavita reeglite rikkumisest

Lisa küsimus

Lisa küsimus

Minu pakkumine

Reeglid

Pakkumise kirjelduse väli on mõeldud pakkumise detailsemaks lahti kirjutamiseks. Pikema teksti mugavaks sisestamiseks klikkige kasti paremal ülaservas oleval ikoonil.
Pakkumist tehes on keelatud postitada enda kontaktandmeid (nimi, telefon, aadress jne). Me jälgime ja analüüsime pakkumisi, et vältida pettuseid ja reeglite rikkumisi.
Rikkumise puhul kasutajakonto blokeeritakse.

 

Teisi töid samas valdkonnas

Valdkonnas "Elektritööd" on 5 aktiivset tööd

Vana talu elektrisüsteemi uuendamine (kilp, pistikud, välivalgustus, EV valmidus)

Asukoht: Raplamaa, Suurekivi
Aega jäänud: 1p 8h
Tehtud pakkumisi: 5

Kaablite vahetus paneelmaja korteris ja siseviimistlus

Asukoht: Harjumaa, Tallinn
Aega jäänud: 6p 8h
Tehtud pakkumisi: 3

Vanemad teated:

Vaata kõiki

Sellel veebilehel kasutatakse küpsiseid. Kasutamist jätkates nõustute küpsiste kasutamisega.

Sulge
 
Minu pakkumine

Reeglid

Pakkumise kirjelduse väli on mõeldud pakkumise detailsemaks lahti kirjutamiseks. Pikema teksti mugavaks sisestamiseks klikkige kasti paremal ülaservas oleval ikoonil.
Pakkumist tehes on keelatud postitada enda kontaktandmeid (nimi, telefon, aadress jne). Me jälgime ja analüüsime pakkumisi, et vältida pettuseid ja reeglite rikkumisi.
Rikkumise puhul kasutajakonto blokeeritakse.