+ Lisa oma töö      

Otsid ehitajat "Elektritööd" valdkonnast?

Parima pakkumise ja teostaja leidmiseks lisa oma töö.

Korteri elektriprojekt

ID 96436

460 vaatamist

Prindi

  • check Pakkumiste tegemine
    kuni 14.05.2024
  • check Võitja valik kuni
    21.05.2024
  • 3 Töö teostamine
    ja hinnang
Hanke lõpp: T, 14. mai, 2024
Maakond: Põlvamaa
Linn: Põlva
Tööde lõpp: Kokkuleppel
Ehitusmaterjalid: Töö tellija poolt
Soovin pakkumisi: Summa kogu projektile

Töö sisu

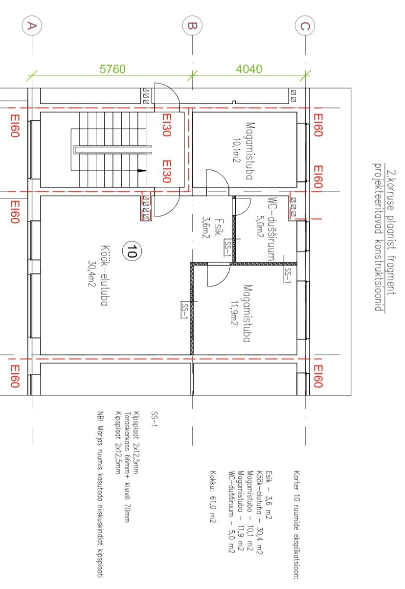
Soovin saada pakkumisi 3-toalise korteri elektriprojektile.

Pildid, video ja failid

Hanke korraldaja: eraisik ID78573

Pakkumised

Pakkumisi kokku: 2

Ettevõte Summa Käibemaks Lisatud Vestlus
Kasutaja ikoon ID77434
Pakkuja profiil Väike nool paremale
500€ Sisaldab KM Sisaldab KM 12.05.2024 Vestlus (0)
Kasutaja ikoon ID79821
Pakkuja profiil Väike nool paremale
210€ KM lisandub KM lisandub 12.05.2024 Vestlus (0)

Pakkumise kirjeldus:

Eesti Vabariigi normidele ja EVS standarditele vastav kvaliteetne põhjalik Tööprojekt. Projekti valmimise aeg 10 päeva jooksul peale alusmaterjali ja lähteülesanne esitamist. Elektriprojekteerimise kogemus >10a.

Hind sisaldab:
1. Tekstiline osa (tiitelleht, dokumentide nimekiri, seletuskiri, spetsifikatsioon)
2. Struktuurskeemid (elektrivarustus, ... Rohkem

Küsimused hanke korraldajale

Hanke korraldajale ei ole veel küsimusi esitatud.

Lisa küsimus

Lisa küsimus

Minu pakkumine

Reeglid

Pakkumise kirjelduse väli on mõeldud pakkumise detailsemaks lahti kirjutamiseks. Pikema teksti mugavaks sisestamiseks klikkige kasti paremal ülaservas oleval ikoonil.
Pakkumist tehes on keelatud postitada enda kontaktandmeid (nimi, telefon, aadress jne). Me jälgime ja analüüsime pakkumisi, et vältida pettuseid ja reeglite rikkumisi.
Rikkumise puhul kasutajakonto blokeeritakse.

 

Teisi töid samas valdkonnas

Valdkonnas "Elektritööd" on 5 aktiivset tööd

Vana talu elektrisüsteemi uuendamine (kilp, pistikud, välivalgustus, EV valmidus)

Asukoht: Raplamaa, Suurekivi
Aega jäänud: 1p 18h
Tehtud pakkumisi: 5

Korteri remont

Asukoht: Tartumaa
Aega jäänud: 18h 20 min
Tehtud pakkumisi: 2

Vanemad teated:

Vaata kõiki

Sellel veebilehel kasutatakse küpsiseid. Kasutamist jätkates nõustute küpsiste kasutamisega.

Sulge
 
Minu pakkumine

Reeglid

Pakkumise kirjelduse väli on mõeldud pakkumise detailsemaks lahti kirjutamiseks. Pikema teksti mugavaks sisestamiseks klikkige kasti paremal ülaservas oleval ikoonil.
Pakkumist tehes on keelatud postitada enda kontaktandmeid (nimi, telefon, aadress jne). Me jälgime ja analüüsime pakkumisi, et vältida pettuseid ja reeglite rikkumisi.
Rikkumise puhul kasutajakonto blokeeritakse.