+ Lisa oma töö      

Otsid ehitajat "Üldehitus" valdkonnast?

Parima pakkumise ja teostaja leidmiseks lisa oma töö.

Lintvundamendi ehitus

ID 95817

527 vaatamist

Prindi

  • check Pakkumiste tegemine
    kuni 03.05.2024
  • check Võitja valik kuni
    10.05.2024
  • 3 Töö teostamine
    ja hinnang
Hanke lõpp: R, 3. mai, 2024
Maakond: Harjumaa
Muu asula: Leistu
Tööde lõpp: Kokkuleppel
Ehitusmaterjalid: Töö tellija poolt
Soovin pakkumisi: Summa kogu projektile

Töö sisu

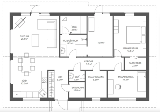
Vundamendi pindala 126m² vastavalt projektile. Ehitustööd peaks hõlmavad vajalike materjalide tarnet, kaevetöid, armeerimistöid, betoneerimist ning viimistlust vastavalt kehtivatele ehitusstandarditele ja -nõuetele.

Plaatvundamendile paigaldada põrandakütte torustik ja tarbevee torustik koos kanalisatsiooniga (liited tuua seinte äärde). Krundi pinnas: liiva kruusa segu. Hinnapakkumises tuua eraldi tööraha ja materjal (plokid, soojustus, torustik, kaevetööd, killustik, liiv ja betoon). Lähedal on Kose-Risti K.U. Mell kruusakarjäär.

Pildid, video ja failid

Hanke korraldaja: eraisik ID39786

Pakkumised

Pakkumisi kokku: 4

Ettevõte Summa Käibemaks Lisatud Vestlus
Kasutaja ikoon ID39222
Pakkuja profiil Väike nool paremale
18 900€ KM lisandub KM lisandub 02.05.2024 Vestlus (0)
Kasutaja ikoon ID78546
Pakkuja profiil Väike nool paremale
25 000€ KM lisandub KM lisandub 03.05.2024 Vestlus (0)

Pakkumise kirjeldus:

On tööde maksumus.Ilma täpsemate joonisdetta on väga raski materjali kokku arvata.

Kasutaja ikoon ID79944
Pakkuja profiil Väike nool paremale
22 000€ Sisaldab KM Sisaldab KM 03.05.2024 Vestlus (0)

Pakkumise kirjeldus:

Võtmed kätte tööd sh kommunikatsioonid - elekter, torustik. Soe ahel koos pressimisega. Betoneerimine.

Kasutaja ikoon ID38400
Pakkuja profiil Väike nool paremale
21 800€ Sisaldab KM Sisaldab KM 03.05.2024 Vestlus (0)

Küsimused hanke korraldajale

Küsimus: private ID74140   01.05.2024 07:17
Tere.
Kas võib pakkuda ka ainult vesi,kanal,põrandakütte?

Teavita reeglite rikkumisest

Korraldaja vastus: 01.05.2024 07:18

Tere,
Jah võib ikka pakkuda.

Teavita reeglite rikkumisest

Küsimus: private ID74140   01.05.2024 07:21
Kas on olemas kanali,vee projekt ka?

Teavita reeglite rikkumisest

Korraldaja vastus: 01.05.2024 07:26

Ei ole veel hetkel, aga lisasin veel ühe pildi. Sauna kõrval paremal ruumis on vann.

Teavita reeglite rikkumisest

Küsimus: private ID78546   03.05.2024 15:37
Täpsemaks vajalikud kütte,-kanali,-elektriprojekt ning vundamendi ristlõikke joonised.Ehiaja peab järgima projekti.

Teavita reeglite rikkumisest

Korraldaja vastus:
Hanke korraldaja ei ole küsimusele veel vastanud

Lisa küsimus

Lisa küsimus

Minu pakkumine

Reeglid

Pakkumise kirjelduse väli on mõeldud pakkumise detailsemaks lahti kirjutamiseks. Pikema teksti mugavaks sisestamiseks klikkige kasti paremal ülaservas oleval ikoonil.
Pakkumist tehes on keelatud postitada enda kontaktandmeid (nimi, telefon, aadress jne). Me jälgime ja analüüsime pakkumisi, et vältida pettuseid ja reeglite rikkumisi.
Rikkumise puhul kasutajakonto blokeeritakse.

 

Teisi töid samas valdkonnas

Valdkonnas "Üldehitus" on 37 aktiivset tööd

Põrandakütte torustiku ja kollektori paigaldus.

Asukoht: Harjumaa, Kurkse
Aega jäänud: 11p
Tehtud pakkumisi: 4

no-img Pilt puudub

Heliisolatsiooni paigaldus

Asukoht: Harjumaa, Tallinn
Aega jäänud: 27 min
Tehtud pakkumisi: 3

Vanemad teated:

Vaata kõiki

Sellel veebilehel kasutatakse küpsiseid. Kasutamist jätkates nõustute küpsiste kasutamisega.

Sulge
 
Minu pakkumine

Reeglid

Pakkumise kirjelduse väli on mõeldud pakkumise detailsemaks lahti kirjutamiseks. Pikema teksti mugavaks sisestamiseks klikkige kasti paremal ülaservas oleval ikoonil.
Pakkumist tehes on keelatud postitada enda kontaktandmeid (nimi, telefon, aadress jne). Me jälgime ja analüüsime pakkumisi, et vältida pettuseid ja reeglite rikkumisi.
Rikkumise puhul kasutajakonto blokeeritakse.