+ Lisa oma töö      

Otsid ehitajat "Üldehitus" valdkonnast?

Parima pakkumise ja teostaja leidmiseks lisa oma töö.

Maja renoveerimine

ID 95005

576 vaatamist

Prindi

  • check Pakkumiste tegemine
    kuni 24.04.2024
  • check Võitja valik kuni
    01.05.2024
  • 3 Töö teostamine
    ja hinnang
Hanke lõpp: K, 24. aprill, 2024
Maakond: Harjumaa
Linn: Tallinn
Tööde lõpp: Kokkuleppel
Ehitusmaterjalid: Töö tellija poolt
Soovin pakkumisi: Summa kogu projektile

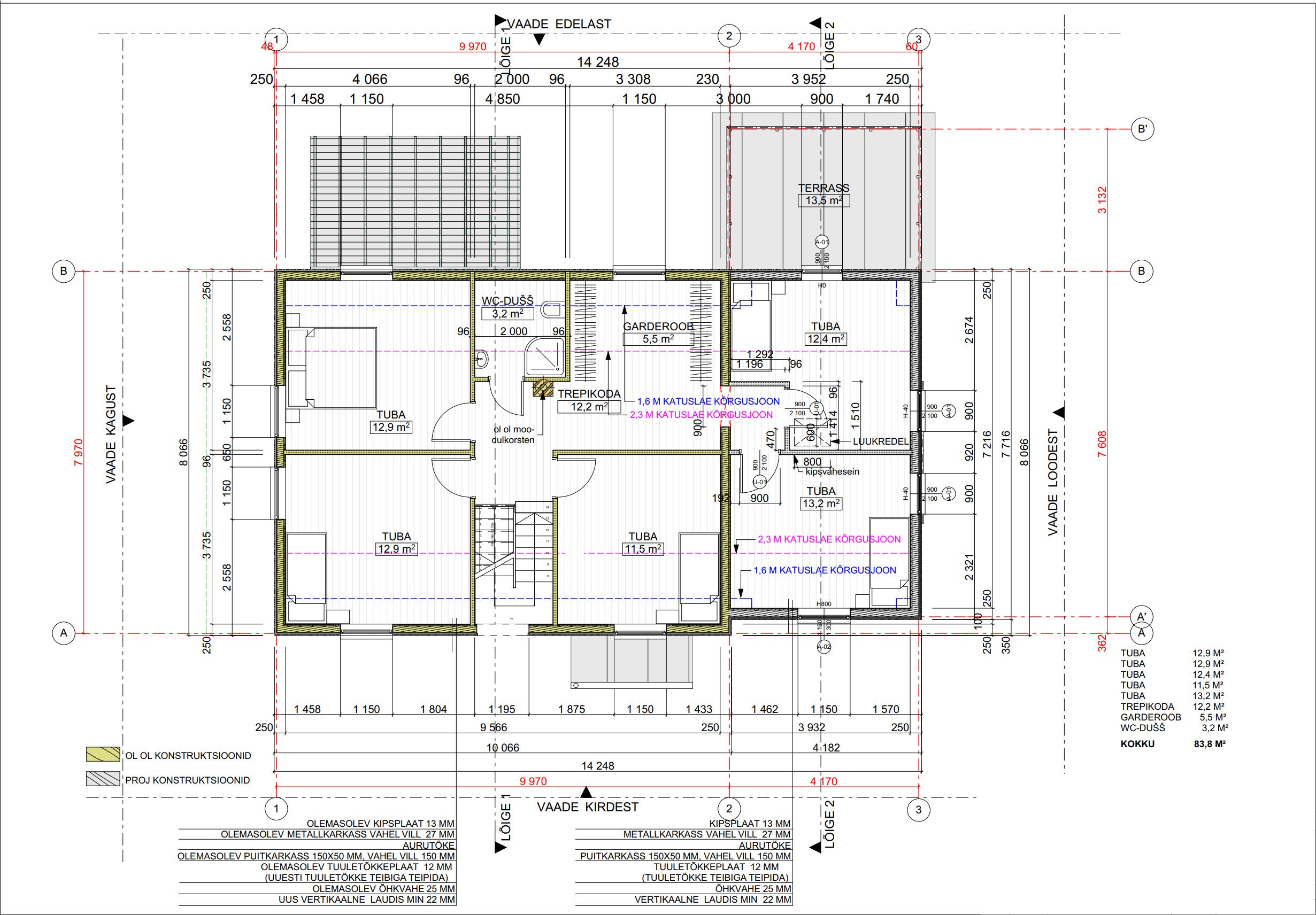
Pildid, video ja failid

Hanke korraldaja: eraisik ID81363

Pakkumised

Pakkumisi kokku: 7

Ettevõte Summa Käibemaks Lisatud Vestlus
Kasutaja ikoon ID70688
Pakkuja profiil Väike nool paremale
48 400€ KM lisandub KM lisandub 17.04.2024 Vestlus (0)

Pakkumise kirjeldus:

Tere!

Pakkumine ainul tööle:

-vana katuse demontaaz
-uus kausekonstruktsioon
-uus katusekate
-vana laudise eemaldus fasaadilt
-uus fassaadilaud
-maja taga terassi ehitus
-avatäited

NB! Lisandub hange.ee tasu 5%+km

See ainult töö, tellingute mv abivahendie hind .Tööde loetelu puudu siin portaalis

Terv.,

Erki

Kasutaja ikoon ID79232
Pakkuja profiil Väike nool paremale
47 500€ KM lisandub KM lisandub 17.04.2024 Vestlus (0)

Pakkumise kirjeldus:

-vana katuse demontaaz
-uus kausekonstruktsioon
-uus katusekate
-vana laudise eemaldus fasaadilt
-uus fassaadilaud
-maja taga terassi ehitus
-avatäited

Kasutaja ikoon ID75087
Pakkuja profiil Väike nool paremale
45 000€ KM lisandub KM lisandub 18.04.2024 Vestlus (0)
Kasutaja ikoon ID79944
Pakkuja profiil Väike nool paremale
43 000€ Sisaldab KM Sisaldab KM 18.04.2024 Vestlus (0)
Kasutaja ikoon ID50594
Pakkuja profiil Väike nool paremale
76 800€ KM lisandub KM lisandub 19.04.2024 Vestlus (0)

Pakkumise kirjeldus:

Tere,

Pakkumine vastavalt hanke kirjeldusele.

Lgp. Taivo

Kasutaja ikoon ID78749
Pakkuja profiil Väike nool paremale
32 000€ Sisaldab KM Sisaldab KM 21.04.2024 Vestlus (0)

Pakkumise kirjeldus:

Tere teen teile hetkel Sellise pakkumise fikseeritud pakkumine tuleb siiski kohapeal teiega arutades detailid läbi.
Pakkumisele lisandub hanke teenustasu 5%+km
Kuna ma olen vaike tegija siis tuleb ka materjalide võrra ettemaks.
Palju pakkumine kõikuda ei tohiks.
Arveldamine sularahas arve alusel.
Ootan lisaküsinusi

Parimat

Kasutaja ikoon ID52293
Pakkuja profiil Väike nool paremale
24 000€ Sisaldab KM Sisaldab KM 24.04.2024 Vestlus (0)

Pakkumise kirjeldus:

Tere
Juhul kui soovite meid valida hanke võitjaks peaks eelnevalt kokku leppima makse tingimustes
Tänud

Küsimused hanke korraldajale

Küsimus: private ID59528   23.04.2024 18:34
Tere,

Oleme huvitataud hinnapakkumise tegemisest
Palun lisage projekt, ilma selleta suht raske hinnapakkumist koostada

Parimat,

Erik

Teavita reeglite rikkumisest

Korraldaja vastus: 23.04.2024 20:17

Lisatud.

Teavita reeglite rikkumisest

Küsimus: private ID59528   23.04.2024 18:35
Mõtlen, et palun laadige pdf formaadia projekt mille pealt saamksime vajalikud mõõdistused teha

Teavita reeglite rikkumisest

Korraldaja vastus:
Hanke korraldaja ei ole küsimusele veel vastanud

Küsimus: private ID59528   23.04.2024 20:27
Need jpg filed, saate ka pdf formaadis selle projekti siia laadida, saan selle järgi kõik vajalikud mõõdistused teha.
Ma ei saa aru, mille põhjal eelmised pakkumised tehtud ?
Te pole ju mahtusid ette andud ?

Parimat,

Erik

Teavita reeglite rikkumisest

Korraldaja vastus:
Hanke korraldaja ei ole küsimusele veel vastanud

Küsimus: private ID81593   24.04.2024 20:14
Tere palun Lisa ge siia ka tehtavate tööde taha mahud m2 kujul et saaksime teha teile pakkumise.

Parimat

Teavita reeglite rikkumisest

Korraldaja vastus:
Hanke korraldaja ei ole küsimusele veel vastanud

Lisa küsimus

Lisa küsimus

Minu pakkumine

Reeglid

Pakkumise kirjelduse väli on mõeldud pakkumise detailsemaks lahti kirjutamiseks. Pikema teksti mugavaks sisestamiseks klikkige kasti paremal ülaservas oleval ikoonil.
Pakkumist tehes on keelatud postitada enda kontaktandmeid (nimi, telefon, aadress jne). Me jälgime ja analüüsime pakkumisi, et vältida pettuseid ja reeglite rikkumisi.
Rikkumise puhul kasutajakonto blokeeritakse.

 

Teisi töid samas valdkonnas

Valdkonnas "Üldehitus" on 31 aktiivset tööd

Kuuri lammutus

Asukoht: Pärnumaa
Aega jäänud: 2p 16h
Tehtud pakkumisi: 6

Põrandakütte torustiku ja kollektori paigaldus.

Asukoht: Harjumaa, Kurkse
Aega jäänud: 15p 16h
Tehtud pakkumisi: 4

Vanemad teated:

Vaata kõiki

Sellel veebilehel kasutatakse küpsiseid. Kasutamist jätkates nõustute küpsiste kasutamisega.

Sulge
 
Minu pakkumine

Reeglid

Pakkumise kirjelduse väli on mõeldud pakkumise detailsemaks lahti kirjutamiseks. Pikema teksti mugavaks sisestamiseks klikkige kasti paremal ülaservas oleval ikoonil.
Pakkumist tehes on keelatud postitada enda kontaktandmeid (nimi, telefon, aadress jne). Me jälgime ja analüüsime pakkumisi, et vältida pettuseid ja reeglite rikkumisi.
Rikkumise puhul kasutajakonto blokeeritakse.