+ Lisa oma töö      

Otsid ehitajat "Ehitusprojektid" valdkonnast?

Parima pakkumise ja teostaja leidmiseks lisa oma töö.

Hange on lõppenud!

Võitjaks osutus kasutaja ID 48870

Eramu konstruktiivne põhiprojekt

ID 94601

648 vaatamist

Prindi

  • check Pakkumiste tegemine
    kuni 22.04.2024
  • check Võitja valik kuni
    29.04.2024
  • 3 Töö teostamine
    ja hinnang
Hanke lõpp: E, 22. aprill, 2024
Maakond: Tartumaa
Tööde lõpp: Kokkuleppel
Ehitusmaterjalid: Töö tegija poolt
Soovin pakkumisi: Summa kogu projektile

Töö sisu

Tere

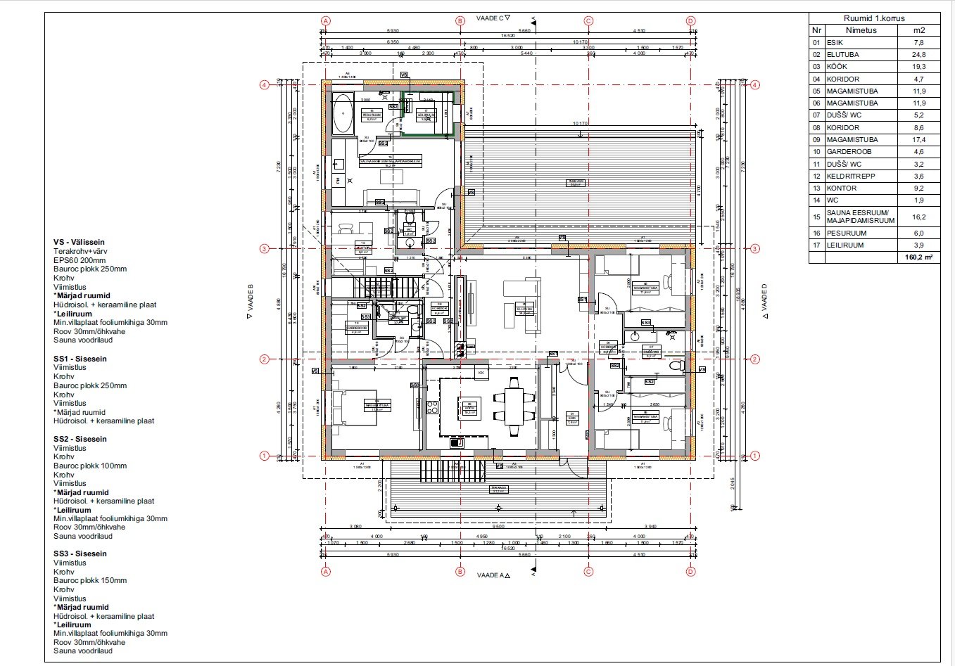
Ehitamise tarbeks tarvis konstruktiivset osa. Vajalikud lõiked, armatuuri mõõtmed, sammud, sõlmed, seinte, rb. vahelae ja silluste armeerimine jne.
Olen huvitatud ka pakkumistest eriosadede projektidele.
Olemas arh. eelprojekt ja hetkel käimas ehitusloa menetlus.

Pildid, video ja failid

Hanke korraldaja: eraisik ID36527

Pakkumised

Pakkumisi kokku: 3

Ettevõte Summa Käibemaks Lisatud Vestlus
Kasutaja ikoon ID69164
Pakkuja profiil Väike nool paremale
3 500€ Ei ole KMKR Ei ole KMKR 15.04.2024 Vestlus (0)

Pakkumise kirjeldus:

Hoone konstruktiivne ehitusprojekt põhiprojekti staadiumis.

Koostatav projekt vastab EVS 932:2017 ja MKM määruse nr. 97 „Nõuded ehitusprojektile1" nõuetele.

Märkused:
1. Projektiga ja projekteerimisega seotud kõik kooskõlastustasud ja riigilõivud tasub Tellija,
2. Hinnapakkumine ei sisalda tehnosüsteeme/eriosasid.

Arveldamine:

100% ... Rohkem

Kasutaja ikoon ID77668
Pakkuja profiil Väike nool paremale
1 800€ KM lisandub KM lisandub 16.04.2024 Vestlus (2)
Kasutaja ikoon ID48870
Pakkuja profiil Väike nool paremale
1 950€ Sisaldab KM Sisaldab KM 22.04.2024 Vestlus (0)

Pakkumise kirjeldus:

Tere,
pakkumise hind sisaldab järgmist:
maja ehituskonstruktsioonide projekteerimine põhiprojekti staadiumis kooskõlas arhitektuurse projektiga (vt EVS 932:2017)
Projekti sisu:
1. konstruktsiooniarvutused
2. joonised
3. vundamendi plaan
4. aluspõrand - vajalikud lõiked, armatuuri mõõtmed, sammud,.
5. seinte/silluste-plaan, sõlmed, lõiked, se ... Rohkem

Küsimused hanke korraldajale

Hanke korraldajale ei ole veel küsimusi esitatud.

Lisa küsimus

Lisa küsimus

Minu pakkumine

Reeglid

Pakkumise kirjelduse väli on mõeldud pakkumise detailsemaks lahti kirjutamiseks. Pikema teksti mugavaks sisestamiseks klikkige kasti paremal ülaservas oleval ikoonil.
Pakkumist tehes on keelatud postitada enda kontaktandmeid (nimi, telefon, aadress jne). Me jälgime ja analüüsime pakkumisi, et vältida pettuseid ja reeglite rikkumisi.
Rikkumise puhul kasutajakonto blokeeritakse.

 

Teisi töid samas valdkonnas

Valdkonnas "Ehitusprojektid" on 5 aktiivset tööd

no-img Pilt puudub

Kortermaja kõigi ruumide mõõdistamine ja DWG faili koostamine

Asukoht: Harjumaa, Tallinn
Aega jäänud: 1p 2h
Tehtud pakkumisi: 2

Korterelamu mõõdistusprojekti koostamine ja jooniste digitaliseerimine

Asukoht: Lääne-Virumaa, Tapa
Aega jäänud: 4p 2h
Tehtud pakkumisi: 2

Vanemad teated:

Vaata kõiki

Sellel veebilehel kasutatakse küpsiseid. Kasutamist jätkates nõustute küpsiste kasutamisega.

Sulge
 
Minu pakkumine

Reeglid

Pakkumise kirjelduse väli on mõeldud pakkumise detailsemaks lahti kirjutamiseks. Pikema teksti mugavaks sisestamiseks klikkige kasti paremal ülaservas oleval ikoonil.
Pakkumist tehes on keelatud postitada enda kontaktandmeid (nimi, telefon, aadress jne). Me jälgime ja analüüsime pakkumisi, et vältida pettuseid ja reeglite rikkumisi.
Rikkumise puhul kasutajakonto blokeeritakse.