+ Lisa oma töö      

Otsid ehitajat "Ehitusprojektid" valdkonnast?

Parima pakkumise ja teostaja leidmiseks lisa oma töö.

Hange on lõppenud!

Võitjaks osutus kasutaja ID 46459

Korraldaja hinnang tehtud tööle

5.0
01.08.2024
Töökiirus: 12345
Kvaliteet: 12345
Hind: 12345

Elektriprojekt

ID 94348

880 vaatamist

Prindi

  • check Pakkumiste tegemine
    kuni 14.04.2024
  • check Võitja valik kuni
    21.04.2024
  • 3 Töö teostamine
    ja hinnang
Hanke lõpp: P, 14. aprill, 2024
Maakond: Tartumaa
Linn: Tartu
Tööde lõpp: Kokkuleppel
Ehitusmaterjalid: Töö tellija poolt
Soovin pakkumisi: Summa kogu projektile

Töö sisu

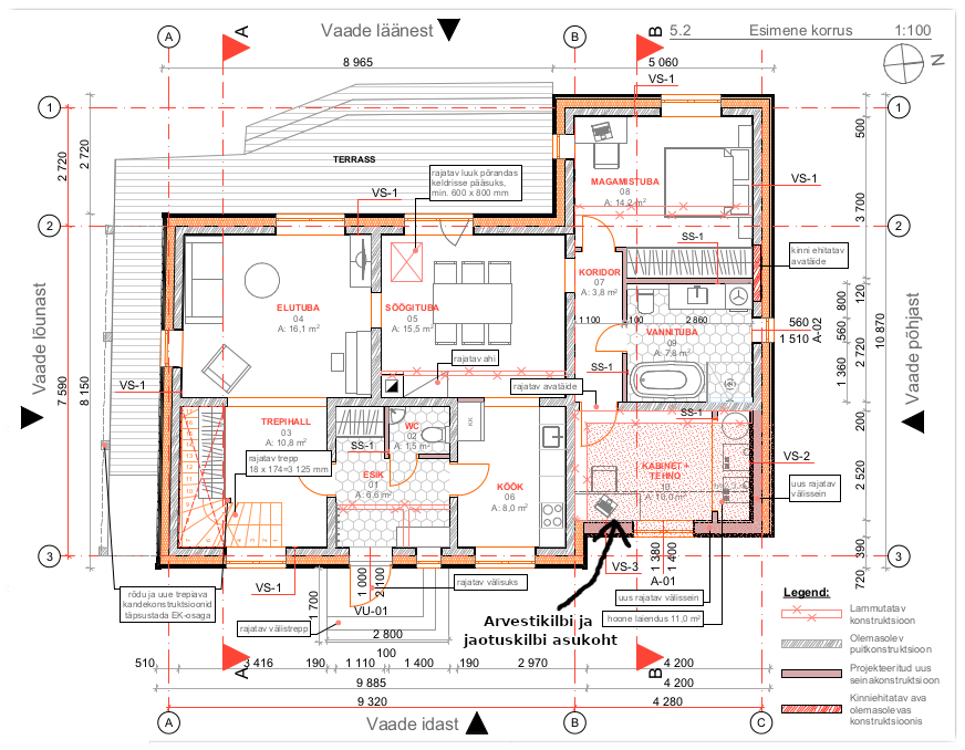
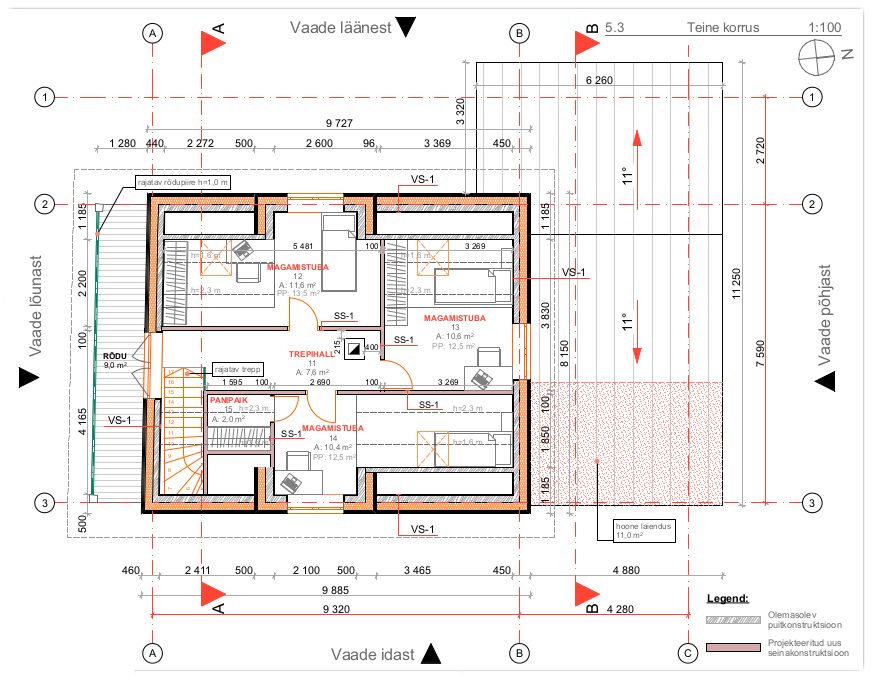
Kahe korruseline renoveeritav eramaja. Oleks vaja elektriprojekti, et uuendada kaableid ja luua kaasaegne elektrilahendus. On olemas liitumine ja arvestikapp (vt. pilti "esimene korrus") Edasi on plaanis teostada projekti kohaselt elektritööd ja taotelda kasutusluba.

Pildid, video ja failid

Hanke korraldaja: eraisik ID80584

Pakkumised

Pakkumisi kokku: 7

Ettevõte Summa Käibemaks Lisatud Vestlus
Kasutaja ikoon ID46459
Pakkuja profiil Väike nool paremale
450€ Sisaldab KM Sisaldab KM 07.04.2024 Vestlus (8)

Pakkumise kirjeldus:

Tere,
Elektriprojekti tegemiseks vajalik kliendipoolne eskiis pistikute,lülitite,valgustite asukohtadega. Või saame ka ise loogiliselt neid paigutada. Projekt vastab kõikidele normidele ja on teostatud litsenseeritud, pikaajalise kogemusega , spetsialisti poolt. Projekti staadium - põhiprojekt (tugvvoolu osa ja side).

Tervitades,
J.

Kasutaja ikoon ID72427
Pakkuja profiil Väike nool paremale
1 000€ Ei ole KMKR Ei ole KMKR 08.04.2024 Vestlus (0)

Pakkumise kirjeldus:

Saadame Teile elektripaigaldise põhiprojekti hinnapakkumise. Lisaks standardinõutele näitame projektis kaableid, et paigaldajal ei tekiks küsimusi ja oleks töö teostamine lihtsam.
Projekt hõlmab järgmisi osi:
Tugevvoolu osa:
• elektrivarustus;
• maandus ja potentsiaalühtlustus;
• kaabliteed;
• elektriseadmete ja pistikupesade võrk (k ... Rohkem

Kasutaja ikoon ID79821
Pakkuja profiil Väike nool paremale
550€ KM lisandub KM lisandub 08.04.2024 Vestlus (0)

Pakkumise kirjeldus:

Eesti Vabariigi normidele ja EVS standarditele vastav kvaliteetne põhjalik põhiprojekt. Projekti valmimise aeg 10 päeva jooksul peale alusmaterjali ja lähteülesanne esitamist. Elektriprojekteerimise kogemus >10a., soovi korral esitame projektlahendused kogemuse alusel.

Hind sisaldab:
1. Tekstiline osa (tiitelleht, dokumentide nimekiri, seletuskiri, ... Rohkem

Kasutaja ikoon ID31470
Pakkuja profiil Väike nool paremale
535€ KM lisandub KM lisandub 08.04.2024 Vestlus (0)

Pakkumise kirjeldus:

Tere, teeme pakkumise antud eramu tugevvoolupaigaldise põhiprojektile. Pärast lähteülesande kätte saamist, saame töö valmimise ajaks pakkuda 1 nädal. Töid teostab volitatud elektriinsener tase 8 kutsetunnistusega isik. Edu hankel! Lugupidamisega, V

Kasutaja ikoon ID79544
Pakkuja profiil Väike nool paremale
750€ Ei ole KMKR Ei ole KMKR 08.04.2024 Vestlus (0)

Pakkumise kirjeldus:

Hinnale ei lisandu käibemaksu.

Pakun tugevvoolu ja nõrkvoolu projekti põhiprojekti staadiumisse.
Hoone sisene, ei sisalda välitrasse.

Soovi korral saame teha ka paigaldusele pakkumise(elekter, internet, valvesigna, kaameravalve päikesejaam).
Vajadusel suhtlemine ja asjaajamine omavalitsusega.

Tartu ettevõte.

Kui on küsimusi siis vastan m ... Rohkem

Kasutaja ikoon ID78059
Pakkuja profiil Väike nool paremale
825€ KM lisandub KM lisandub 08.04.2024 Vestlus (0)

Pakkumise kirjeldus:

Tere!

Teil ei ole vaja elektriprojekti majas elamiseks.
Sobib ka teostusjoonis.
Teil on vaja Ehitaja deklaratsiooni ja auditit.
Ehitaja deklaratsioon maksab 150€+km

Auditit tellimiseks on tarvis Kilbiskeemi :

Kilbiskeem 75€ +km

Audit ise maksab teie maja puhul umbes-täpselt 400-600€ +km vahemikus.

Kogu komplekt :
225€ + 600 = 825 ... Rohkem

Kasutaja ikoon ID75550
Pakkuja profiil Väike nool paremale
540€ Sisaldab KM Sisaldab KM 08.04.2024 Vestlus (2)

Pakkumise kirjeldus:

Tere,
NB. Hinnale ei lisandu käibemaksu.

Pakkumine sisaldab:
1) Põhiprojekti (valgus-, maandus-, nõrkvoolu-, jõupaigaldise plaani, kilbiskeemi jms kaasnevaid lisasid nagu seletuskiri, spetsifikatsioon, dok.loetelu). EV nõuetega kooskõlas ja auditeerimiseks sobilik. (Ehitustegevust saab teostada lähtuvalt käesolevatest joonistest).
Valmib 10 tö ... Rohkem

Küsimused hanke korraldajale

Hanke korraldajale ei ole veel küsimusi esitatud.

Lisa küsimus

Lisa küsimus

Minu pakkumine

Reeglid

Pakkumise kirjelduse väli on mõeldud pakkumise detailsemaks lahti kirjutamiseks. Pikema teksti mugavaks sisestamiseks klikkige kasti paremal ülaservas oleval ikoonil.
Pakkumist tehes on keelatud postitada enda kontaktandmeid (nimi, telefon, aadress jne). Me jälgime ja analüüsime pakkumisi, et vältida pettuseid ja reeglite rikkumisi.
Rikkumise puhul kasutajakonto blokeeritakse.

 

Teisi töid samas valdkonnas

Valdkonnas "Ehitusprojektid" on 6 aktiivset tööd

no-img Pilt puudub

Ehitusinsener tase 7 vastutav allikiri

Asukoht: Pärnumaa, Pärnu
Aega jäänud: 18h 41 min
Tehtud pakkumisi: 2

Korteri elektri projekt

Asukoht: Harjumaa, Tallinn
Aega jäänud: 2p 18h
Tehtud pakkumisi: 2

Vanemad teated:

Vaata kõiki

Sellel veebilehel kasutatakse küpsiseid. Kasutamist jätkates nõustute küpsiste kasutamisega.

Sulge
 
Minu pakkumine

Reeglid

Pakkumise kirjelduse väli on mõeldud pakkumise detailsemaks lahti kirjutamiseks. Pikema teksti mugavaks sisestamiseks klikkige kasti paremal ülaservas oleval ikoonil.
Pakkumist tehes on keelatud postitada enda kontaktandmeid (nimi, telefon, aadress jne). Me jälgime ja analüüsime pakkumisi, et vältida pettuseid ja reeglite rikkumisi.
Rikkumise puhul kasutajakonto blokeeritakse.