+ Lisa oma töö      

Otsid ehitajat "Vundamenditööd" valdkonnast?

Parima pakkumise ja teostaja leidmiseks lisa oma töö.

Vundament ja trassid eramajale

ID 94187

956 vaatamist

Prindi

  • check Pakkumiste tegemine
    kuni 25.04.2024
  • check Võitja valik kuni
    02.05.2024
  • 3 Töö teostamine
    ja hinnang
Hanke lõpp: N, 25. aprill, 2024
Maakond: Tartumaa
Muu asula: Kukulinna
Tööde lõpp: Kokkuleppel
Ehitusmaterjalid: Töö tegija poolt
Soovin pakkumisi: Summa kogu projektile

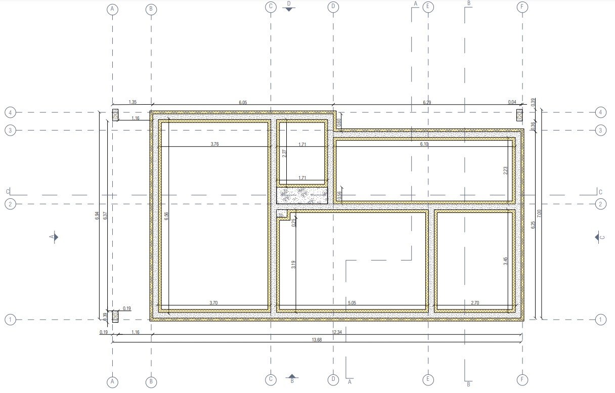
Töö sisu

1. Vundamendi ehitus + väljaviigud+ vastavad materjalid + vastava ehitusdokumentatsiooni koostamine:
mahamärkimine, kaevetööd, killustikupadi, vundamendi drenaaž, taldmiku ehitus, lintvundamendi ladumine Columbia kivi 190mm õõnesplokid (kanalisatsiooni, vee ja elektri läbiviigud), hüdroisolatsioon, soojustus, tagasitäide, pandus, seest täide, trassid, EPS, kile, RB plaat.
2. El. trassid: elekter üks maakaabel kõriga elektrimõõtjast rajatavasse vundamenti, paralleelselt teine kõri sidekaabli tarvis, mõlemad ca. 30m. Kolmas kõri maakaabliga rajatavast vundamendist vanasse majja ca. 40m
3. Veetrassid kaevust vundamenti ja kaevust vanasse majja. ca. 60 ja 40m. (32mm plasttoru)
4. Kanalisatsioon reoveepuhasti ja imbväljak - projekt, teostus (ehitusloa taotluses septik, taotlus vallas)
5. Tuletõrje veevõtukoht-tiik. (Võime teha ka hiljem.)
6. Täitmine, kallete andmine, tasandamine-silumine.
Sooviks pakkumist töölõikude kaupa materjalid ja töö eraldi.
Tööde teostamine mai- juuni esimene pool 2024.

Pildid, video ja failid

Hanke korraldaja: eraisik ID78056

Pakkumised

Pakkumisi kokku: 4

Ettevõte Summa Käibemaks Lisatud Vestlus
Kasutaja ikoon ID57450
Pakkuja profiil Väike nool paremale
26 200€ KM lisandub KM lisandub 08.04.2024 Vestlus (0)

Pakkumise kirjeldus:

Hind vastavalt lähteülesandele. Sobivusel võtke ühendust, tuleme läbi ja koostame detailse pakkumise.
Edukat hanget!

Kasutaja ikoon ID67766
Pakkuja profiil Väike nool paremale
14 000€ Ei ole KMKR Ei ole KMKR 16.04.2024 Vestlus (0)

Pakkumise kirjeldus:

Hind sisaldab lintvundamendi ehituseks tööraha ei sisalda ehitusmaterjalide hinda ,Hinna sees on vundamendi maha märkimine ,kopa töö ,taldmiku põhja täitmine killuga ,taldmiku ehitamine ja valamine betooniga ,lintvundamendi seinte ladumine ja täitmine betooniga ,hüdroisolatsioon ja soojustus ning drenaazi tegemine ning tagasi täide .Hind võib muut ... Rohkem

Kasutaja ikoon ID49870
Pakkuja profiil Väike nool paremale
26 000€ KM lisandub KM lisandub 25.04.2024 Vestlus (4)
Kasutaja ikoon ID80709
Pakkuja profiil Väike nool paremale
27 000€ Ei ole KMKR Ei ole KMKR 25.04.2024 Vestlus (0)

Küsimused hanke korraldajale

Küsimus: private ID33769   05.04.2024 07:34
Tere

Lisage palun asendiplaani, kuidas on kinnistule juurdepääs?

Teavita reeglite rikkumisest

Korraldaja vastus: 05.04.2024 08:17

Lisatud.

Teavita reeglite rikkumisest

Küsimus: private ID33769   05.04.2024 11:57
Tere

Alustuseks vaja rajada juurdepääsutee, praegu teil pinnasetee, mida pidi tehnika ei liigu. Sõitsin mööda.
Tuletõrje veevõtu koha kohta tingimusi ikka teate? Kuivhüdrant, juurdepääsu tee jne?

Reoveepuhasti septik? Biopuhasti?

Teavita reeglite rikkumisest

Korraldaja vastus: 05.04.2024 13:20

Pinnasetee seal krundil ilmselt ka jääb. Suurem tehnika jätab märjemal ajal ikka jäljed. Kallurite jaoks on võibolla midagi alla panna tarvis. Ja kui veesilma juurde peab tee tegema, no siis peab. Seda saab arutada.

Teavita reeglite rikkumisest

Küsimus: private ID33769   11.04.2024 20:47
Sokklisse palju soojustust? 100, enam?
Põranda alla palju soojustust? 200,300?

Teavita reeglite rikkumisest

Korraldaja vastus: 11.04.2024 22:06

soklile xps 100mm, põranda alla EPS 300mm

Teavita reeglite rikkumisest

Lisa küsimus

Lisa küsimus

Minu pakkumine

Reeglid

Pakkumise kirjelduse väli on mõeldud pakkumise detailsemaks lahti kirjutamiseks. Pikema teksti mugavaks sisestamiseks klikkige kasti paremal ülaservas oleval ikoonil.
Pakkumist tehes on keelatud postitada enda kontaktandmeid (nimi, telefon, aadress jne). Me jälgime ja analüüsime pakkumisi, et vältida pettuseid ja reeglite rikkumisi.
Rikkumise puhul kasutajakonto blokeeritakse.

 

Teisi töid samas valdkonnas

Valdkonnas "Vundamenditööd" on 5 aktiivset tööd

Vana kivivundamendi / sokli parandus

Asukoht: Pärnumaa
Aega jäänud: 27 min
Tehtud pakkumisi: 1

no-img Pilt puudub

Plaatvundamendi ehitus

Asukoht: Harjumaa
Aega jäänud: 9p
Tehtud pakkumisi: 1

Vanemad teated:

Vaata kõiki

Sellel veebilehel kasutatakse küpsiseid. Kasutamist jätkates nõustute küpsiste kasutamisega.

Sulge
 
Minu pakkumine

Reeglid

Pakkumise kirjelduse väli on mõeldud pakkumise detailsemaks lahti kirjutamiseks. Pikema teksti mugavaks sisestamiseks klikkige kasti paremal ülaservas oleval ikoonil.
Pakkumist tehes on keelatud postitada enda kontaktandmeid (nimi, telefon, aadress jne). Me jälgime ja analüüsime pakkumisi, et vältida pettuseid ja reeglite rikkumisi.
Rikkumise puhul kasutajakonto blokeeritakse.