+ Lisa oma töö      

Otsid ehitajat "Üldehitus" valdkonnast?

Parima pakkumise ja teostaja leidmiseks lisa oma töö.

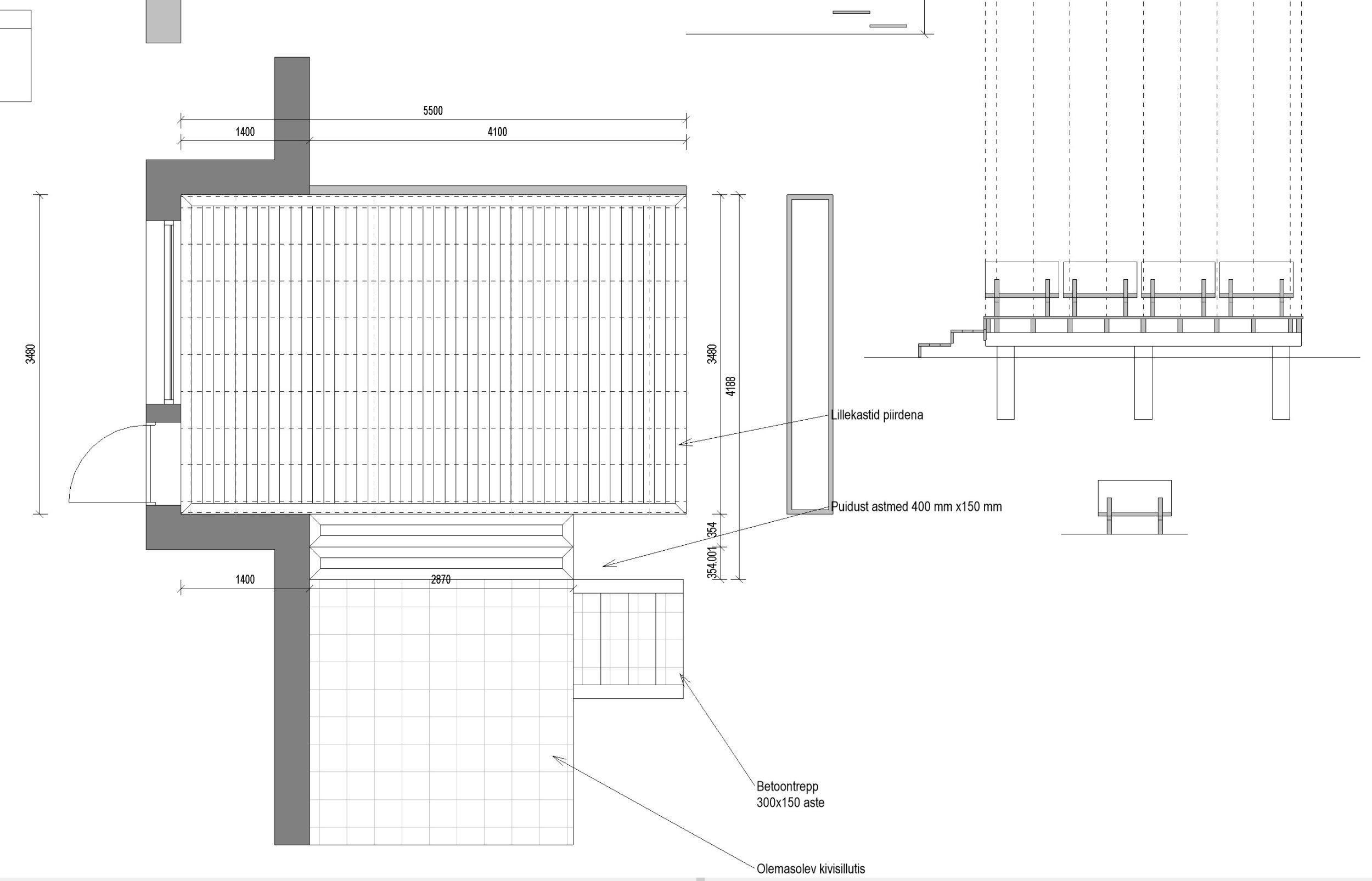
Terassi ehitus

ID 93991

708 vaatamist

Prindi

  • check Pakkumiste tegemine
    kuni 09.04.2024
  • check Võitja valik kuni
    16.04.2024
  • 3 Töö teostamine
    ja hinnang
Hanke lõpp: T, 9. aprill, 2024
Maakond: Viljandimaa
Tööde lõpp: Kokkuleppel
Ehitusmaterjalid: Töö tellija poolt
Soovin pakkumisi: Summa kogu projektile

Töö sisu

Terassi ehitamisel kasutame Benchmark termomändi ja kinnitus alt klambritega.

Pildid, video ja failid

Hanke korraldaja: ettevõte ID71614

Pakkumised

Pakkumisi kokku: 6

Ettevõte Summa Käibemaks Lisatud Vestlus
Kasutaja ikoon ID80271
Pakkuja profiil Väike nool paremale
12 345€ KM lisandub KM lisandub 02.04.2024 Vestlus (7)

Pakkumise kirjeldus:

Tere kõik eest
Ruutmeetri 78 EUR

Kasutaja ikoon ID70688
Pakkuja profiil Väike nool paremale
1 250€ KM lisandub KM lisandub 02.04.2024 Vestlus (11)

Pakkumise kirjeldus:

Tere!

Pakkumine ainult tööle:

-terrass ca 25 m2
-koristustööd

Lisandub hange.ee tasu 5%+km

Terv.,

Erki

Kasutaja ikoon ID80942
Pakkuja profiil Väike nool paremale
1 790€ KM lisandub KM lisandub 03.04.2024 Vestlus (0)
Kasutaja ikoon ID77777
Pakkuja profiil Väike nool paremale
3 000€ Ei ole KMKR Ei ole KMKR 03.04.2024 Vestlus (0)

Pakkumise kirjeldus:

Tööraha.

Kasutaja ikoon ID79573
Pakkuja profiil Väike nool paremale
1 000€ Ei ole KMKR Ei ole KMKR 03.04.2024 Vestlus (0)

Pakkumise kirjeldus:

Pakkumises siis ainult terrassi ehituse tööraha.

Kasutaja ikoon ID50594
Pakkuja profiil Väike nool paremale
15 800€ KM lisandub KM lisandub 03.04.2024 Vestlus (4)

Pakkumise kirjeldus:

Tere,

Pakkumine vastavalt hanke kirjeldusele.

Lgp. Taivo

Küsimused hanke korraldajale

Küsimus: private ID79573   03.04.2024 08:25
Tere. Millel terrass kandma hakkab? On seal olemas juba postid või peab nullist? Kui nullist siis mis postid? Betoon,fibo või ankur postid? Lillekastid on vaja ka ise valmistada?

Teavita reeglite rikkumisest

Korraldaja vastus: 03.04.2024 14:16

Tere!
Pdf dokumendis kirjas! Lillekaste pole vaja.

Teavita reeglite rikkumisest

Lisa küsimus

Lisa küsimus

Minu pakkumine

Reeglid

Pakkumise kirjelduse väli on mõeldud pakkumise detailsemaks lahti kirjutamiseks. Pikema teksti mugavaks sisestamiseks klikkige kasti paremal ülaservas oleval ikoonil.
Pakkumist tehes on keelatud postitada enda kontaktandmeid (nimi, telefon, aadress jne). Me jälgime ja analüüsime pakkumisi, et vältida pettuseid ja reeglite rikkumisi.
Rikkumise puhul kasutajakonto blokeeritakse.

 

Teisi töid samas valdkonnas

Valdkonnas "Üldehitus" on 30 aktiivset tööd

Kuuri lammutus

Asukoht: Pärnumaa
Aega jäänud: 2p 16h
Tehtud pakkumisi: 6

Põrandakütte torustiku ja kollektori paigaldus.

Asukoht: Harjumaa, Kurkse
Aega jäänud: 15p 16h
Tehtud pakkumisi: 4

Vanemad teated:

Vaata kõiki

Sellel veebilehel kasutatakse küpsiseid. Kasutamist jätkates nõustute küpsiste kasutamisega.

Sulge
 
Minu pakkumine

Reeglid

Pakkumise kirjelduse väli on mõeldud pakkumise detailsemaks lahti kirjutamiseks. Pikema teksti mugavaks sisestamiseks klikkige kasti paremal ülaservas oleval ikoonil.
Pakkumist tehes on keelatud postitada enda kontaktandmeid (nimi, telefon, aadress jne). Me jälgime ja analüüsime pakkumisi, et vältida pettuseid ja reeglite rikkumisi.
Rikkumise puhul kasutajakonto blokeeritakse.