+ Lisa oma töö      

Otsid ehitajat "Elektritööd" valdkonnast?

Parima pakkumise ja teostaja leidmiseks lisa oma töö.

Pistikute paigaldus

ID 93689

788 vaatamist

Prindi

  • check Pakkumiste tegemine
    kuni 05.09.2025
  • check Võitja valik kuni
    12.09.2025
  • 3 Töö teostamine
    ja hinnang
Hanke lõpp: R, 5. september, 2025
Maakond: Tartumaa
Tööde lõpp: Kokkuleppel
Ehitusmaterjalid: Töö tegija poolt
Soovin pakkumisi: Summa kogu projektile

Töö sisu

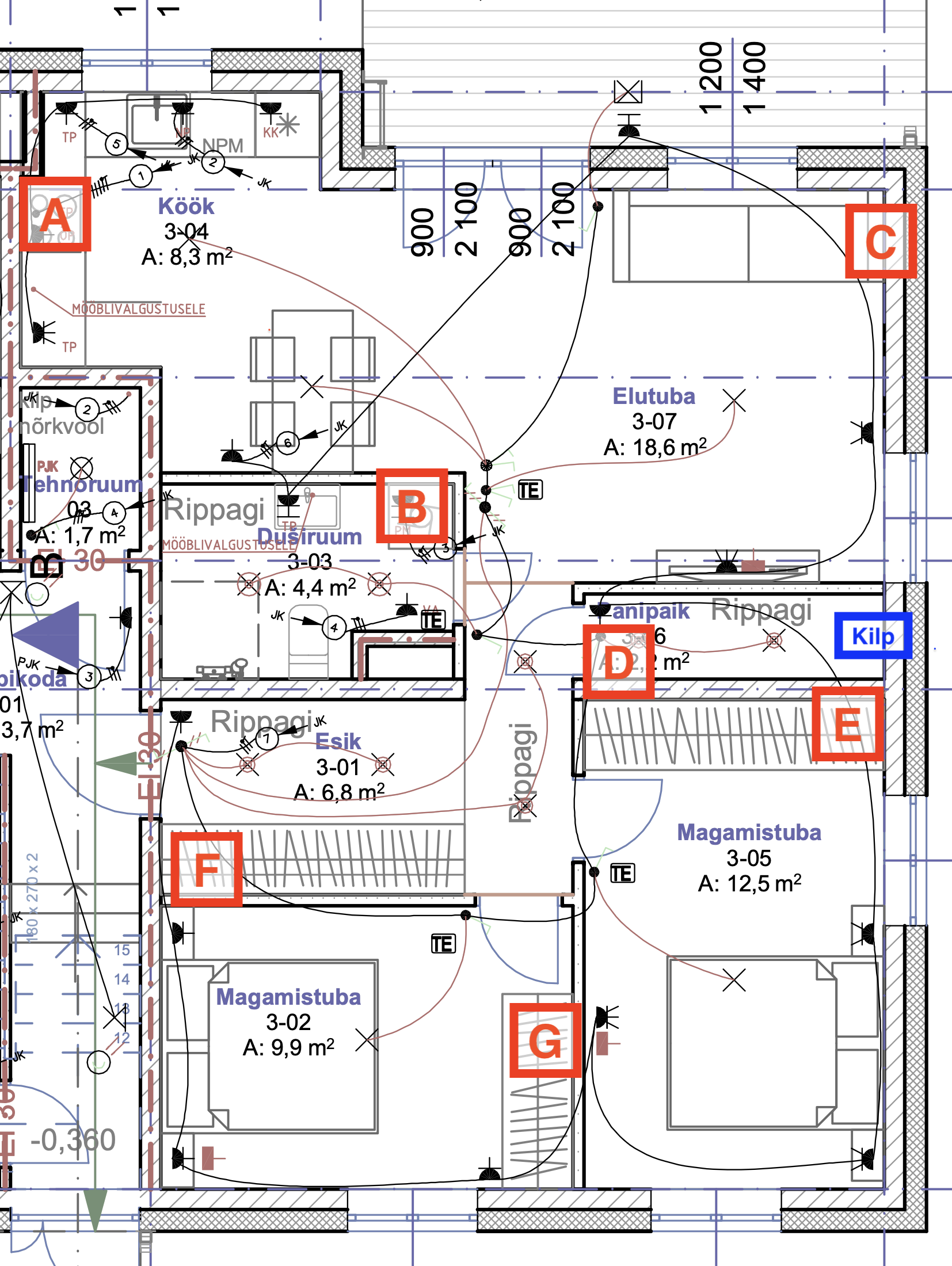
Otsin elektrikku, kes lisaks pistikuid erinevatesse tubadesse:
A) Olemasoleva pistiku asendamine 3-pesalisega, (köögikubu kapis)
B) Olemasoleva pistiku asendamine 3-pesalisega (vannitoas)
C) Uus pistik elutoa kapi valgustusele (1 pesa)
D) Uus pistik tolmuimeja laadimiseks panipaigas (1 pesa)
E) Uus pistik magamistoa kapi valgustusele (2 pesa)
F) Uus pistik koridorikapi valgustusele (1pesa)
G) Uus pistik töölaua juurde (3 pesa)

Vajadusel viimistluse taastamine.
Võib pakkuda ka osalist lahendust, kui kõikide teostamine ei ole mõistlik, sest vajaks liiga palju olemasoleva viimistluse lõhkumist.

Praegused pistikud: Schneider Sedna grafiit

Pildid, video ja failid

Hanke korraldaja: eraisik ID80768

Pakkumised

Pakkumisi kokku: 0

Küsimused hanke korraldajale

Küsimus: private ID85226   04.09.2025 16:09
Tere, piltidel on näha,et on akusto ripplaed kas nende pealt on võimalik liikuda kaablitega,viimlistust ei pakuks aga kuna objekt on Tartus siis oleks võimalik pakkuda ka ühe maalri nr.Kas materjal on teie poolt?

Teavita reeglite rikkumisest

Korraldaja vastus: 04.09.2025 20:50

Panipaigas (D) on plaatidest ripplagi, mida saab kenasti ajutiselt eemaldada. Seal võib tõesti liikuda kaablitega ripplae taga.
Koridoris (F) on fikseeritud kipslagi, mille pealt jooksevad valgustuse kaablid.
Ülejäänud ruumides on lagi betoonplaat.
Materjalid tegija poolt, viimistlus tuleb taastada.

Teavita reeglite rikkumisest

Küsimus: private ID85226   04.09.2025 16:11
Kas on kips seinad ja millise karkassi profiili paksus võiks olla?

Teavita reeglite rikkumisest

Korraldaja vastus: 04.09.2025 20:57

Joonisel on täpitatud seinad kips. (B F G)
Triibutatud seinad on kiviplokkidest. (A D E C)
Karkassi profiili paksust ei oska öelda.

Teavita reeglite rikkumisest

Lisa küsimus

Lisa küsimus

Minu pakkumine

Reeglid

Pakkumise kirjelduse väli on mõeldud pakkumise detailsemaks lahti kirjutamiseks. Pikema teksti mugavaks sisestamiseks klikkige kasti paremal ülaservas oleval ikoonil.
Pakkumist tehes on keelatud postitada enda kontaktandmeid (nimi, telefon, aadress jne). Me jälgime ja analüüsime pakkumisi, et vältida pettuseid ja reeglite rikkumisi.
Rikkumise puhul kasutajakonto blokeeritakse.

 

Teisi töid samas valdkonnas

Valdkonnas "Elektritööd" on 5 aktiivset tööd

Vana talu elektrisüsteemi uuendamine (kilp, pistikud, välivalgustus, EV valmidus)

Asukoht: Raplamaa, Suurekivi
Aega jäänud: 1p 20h
Tehtud pakkumisi: 5

Korteri remont

Asukoht: Tartumaa
Aega jäänud: 20h 49 min
Tehtud pakkumisi: 2

Vanemad teated:

Vaata kõiki

Sellel veebilehel kasutatakse küpsiseid. Kasutamist jätkates nõustute küpsiste kasutamisega.

Sulge
 
Minu pakkumine

Reeglid

Pakkumise kirjelduse väli on mõeldud pakkumise detailsemaks lahti kirjutamiseks. Pikema teksti mugavaks sisestamiseks klikkige kasti paremal ülaservas oleval ikoonil.
Pakkumist tehes on keelatud postitada enda kontaktandmeid (nimi, telefon, aadress jne). Me jälgime ja analüüsime pakkumisi, et vältida pettuseid ja reeglite rikkumisi.
Rikkumise puhul kasutajakonto blokeeritakse.