+ Lisa oma töö      

Otsid ehitajat "Ehitusprojektid" valdkonnast?

Parima pakkumise ja teostaja leidmiseks lisa oma töö.

Palkmaja projekt.

ID 93353

515 vaatamist

Prindi

  • check Pakkumiste tegemine
    kuni 28.03.2024
  • check Võitja valik kuni
    04.04.2024
  • 3 Töö teostamine
    ja hinnang
Hanke lõpp: N, 28. märts, 2024
Maakond: Tartumaa
Muu asula: Rannu
Tööde lõpp: Kokkuleppel
Ehitusmaterjalid: Töö tegija poolt
Soovin pakkumisi: Summa kogu projektile

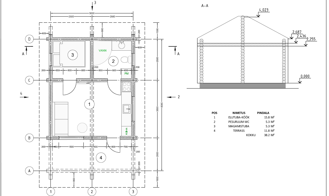
Töö sisu

Soovin ehitusloa tarbeks Eelprojekti ja sama asi tuleks ka Põhiprojektina, kuna hoone on valmis. Geodeetiline alusplaan olemas, joonised lõiked DWG formaadis olemas. Ehitusluba ei pea koostama, kannan ise EHR keskkonda sisse.

Pildid, video ja failid

Hanke korraldaja: ettevõte ID80323

Pakkumised

Pakkumisi kokku: 6

Ettevõte Summa Käibemaks Lisatud Vestlus
Kasutaja ikoon ID69164
Pakkuja profiil Väike nool paremale
1 000€ Ei ole KMKR Ei ole KMKR 26.03.2024 Vestlus (0)

Pakkumise kirjeldus:

Hoone ehitusprojekt eelprojekti staadiumis.

Koostatav projekt vastab EVS 932:2017 ja MKM määruse nr. 97 „Nõuded ehitusprojektile1" nõuetele.

Märkused:
1. Hinnapakkumine ei sisalda Topo-geodeetiliste, ehitusgeoloogiliste, dendroloogiliste uuringute koostamist, ega nende maksumust,
2. Projektiga ja projekteerimisega seotud kõik kooskõlastustas ... Rohkem

Kasutaja ikoon ID26988
Pakkuja profiil Väike nool paremale
1 400€ Ei ole KMKR Ei ole KMKR 27.03.2024 Vestlus (0)

Pakkumise kirjeldus:

Pakkumine sisaldab projekti ehitusloa taotlemiseks / ehitusteatise esitamiseks vajalikus eelprojekti mahus, vastavalt normidele ja standartidele ning Teie kirjeldusele. Kõik kooskõlastused ja asjaajamised kuni ehitusloani / ehitusteatise registreerimiseni. Vajadusel konsultatsioonid. Projekt digitaalselt Teile sobivates formaatides, 3D-visualiseering.
G ... Rohkem

Kasutaja ikoon ID58268
Pakkuja profiil Väike nool paremale
700€ Ei ole KMKR Ei ole KMKR 28.03.2024 Vestlus (0)

Pakkumise kirjeldus:

Arhitektuurne eelprojekt sisaldab:

Jooniseid: vundamendi plaani, korruste plaane, katuseplaan, lõige, vaateid, avatäidete spetsifikatsiooni ja asendiplaani koostamist.
3D mudel (pildid, IFC)
Seletuskirja

Pakkumine ei sisalda:

Projekti sisestamine ehitusregistrisse, kooskõlastamised, asjaajamine.

Projektiga ja projekteerimisega seotud k ... Rohkem

Kasutaja ikoon ID76566
Pakkuja profiil Väike nool paremale
1 400€ Ei ole KMKR Ei ole KMKR 28.03.2024 Vestlus (0)

Pakkumise kirjeldus:

Tere!

Väljatoodud hinnas pakume arhitektuurse eelprojekti koostamist.

Töömaht sisaldab:

- Esialgne visioon vastavalt sinu lähteandmetest
- Eelprojekti taotluse joonised: vundament, korruste plaanid, katuseplaan, maja sektsioon, vaated, krundi planeering geoalusel
- Seletuskiri
- Loa taotlus ning kohaliku omavalitsusega suhtlust positiivse ... Rohkem

Kasutaja ikoon ID48870
Pakkuja profiil Väike nool paremale
650€ Ei ole KMKR Ei ole KMKR 28.03.2024 Vestlus (0)

Pakkumise kirjeldus:

Ehitusprojekt eelprojekti staadiumis ehitisregistrile esitamiseks
Pakkumishind sisaldab:
Seletuskiri,Korruste plaanid, Katuse plaan,Hoone lõige, Hoone vaated, Avatäidete joonised, jm asjakohased vajalikud joonised, Asendiplaan
Kooskõlastused ehitusloa saamiseks
Ehitusloa taotluse esitamine ehistisregistrisse
Kui arve tuleb eraisikule siis saab ka ilm ... Rohkem

Kasutaja ikoon ID52246
Pakkuja profiil Väike nool paremale
400€ Ei ole KMKR Ei ole KMKR 28.03.2024 Vestlus (0)

Pakkumise kirjeldus:

Pakutav projekteerimisteenus sisaldab:
- teatisekohustusliku hoone projekti koostamine teatisenetluses nõutavas mahus

Pakutav projekteerimisteenus ei sisalda:
- toiminguid EHR-is kuni ehitusteatise väljastamisen (sh kooskõlastused ametnikega)
- geodeetilise alusplaani mõõdistamine
- riigilõivud
- projekteerimistingimuste taotlemine
- kooskõla ... Rohkem

Küsimused hanke korraldajale

Hanke korraldajale ei ole veel küsimusi esitatud.

Lisa küsimus

Lisa küsimus

Minu pakkumine

Reeglid

Pakkumise kirjelduse väli on mõeldud pakkumise detailsemaks lahti kirjutamiseks. Pikema teksti mugavaks sisestamiseks klikkige kasti paremal ülaservas oleval ikoonil.
Pakkumist tehes on keelatud postitada enda kontaktandmeid (nimi, telefon, aadress jne). Me jälgime ja analüüsime pakkumisi, et vältida pettuseid ja reeglite rikkumisi.
Rikkumise puhul kasutajakonto blokeeritakse.

 

Teisi töid samas valdkonnas

Valdkonnas "Ehitusprojektid" on 5 aktiivset tööd

no-img Pilt puudub

Kortermaja kõigi ruumide mõõdistamine ja DWG faili koostamine

Asukoht: Harjumaa, Tallinn
Aega jäänud: 1p 17h
Tehtud pakkumisi: 2

Korterelamu mõõdistusprojekti koostamine ja jooniste digitaliseerimine

Asukoht: Lääne-Virumaa, Tapa
Aega jäänud: 4p 17h
Tehtud pakkumisi: 2

Vanemad teated:

Vaata kõiki

Sellel veebilehel kasutatakse küpsiseid. Kasutamist jätkates nõustute küpsiste kasutamisega.

Sulge
 
Minu pakkumine

Reeglid

Pakkumise kirjelduse väli on mõeldud pakkumise detailsemaks lahti kirjutamiseks. Pikema teksti mugavaks sisestamiseks klikkige kasti paremal ülaservas oleval ikoonil.
Pakkumist tehes on keelatud postitada enda kontaktandmeid (nimi, telefon, aadress jne). Me jälgime ja analüüsime pakkumisi, et vältida pettuseid ja reeglite rikkumisi.
Rikkumise puhul kasutajakonto blokeeritakse.