+ Lisa oma töö      

Otsid ehitajat "Üldehitus" valdkonnast?

Parima pakkumise ja teostaja leidmiseks lisa oma töö.

160m2 Tootmiskeldri ehitus

ID 92883

489 vaatamist

Prindi

  • check Pakkumiste tegemine
    kuni 13.04.2024
  • check Võitja valik kuni
    20.04.2024
  • 3 Töö teostamine
    ja hinnang
Hanke lõpp: L, 13. aprill, 2024
Maakond: Hiiumaa
Tööde lõpp: Kokkuleppel
Ehitusmaterjalid: Töö tegija poolt
Soovin pakkumisi: Summa kogu projektile

Töö sisu

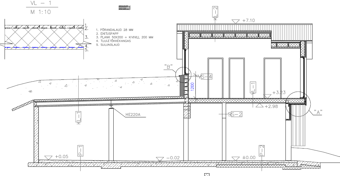
Vastavalt ehitusprojektile, 160m2 ehitusaluse pinnaga peamiselt tootmishoone ehitus, sellest 100m2 pinnasega kaetud betoonkelder. Asukoht Hiiumaal, Loja külas.

Pakkumises palun eraldi märkida betoonitööde maksumus.

Lisainfo:
Suured pinnasetööd on tehtud, vundamendi-auk on valmis, vaja nivelleerida ja tihendada.

Pildid, video ja failid

Hanke korraldaja: eraisik ID80420

Pakkumised

Pakkumisi kokku: 1

Ettevõte Summa Käibemaks Lisatud Vestlus
Kasutaja ikoon ID50594
Pakkuja profiil Väike nool paremale
100 000€ KM lisandub KM lisandub 11.04.2024 Vestlus (0)

Pakkumise kirjeldus:

Tere,

Pakkumist mitte arvestada. Jätan endast maha jälje. Et saaks hilisemalt kontakteeruda. Koostaksime eelarvestuses detailse pakkumise, vajame lisaaega.

Lgp. Taivo

Küsimused hanke korraldajale

Küsimus: private ID66447   06.04.2024 20:58
Tere!
Võin betoneerida
Ütle kuupäev

Teavita reeglite rikkumisest

Korraldaja vastus: 07.04.2024 09:00

Tervist, ootan teie pakkumist, tööde algusaeg on kokkuleppel.

Teavita reeglite rikkumisest

Lisa küsimus

Lisa küsimus

Minu pakkumine

Reeglid

Pakkumise kirjelduse väli on mõeldud pakkumise detailsemaks lahti kirjutamiseks. Pikema teksti mugavaks sisestamiseks klikkige kasti paremal ülaservas oleval ikoonil.
Pakkumist tehes on keelatud postitada enda kontaktandmeid (nimi, telefon, aadress jne). Me jälgime ja analüüsime pakkumisi, et vältida pettuseid ja reeglite rikkumisi.
Rikkumise puhul kasutajakonto blokeeritakse.

 

Teisi töid samas valdkonnas

Valdkonnas "Üldehitus" on 27 aktiivset tööd

Terassi õlitamine, 13,7 ruutu

Asukoht: Harjumaa, Saue
Aega jäänud: 5p 19h
Tehtud pakkumisi: 4

Eramaja ehitus

Asukoht: Harjumaa, Suurupi
Aega jäänud: 4p 19h
Tehtud pakkumisi: 4

Vanemad teated:

Vaata kõiki

Sellel veebilehel kasutatakse küpsiseid. Kasutamist jätkates nõustute küpsiste kasutamisega.

Sulge
 
Minu pakkumine

Reeglid

Pakkumise kirjelduse väli on mõeldud pakkumise detailsemaks lahti kirjutamiseks. Pikema teksti mugavaks sisestamiseks klikkige kasti paremal ülaservas oleval ikoonil.
Pakkumist tehes on keelatud postitada enda kontaktandmeid (nimi, telefon, aadress jne). Me jälgime ja analüüsime pakkumisi, et vältida pettuseid ja reeglite rikkumisi.
Rikkumise puhul kasutajakonto blokeeritakse.