+ Lisa oma töö      

Otsid ehitajat "Projekteerimine" valdkonnast?

Parima pakkumise ja teostaja leidmiseks lisa oma töö.

Hange on lõppenud!

Võitjaks osutus kasutaja ID 48870

Eramu konstruktiivne projekteerimine

ID 92288

896 vaatamist

Prindi

  • check Pakkumiste tegemine
    kuni 20.03.2024
  • check Võitja valik kuni
    20.03.2024
  • 3 Töö teostamine
    ja hinnang
Hanke lõpp: K, 20. märts, 2024
Maakond: Harjumaa
Tööde algus: R, 22. märts, 2024 (Soovituslik)
Tööde lõpp: P, 05. mai, 2024 (Soovituslik)
Ehitusmaterjalid: Töö tegija poolt
Soovin pakkumisi: Summa kogu projektile

Töö sisu

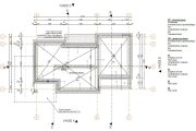
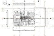
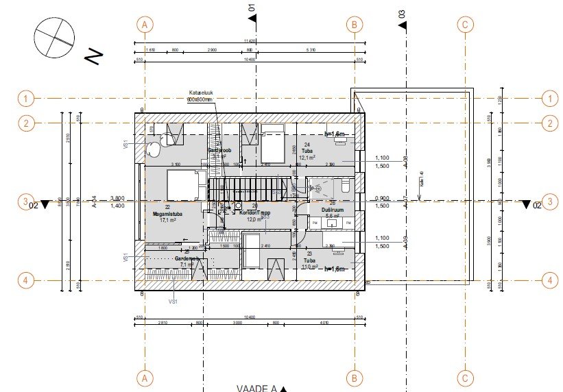
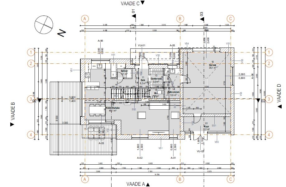
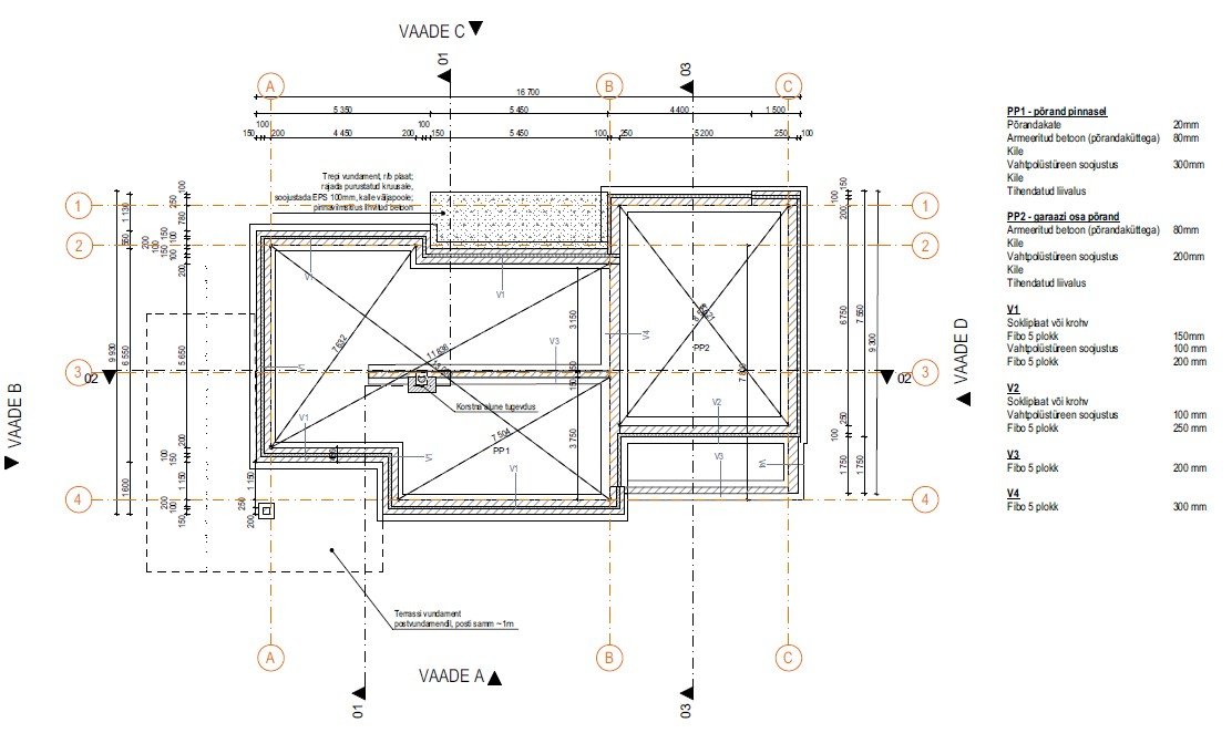
Ehitamise tarbeks vaja konstruktiivselt projekteerida 1,5 krs eramu põhisõlmed alates vundamendi lõigetest.
Välisseinad elumajal Bauroc 500, garaazil 375, õõnespaneel rb vahelagi, kivikatus. Maja ees sissepääsusüvend ja maja taga nurgas terrassisüvend/sopistus.
Arh. projekteerimine on lõpujärgus.
Lisatud väljalõiked on vaid iseloomustamaks projekti.

Pildid, video ja failid

Hanke korraldaja: eraisik ID77614

Pakkumised

Pakkumisi kokku: 7

Ettevõte Summa Käibemaks Lisatud Vestlus
Kasutaja ikoon ID44039
Pakkuja profiil Väike nool paremale
6 200€ Ei ole KMKR Ei ole KMKR 07.03.2024 Vestlus (0)

Pakkumise kirjeldus:

Hinnapakkumine sisaldab hoone ehituskonstruktsioonide osa põhiprojekti koostamist vastavalt kehtivale standardile EVS 932:2017. Hinnapakkumine ei sisalda ehitusgeoloogiliste uuringute tellimist. Hinnapakkumine on tehtud eeldusel, et vahelae toetamiseks on võimalik trepi kõrvale lisada postid ja tala.
Hinnapakkujale on väljastatud Eesti Ehitusinseneride ... Rohkem

Kasutaja ikoon ID69241
Pakkuja profiil Väike nool paremale
2 800€ Ei ole KMKR Ei ole KMKR 07.03.2024 Vestlus (4)

Pakkumise kirjeldus:

- Kas on olemas geoloogiline uuring?
- konstruktsioonijoonised arvestavad kõiki nüansse antud majas kaasaarvatud , et takistada katusefermidest või sarikatest tulevat koormust II korruse pikiseinte stabiilsusele, millele katus toetub.
- tulevad joonised katusefermidele nii tellimuseks kui kohapeal valmistamiseks tööjoonistega ;
- terrassi ja väli ... Rohkem

Kasutaja ikoon ID48870
Pakkuja profiil Väike nool paremale
1 950€ Ei ole KMKR Ei ole KMKR 07.03.2024 Vestlus (7)

Pakkumise kirjeldus:

Tere,
pakkumise hind sisaldab järgmist:
maja ehituskonstruktsioonide projekteerimine põhiprojekti staadiumis kooskõlas arhitektuurse projektiga (vt EVS 932:2017)
Projekti sisu:
1. konstruktsiooniarvutused
2. joonised
3. vundamendi plaan
4. aluspõrand - vajalikud lõiked, armatuuri mõõtmed, sammud,.
5. seinte/silluste-plaan, sõlmed, lõiked, se ... Rohkem

Kasutaja ikoon ID77668
Pakkuja profiil Väike nool paremale
1 400€ KM lisandub KM lisandub 07.03.2024 Vestlus (0)
Kasutaja ikoon ID69164
Pakkuja profiil Väike nool paremale
3 000€ Ei ole KMKR Ei ole KMKR 07.03.2024 Vestlus (0)

Pakkumise kirjeldus:

Hoone ehitusprojekt põhiprojekti staadiumis.

Koostatav projekt vastab EVS 932:2017 ja MKM määruse nr. 97 „Nõuded ehitusprojektile1" nõuetele.

Märkused:
1. Hinnapakkumine ei sisalda Topo-geodeetiliste, ehitusgeoloogiliste, dendroloogiliste uuringute koostamist, ega nende maksumust,
2. Projektiga ja projekteerimisega seotud kõik kooskõlastust ... Rohkem

Kasutaja ikoon ID47813
Pakkuja profiil Väike nool paremale
2 800€ Ei ole KMKR Ei ole KMKR 07.03.2024 Vestlus (0)

Pakkumise kirjeldus:

Tere

Hind sisaldab konstruktiivset põhiprojekti vastavalt hanke lisas toodud lähteülesandele.
Projekti graafilises osas esitatakse: vundamendi plaan, seinte (ja postide) plaanid, talade/silluste plaan, vahelae paneelide laotis ja sarikate plaan ning plaanide juurde vajalikud sõlmjoonised. Tekstilises osas esitatakse projekti seletuskiri. Vajadusel s ... Rohkem

Kasutaja ikoon ID79832
Pakkuja profiil Väike nool paremale
4 000€ KM lisandub KM lisandub 08.03.2024 Vestlus (0)

Küsimused hanke korraldajale

Küsimus: private ID73584   07.03.2024 10:12
Tervist,
1) Milline on pinnas, kas on olemas geoloogiline uuring?
2) Kas saaks lisada vaatejoonised? Praegu tundub, et ei ole arvestatud harjatala ega toolvärgi võimalusega, aga kuidagi tuleb takistada nende II korruse pikiseinte "väljavajutamist", millele katus toetub.
3) Kas katus ehitatakse kohapeal või plaanis tehasefermid tellida?
4) Kas soovite ka terrassi ja välistrepi jooniseid või ainult põhimaht?
Parimat

Teavita reeglite rikkumisest

Korraldaja vastus: 07.03.2024 11:27

Tere!
1. pinnase geoloogilist uuringut tehtud ei ole, peab ilma hakkama saama. Krunt asub Lagedi Luha tee lõpuosas.
2. kas sarikapennidest ei piisa et külgseinte väljavajumist ära hoida? Külgseintele ei tohiks sarikatelt külgsuunas mõjuvaid märkimisväärseid jõude tulla.
3. ei ole vahet, sõltub ehitajast
4. põhimahust piisab

Teavita reeglite rikkumisest

Küsimus: private ID73584   10.03.2024 11:40
Tänan,
2) Tõmbele töötavad pennid ei ole kindlasti hea lahendus. See tähendaks, et pennid mitte ei toeta sarikaid, vaid tekitavad neile olulise lisakoormuse silde keskele. Selline lahendus oleks ka tervikuna riskantne, kui-peaks-midagi-katki-hakkama-minema, siis viga ei ei pruugi endast enne märku anda.
Parem oleks kas a) harjatala, b) toolvärk, c) sarika seinale toetamise tasandil tõmbid, d) momendikindel mitteväljavajuv seina vahelaest sarikateni, e) seina peal horisontaalsuunas tugev ja jäik müürivööd (teras või raudbetoon).
Siin on mõeldavad a ja e.
Nihutaks korstna veidi harjast eemale, lisaks trepi kõrvale posti ja saab harjatalale kandma panna.

Teavita reeglite rikkumisest

Korraldaja vastus: 12.03.2024 08:50

Tänud kaasa mõtlemast. Need ja kõik muud konstruktiivsed küsimused tulebki antud projektis lahendada.

Teavita reeglite rikkumisest

Lisa küsimus

Lisa küsimus

Minu pakkumine

Reeglid

Pakkumise kirjelduse väli on mõeldud pakkumise detailsemaks lahti kirjutamiseks. Pikema teksti mugavaks sisestamiseks klikkige kasti paremal ülaservas oleval ikoonil.
Pakkumist tehes on keelatud postitada enda kontaktandmeid (nimi, telefon, aadress jne). Me jälgime ja analüüsime pakkumisi, et vältida pettuseid ja reeglite rikkumisi.
Rikkumise puhul kasutajakonto blokeeritakse.

 

Teisi töid samas valdkonnas

Valdkonnas "Projekteerimine" on 6 aktiivset tööd

no-img Pilt puudub

1-kordse 120 m2 elumaja põhiprojekt

Asukoht: Harjumaa, Metsanurme
Aega jäänud: 8p 15h
Tehtud pakkumisi: 4

no-img Pilt puudub

Saunamaja eelprojekt ehitusteatiseks

Asukoht: Lääne-Virumaa
Aega jäänud: 1p 15h
Tehtud pakkumisi: 3

Vanemad teated:

Vaata kõiki

Sellel veebilehel kasutatakse küpsiseid. Kasutamist jätkates nõustute küpsiste kasutamisega.

Sulge
 
Minu pakkumine

Reeglid

Pakkumise kirjelduse väli on mõeldud pakkumise detailsemaks lahti kirjutamiseks. Pikema teksti mugavaks sisestamiseks klikkige kasti paremal ülaservas oleval ikoonil.
Pakkumist tehes on keelatud postitada enda kontaktandmeid (nimi, telefon, aadress jne). Me jälgime ja analüüsime pakkumisi, et vältida pettuseid ja reeglite rikkumisi.
Rikkumise puhul kasutajakonto blokeeritakse.