+ Lisa oma töö      

Otsid ehitajat "Ehitusprojektid" valdkonnast?

Parima pakkumise ja teostaja leidmiseks lisa oma töö.

Hange on lõppenud!

Võitjaks osutus kasutaja ID 48870

Vee- ja kanalisatsioonisüsteemi projekteerimine eramule

ID 90757

619 vaatamist

Prindi

  • check Pakkumiste tegemine
    kuni 29.03.2024
  • check Võitja valik kuni
    05.04.2024
  • 3 Töö teostamine
    ja hinnang
Hanke lõpp: R, 29. märts, 2024
Maakond: Tartumaa
Muu asula: Nõo
Tööde algus: E, 04. märts, 2024 (Soovituslik)
Tööde lõpp: Kokkuleppel
Ehitusmaterjalid: Töö tellija poolt
Soovin pakkumisi: Summa kogu projektile

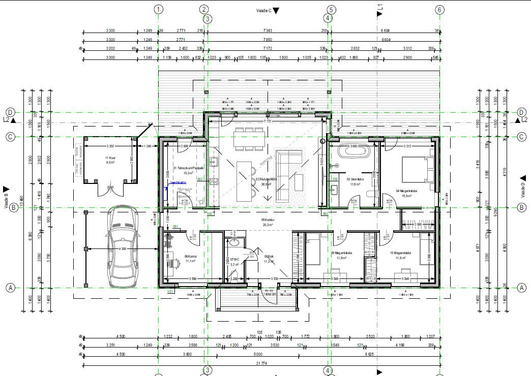
Töö sisu

Tere,

Sooviksin hinnapakkumist eramu vee- ja kanalisatsioonisüsteemi projekteerimisele (võimalusel sise ja välisosa).
Eduka koostöö puhul võimalik ka teisi eriosade projekte koostada.

Andke palun märku, kui tekib lisaküsimusi.

Pildid, video ja failid

Hanke korraldaja: eraisik ID79877

Pakkumised

Pakkumisi kokku: 5

Ettevõte Summa Käibemaks Lisatud Vestlus
Kasutaja ikoon ID79887
Pakkuja profiil Väike nool paremale
400€ Sisaldab KM Sisaldab KM 18.03.2024 Vestlus (0)

Pakkumise kirjeldus:

Pakkumine sisaldab välisosa liitumisprojekti ja ehitusteatise esitamist. Arvestatud on, et tellijal on geodeetilise alusplaan olemas.

Kasutaja ikoon ID72196
Pakkuja profiil Väike nool paremale
400€ Ei ole KMKR Ei ole KMKR 18.03.2024 Vestlus (0)
Kasutaja ikoon ID63115
Pakkuja profiil Väike nool paremale
900€ KM lisandub KM lisandub 25.03.2024 Vestlus (0)

Pakkumise kirjeldus:

Tere

Hinnapakkumine sisaldab veevarustuse- ja kanalisatsioonisüsteemide põhiprojekti.
Ettemaksu ei soovi. Vastutava isiku allkiri on hinna sees.
Veevarustuse pakkumine sisaldab vooluhulkade arvutamist, hoonesisese magistraalide ja san.seadmete ühendustorude projekteerimist, veemõõdusõlme projekteerimist, põhiseadmete mahuloetelu ja seletuskirj ... Rohkem

Kasutaja ikoon ID76553
Pakkuja profiil Väike nool paremale
800€ KM lisandub KM lisandub 28.03.2024 Vestlus (0)
Kasutaja ikoon ID48870
Pakkuja profiil Väike nool paremale
450€ Ei ole KMKR Ei ole KMKR 29.03.2024 Vestlus (0)

Pakkumise kirjeldus:

Tere,
pakkumise hind sisaldab järgmist:
maja vesi ja kanalisatsioon projekt.
Olen insener, arhitekt tase 7.
Omame MTR registreeringut, EEP-EEO-EPE-EEK,
EEP: arhitektuuri osa
hoonesisene või selle juurde kuuluv veevarustuse või kanalisatsioonisüsteem
konstruktsioonide osa
sisekliima tagamise süsteem
EEO: hoonesisene või selle juurde kuuluv vee ... Rohkem

Küsimused hanke korraldajale

Küsimus: private ID63115   16.03.2024 09:28
Tere,

Saakside palun lisada välisvõrkude tehnilised tingimused?

Teavita reeglite rikkumisest

Korraldaja vastus: 16.03.2024 12:48

Tere,

Hea tähelepanek! Lisatud.

Teavita reeglite rikkumisest

Lisa küsimus

Lisa küsimus

Minu pakkumine

Reeglid

Pakkumise kirjelduse väli on mõeldud pakkumise detailsemaks lahti kirjutamiseks. Pikema teksti mugavaks sisestamiseks klikkige kasti paremal ülaservas oleval ikoonil.
Pakkumist tehes on keelatud postitada enda kontaktandmeid (nimi, telefon, aadress jne). Me jälgime ja analüüsime pakkumisi, et vältida pettuseid ja reeglite rikkumisi.
Rikkumise puhul kasutajakonto blokeeritakse.

 

Teisi töid samas valdkonnas

Valdkonnas "Ehitusprojektid" on 5 aktiivset tööd

no-img Pilt puudub

Kortermaja kõigi ruumide mõõdistamine ja DWG faili koostamine

Asukoht: Harjumaa, Tallinn
Aega jäänud: 1p 17h
Tehtud pakkumisi: 2

Korterelamu mõõdistusprojekti koostamine ja jooniste digitaliseerimine

Asukoht: Lääne-Virumaa, Tapa
Aega jäänud: 4p 17h
Tehtud pakkumisi: 2

Vanemad teated:

Vaata kõiki

Sellel veebilehel kasutatakse küpsiseid. Kasutamist jätkates nõustute küpsiste kasutamisega.

Sulge
 
Minu pakkumine

Reeglid

Pakkumise kirjelduse väli on mõeldud pakkumise detailsemaks lahti kirjutamiseks. Pikema teksti mugavaks sisestamiseks klikkige kasti paremal ülaservas oleval ikoonil.
Pakkumist tehes on keelatud postitada enda kontaktandmeid (nimi, telefon, aadress jne). Me jälgime ja analüüsime pakkumisi, et vältida pettuseid ja reeglite rikkumisi.
Rikkumise puhul kasutajakonto blokeeritakse.