+ Lisa oma töö      

Otsid ehitajat "Vundamenditööd" valdkonnast?

Parima pakkumise ja teostaja leidmiseks lisa oma töö.

Üksikelamu vundament, kaevetööd.

ID 90367

1011 vaatamist

Prindi

  • check Pakkumiste tegemine
    kuni 15.03.2024
  • check Võitja valik kuni
    22.03.2024
  • 3 Töö teostamine
    ja hinnang
Hanke lõpp: R, 15. märts, 2024
Maakond: Tartumaa
Muu asula: Ülenurme
Tööde algus: E, 01. aprill, 2024 (Soovituslik)
Tööde lõpp: R, 31. mai, 2024 (Soovituslik)
Ehitusmaterjalid: Töö tegija poolt
Soovin pakkumisi: Summa kogu projektile

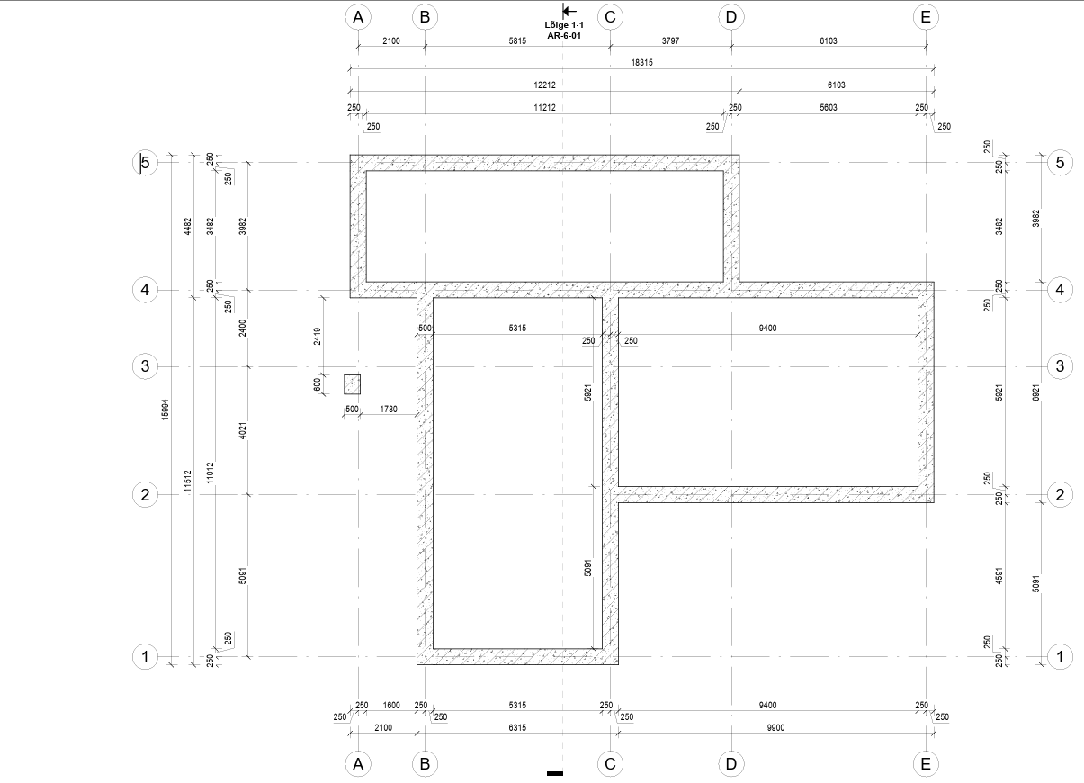
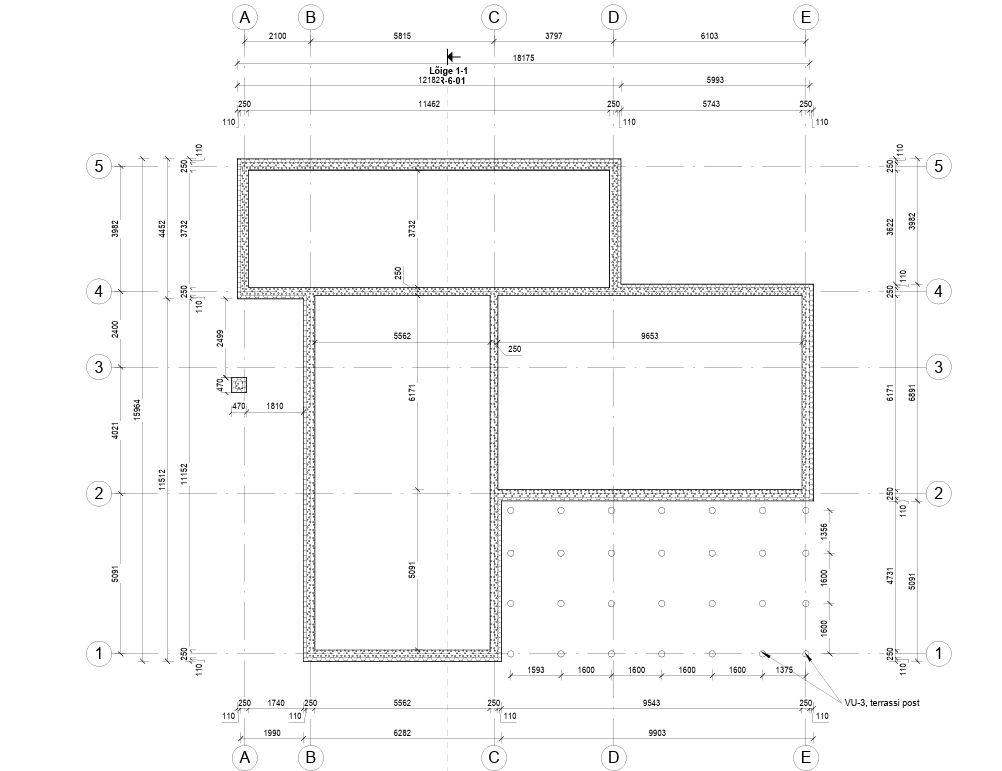
Töö sisu

Eramaja vundamendi ehitus koos kanalisatsiooni, vee ja maakaabli paigaldusega. Vundament ehitatakse 200x500 mm raudbetoon taldmikule. Vundament hüdroisoleeritakse ning soojustatakse külmumispiirini 100 mm paksuse vahtpolüstüreeni kihiga (λᴅ≤ 0,035 W/mK, nt
Styrofoam 250 SL-A-N).

Pildid, video ja failid

Hanke korraldaja: eraisik ID79477

Pakkumised

Pakkumisi kokku: 5

Ettevõte Summa Käibemaks Lisatud Vestlus
Kasutaja ikoon ID57450
Pakkuja profiil Väike nool paremale
29 800€ KM lisandub KM lisandub 15.02.2024 Vestlus (0)

Pakkumise kirjeldus:

Lintvundament vastavalt joonisele, Taldmikule laotud sarrustatud ning betoneeritud Columbia 240 plokist lint kaetud hüdroemulsiooni ning kinnise pooriga PUR vahuga.
Sobivusel võtke ühendust, tuleme läbi ning koostame detailse pakkumise.
Edukat hanget!

Kasutaja ikoon ID65880
Pakkuja profiil Väike nool paremale
36 391,8€ KM lisandub KM lisandub 15.02.2024 Vestlus (0)

Pakkumise kirjeldus:

Tere,

Hind tehtud ette antud andmetele.
Hinna sees töö ja materjal.
Täpsustus veel:
Hinnas samuti maja nurkade märkimised ja dokumentatsioonide koostamine.

Kasutaja ikoon ID77490
Pakkuja profiil Väike nool paremale
28 000€ KM lisandub KM lisandub 15.02.2024 Vestlus (0)

Pakkumise kirjeldus:

Hind vastavalt lähte ülesandele.
Mahamärkimine geodeedipoolt ja vajadusel ja dok.

Kasutaja ikoon ID79499
Pakkuja profiil Väike nool paremale
25 380€ KM lisandub KM lisandub 19.02.2024 Vestlus (0)

Pakkumise kirjeldus:

Hind sisaldab materjali ja töö raha.
Tööde aeg hinnanguliselt 1-2 nädalat.

Kõike head!

Kasutaja ikoon ID61081
Pakkuja profiil Väike nool paremale
19 550€ KM lisandub KM lisandub 05.03.2024 Vestlus (0)

Pakkumise kirjeldus:

Tere.

Hinnapakkumine sisaldab:
* mahamärkimine geodeedi poolt
* kasvupinnase väljakaeve (ladustamine objektil)
* killustik padja ehitus 200mm taldmiku alla
* vormest 250x500 taldmiku ehitus
* fibo 5 effekt 250 vundamendi müüride ehitus
* hüdroisolatsioon SBS rullmaterjal väliskülg
* XPS 250 100mm soojustus välis külg
EI sisalda tagasitä ... Rohkem

Küsimused hanke korraldajale

Hanke korraldajale ei ole veel küsimusi esitatud.

Lisa küsimus

Lisa küsimus

Minu pakkumine

Reeglid

Pakkumise kirjelduse väli on mõeldud pakkumise detailsemaks lahti kirjutamiseks. Pikema teksti mugavaks sisestamiseks klikkige kasti paremal ülaservas oleval ikoonil.
Pakkumist tehes on keelatud postitada enda kontaktandmeid (nimi, telefon, aadress jne). Me jälgime ja analüüsime pakkumisi, et vältida pettuseid ja reeglite rikkumisi.
Rikkumise puhul kasutajakonto blokeeritakse.

 

Teisi töid samas valdkonnas

Valdkonnas "Vundamenditööd" on 4 aktiivset tööd

no-img Pilt puudub

Plaatvundamendi ehitus

Asukoht: Harjumaa
Aega jäänud: 8p 22h
Tehtud pakkumisi: 1

Vana hoone utiliseerimine ja plaatvundamendi valamine

Asukoht: Viljandimaa, Jaska
Aega jäänud: 11p 22h
Tehtud pakkumisi: 0

Vanemad teated:

Vaata kõiki

Sellel veebilehel kasutatakse küpsiseid. Kasutamist jätkates nõustute küpsiste kasutamisega.

Sulge
 
Minu pakkumine

Reeglid

Pakkumise kirjelduse väli on mõeldud pakkumise detailsemaks lahti kirjutamiseks. Pikema teksti mugavaks sisestamiseks klikkige kasti paremal ülaservas oleval ikoonil.
Pakkumist tehes on keelatud postitada enda kontaktandmeid (nimi, telefon, aadress jne). Me jälgime ja analüüsime pakkumisi, et vältida pettuseid ja reeglite rikkumisi.
Rikkumise puhul kasutajakonto blokeeritakse.