+ Lisa oma töö      

Otsid ehitajat "Ehitusprojektid" valdkonnast?

Parima pakkumise ja teostaja leidmiseks lisa oma töö.

Maja kasutusluba

ID 90226

577 vaatamist

Prindi

  • check Pakkumiste tegemine
    kuni 15.02.2024
  • check Võitja valik kuni
    22.02.2024
  • 3 Töö teostamine
    ja hinnang
Hanke lõpp: N, 15. veebruar, 2024
Maakond: Harjumaa
Muu asula: Odulemma
Tööde algus: E, 12. veebruar, 2024 (Soovituslik)
Tööde lõpp: P, 31. märts, 2024 (Soovituslik)
Ehitusmaterjalid: Töö tellija poolt
Soovin pakkumisi: Summa kogu projektile

Töö sisu

Vajan kasutusluba 2021 aastal ehitatud majale.
Olemasoleavad dokumendid:
projekteerimisfirma projekt
geoalus
fotod erinevatest ehitusjärkudest ning torudest
Ehitajate osaliselt täiedetud kaetud tööde akt
Ei ole elektriprojekti
Tuleohutuse dokumentatsioon (sh korstnapühkija akt) – olemas ahju paigaldajapoolne projekt
Elektripaigaldise audit – ei ole
Gaasipaigaldise audit – gaasi ei ole vaja
Ehitusjärgne topogeodeetiline mõõdistus – ei ole
Energiamärgis – ei ole

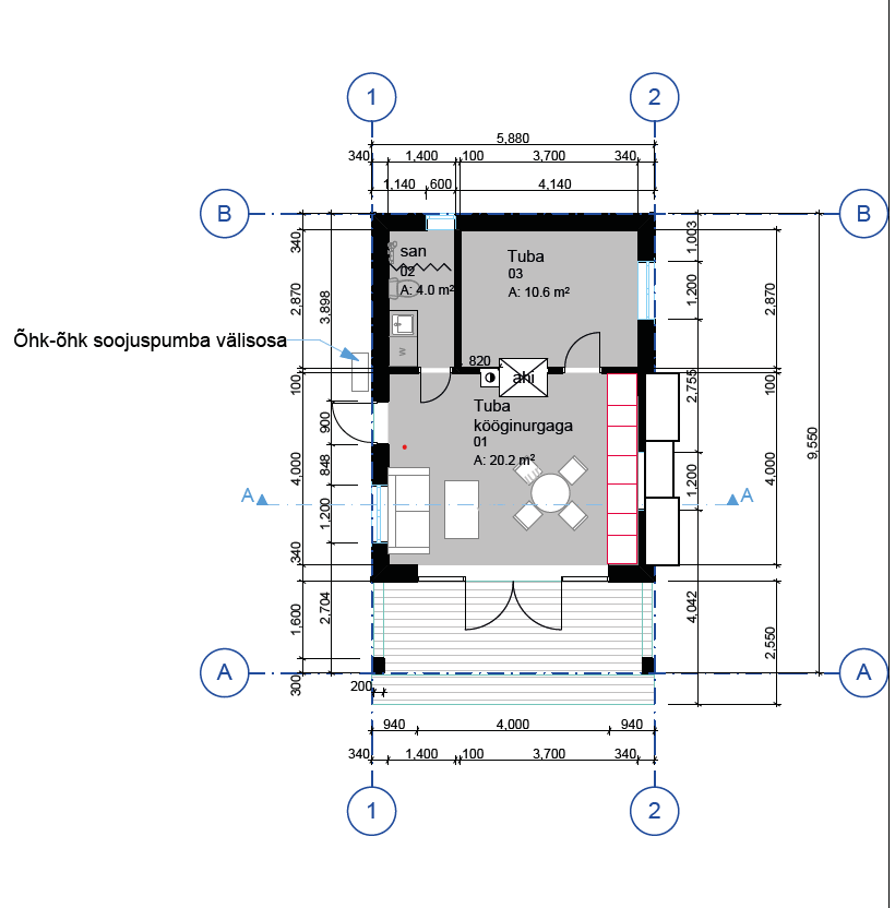
Pildid, video ja failid

Hanke korraldaja: eraisik ID73519

Pakkumised

Pakkumisi kokku: 4

Ettevõte Summa Käibemaks Lisatud Vestlus
Kasutaja ikoon ID37465
Pakkuja profiil Väike nool paremale
2 950€ KM lisandub KM lisandub 13.02.2024 Vestlus (0)

Pakkumise kirjeldus:

Tere

Hea meelega koostan kõik puuduolevad dokumendid ning taotlen kasutusloa.
Töödega saan alustada kahe nädala jooksul peale töö kinnitamist. Dokumendid valmivad hiljemalt 1,5 kuu jooksul peale töö kinnitamist. Sellele lisandub kohaliku omavalitsuse menetluse aeg.

Meie töö lõppeb siis kui kasutusluba on käes.

Meeldivale koostööle l ... Rohkem

Kasutaja ikoon ID53569
Pakkuja profiil Väike nool paremale
2 150€ KM lisandub KM lisandub 13.02.2024 Vestlus (0)

Pakkumise kirjeldus:

Hinnapakkumine sisaldab kõik vajalike dokumente ja asjaajamist kohaliku omavalitsusega. Sealhulgas Ehitusjärgset mõõdistust, elektripaigaldise auditit, ehitise auditit, eriosade teostusjooniseid, energiamärgis.

Omavahel sõlmitakse leping tööde teostaise kohta. Teostame kasutuslube igapäevaselt ja saame võta Teie töö koheselt ja alustada puu ... Rohkem

Kasutaja ikoon ID58894
Pakkuja profiil Väike nool paremale
3 950€ Sisaldab KM Sisaldab KM 13.02.2024 Vestlus (0)

Pakkumise kirjeldus:

Tere päevast,

Minu hinnapakkumine on tehtud teiepoolt kirjeldatud töödele.

1. Pärast eelprojekti koostamist.
2. Vajaminevate dokumentide esitamine omavalitsusele, kuni ehitusloa taotluseni välja. See sõltub juba menetluse ajast.
3. Projektiga saab alustada 2-3 nädala pärast. Dokumendid , auditid valmivad ca. 1kuu mõõdudes.

Kui teil on t ... Rohkem

Kasutaja ikoon ID77562
Pakkuja profiil Väike nool paremale
2 100€ Sisaldab KM Sisaldab KM 15.02.2024 Vestlus (0)

Pakkumise kirjeldus:

Juhin tähelepanu, kuna puuduvad eriosade projektid, võib vald nõuda teostusjooniste esitamist, millega hinnapakkumises ei ole arvestatud.

Pakkumine sisaldab:

1) ehitusdokumentatsiooni kontroll
2) elektriaudit
3) ehitusjärgne kontrollmõõdistus
4) energiamärgis
5) kasutusloa taoluse esitamist ja juhtimist

Pakkumine ei sisalda:

1) ehitus ... Rohkem

Küsimused hanke korraldajale

Küsimus: private ID77562   14.02.2024 16:47
Kas teil olemas ahju paigaldamisakt allkirjastatud pädeva isiku poolt? Teostatud korstnapühkimine?

Teavita reeglite rikkumisest

Korraldaja vastus:
Hanke korraldaja ei ole küsimusele veel vastanud

Küsimus: private ID72067   14.02.2024 22:52
Kas osaline pakkumine ka sobib? Saame pakkuda ainult ehitusjärgne kontrollmõõdistus.

Teavita reeglite rikkumisest

Korraldaja vastus:
Hanke korraldaja ei ole küsimusele veel vastanud

Lisa küsimus

Lisa küsimus

Minu pakkumine

Reeglid

Pakkumise kirjelduse väli on mõeldud pakkumise detailsemaks lahti kirjutamiseks. Pikema teksti mugavaks sisestamiseks klikkige kasti paremal ülaservas oleval ikoonil.
Pakkumist tehes on keelatud postitada enda kontaktandmeid (nimi, telefon, aadress jne). Me jälgime ja analüüsime pakkumisi, et vältida pettuseid ja reeglite rikkumisi.
Rikkumise puhul kasutajakonto blokeeritakse.

 

Teisi töid samas valdkonnas

Valdkonnas "Ehitusprojektid" on 5 aktiivset tööd

no-img Pilt puudub

Kortermaja kõigi ruumide mõõdistamine ja DWG faili koostamine

Asukoht: Harjumaa, Tallinn
Aega jäänud: 1p 18h
Tehtud pakkumisi: 2

Korterelamu mõõdistusprojekti koostamine ja jooniste digitaliseerimine

Asukoht: Lääne-Virumaa, Tapa
Aega jäänud: 4p 18h
Tehtud pakkumisi: 2

Vanemad teated:

Vaata kõiki

Sellel veebilehel kasutatakse küpsiseid. Kasutamist jätkates nõustute küpsiste kasutamisega.

Sulge
 
Minu pakkumine

Reeglid

Pakkumise kirjelduse väli on mõeldud pakkumise detailsemaks lahti kirjutamiseks. Pikema teksti mugavaks sisestamiseks klikkige kasti paremal ülaservas oleval ikoonil.
Pakkumist tehes on keelatud postitada enda kontaktandmeid (nimi, telefon, aadress jne). Me jälgime ja analüüsime pakkumisi, et vältida pettuseid ja reeglite rikkumisi.
Rikkumise puhul kasutajakonto blokeeritakse.