+ Lisa oma töö      

Otsid ehitajat "Projekteerimine" valdkonnast?

Parima pakkumise ja teostaja leidmiseks lisa oma töö.

2 kohvikupinna ventilatsiooni projekteerimine

ID 89892

452 vaatamist

Prindi

  • check Pakkumiste tegemine
    kuni 22.02.2024
  • check Võitja valik kuni
    29.02.2024
  • 3 Töö teostamine
    ja hinnang
Hanke lõpp: N, 22. veebruar, 2024
Maakond: Harjumaa
Linn: Tallinn
Tööde algus: N, 08. veebruar, 2024 (Soovituslik)
Tööde lõpp: N, 29. veebruar, 2024 (Soovituslik)
Ehitusmaterjalid: Töö tellija poolt
Soovin pakkumisi: Summa kogu projektile

Töö sisu

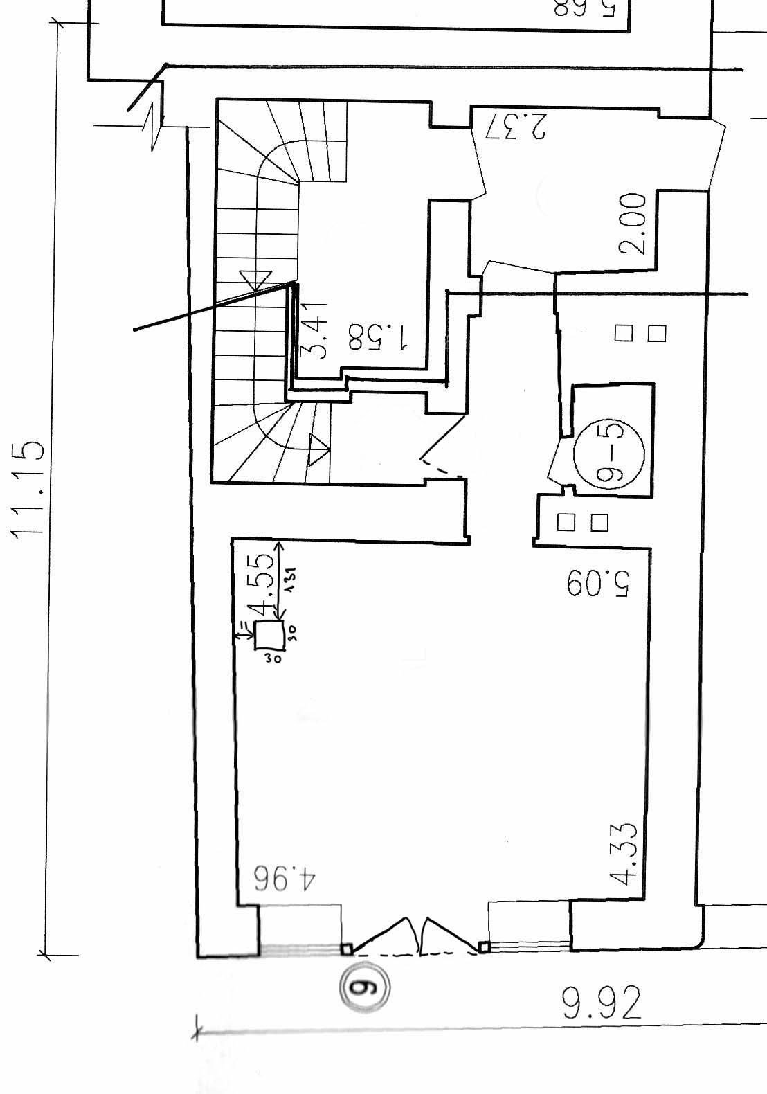
Vaja oleks koostada ventilatsiooni projekt kahele eraldiasuvale väikesele kohviku/restoranipinnale (57 ja 25 ruutu) Tallinna Vanalinnas, mis asuvad samas hoones.

Pildid, video ja failid

Hanke korraldaja: eraisik ID59214

Pakkumised

Pakkumisi kokku: 0

Küsimused hanke korraldajale

Küsimus: private ID76553   12.02.2024 15:50
Tere!

Kas teil on olemas ruumidest alusjoonised?

Teavita reeglite rikkumisest

Korraldaja vastus: 13.02.2024 09:04

Tervist, lisasin ruumide plaanid.

Teavita reeglite rikkumisest

Küsimus: private ID76553   19.02.2024 08:41
Tere!

Kas suurköögiseadmeid soovitakse projekti?

Teavita reeglite rikkumisest

Korraldaja vastus: 19.02.2024 08:53

Jah:
Suuremal pinnal 1 pliidiplaat, 1 ahi ja 1 fritüür, keldris, sinna kubu.

Väiksemal pinnal fritüür ja pliit, kubu 1 k pinnal.

Teavita reeglite rikkumisest

Lisa küsimus

Lisa küsimus

Minu pakkumine

Reeglid

Pakkumise kirjelduse väli on mõeldud pakkumise detailsemaks lahti kirjutamiseks. Pikema teksti mugavaks sisestamiseks klikkige kasti paremal ülaservas oleval ikoonil.
Pakkumist tehes on keelatud postitada enda kontaktandmeid (nimi, telefon, aadress jne). Me jälgime ja analüüsime pakkumisi, et vältida pettuseid ja reeglite rikkumisi.
Rikkumise puhul kasutajakonto blokeeritakse.

 

Teisi töid samas valdkonnas

Valdkonnas "Projekteerimine" on 6 aktiivset tööd

no-img Pilt puudub

1-kordse 120 m2 elumaja põhiprojekt

Asukoht: Harjumaa, Metsanurme
Aega jäänud: 8p 14h
Tehtud pakkumisi: 4

no-img Pilt puudub

Saunamaja eelprojekt ehitusteatiseks

Asukoht: Lääne-Virumaa
Aega jäänud: 1p 14h
Tehtud pakkumisi: 3

Vanemad teated:

Vaata kõiki

Sellel veebilehel kasutatakse küpsiseid. Kasutamist jätkates nõustute küpsiste kasutamisega.

Sulge
 
Minu pakkumine

Reeglid

Pakkumise kirjelduse väli on mõeldud pakkumise detailsemaks lahti kirjutamiseks. Pikema teksti mugavaks sisestamiseks klikkige kasti paremal ülaservas oleval ikoonil.
Pakkumist tehes on keelatud postitada enda kontaktandmeid (nimi, telefon, aadress jne). Me jälgime ja analüüsime pakkumisi, et vältida pettuseid ja reeglite rikkumisi.
Rikkumise puhul kasutajakonto blokeeritakse.