+ Lisa oma töö      

Otsid ehitajat "Projekteerimine" valdkonnast?

Parima pakkumise ja teostaja leidmiseks lisa oma töö.

Hange on lõppenud!

Võitjaks osutus kasutaja ID 66770

Eramu eriosade projekteerimine

ID 89799

807 vaatamist

Prindi

  • check Pakkumiste tegemine
    kuni 20.02.2024
  • check Võitja valik kuni
    27.02.2024
  • 3 Töö teostamine
    ja hinnang
Hanke lõpp: T, 20. veebruar, 2024
Maakond: Harjumaa
Tööde algus: R, 01. märts, 2024 (Soovituslik)
Tööde lõpp: R, 26. aprill, 2024 (Soovituslik)
Ehitusmaterjalid: Töö tegija poolt
Soovin pakkumisi: Summa kogu projektile

Töö sisu

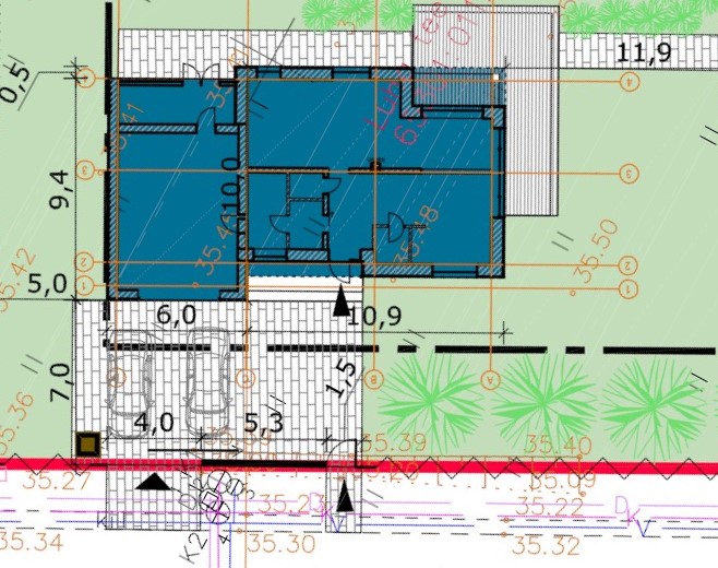
1,5-kordne, Rae valda ehitatav eramaja, eluruumid ca 130 m2 + garaaz/kuur.

Põhiprojekti mahus projekteerida:
- küte (maasoojuspump, põrandaküte)
- hoonesisene VK
- ventilatsioon
- elekter sh. nõrkvool

Lihtne ja kompaktne hoone, mingeid erilahendusi ei ole.
Garaazi, kuuri, tehnoruumi ja sahvrisse põrandakütet ei tule.
Liitumispunktid ca 7-8 m kaugusel hoonest.

Arh. eelprojekt olemas, eriosade projekteerija saab need soovi korral dwg kujul.

Lisatud pilt on vaid visualiseerimaks hoonet ja ruumilahendust.

Pildid, video ja failid

Hanke korraldaja: eraisik ID77614

Pakkumised

Pakkumisi kokku: 6

Ettevõte Summa Käibemaks Lisatud Vestlus
Kasutaja ikoon ID79118
Pakkuja profiil Väike nool paremale
1 900€ KM lisandub KM lisandub 07.02.2024 Vestlus (0)

Pakkumise kirjeldus:

Pakkumine ei sisalda ELEKTRI projekteerimist. Sisaldab kütet, põrandakütet, vesi ja kanalisatsioon hoone sees( krundi sisesed trassid eraldi tööna), ventilatsioon. Projekteerib tase 7 insener.

Kasutaja ikoon ID31470
Pakkuja profiil Väike nool paremale
3 600€ KM lisandub KM lisandub 07.02.2024 Vestlus (0)

Pakkumise kirjeldus:

Tere, teeme pakkumise küsitud eriosade põhiprojektide koostamiseks.

KüteVentVesiKanalisatsiooni sise osa põhiprojekt 2400+km
Tugev ja nõrkvoolu siseosade põhiprojektid - 1200+km

Edu hankel!
Lugupidamisega,
V.

Kasutaja ikoon ID63115
Pakkuja profiil Väike nool paremale
1 300€ KM lisandub KM lisandub 07.02.2024 Vestlus (2)

Pakkumise kirjeldus:

Tere

Hinnapakkumine sisaldab kütte-, ventilatsiooni-, veevarustuse- ja kanalisatsioonisüsteemide põhiprojekti.
Ettemaksu ei soovi. Vastutava isiku allkiri on hinna sees.
Kütte pakkumine sisaldab soojuskadude arvutamist dünaamilises tarkvaras, põrandküttetorude projekteerimist, magistraalide jooniseid, põhiseadmete mahuloetelu ja seletuskirja. (v ... Rohkem

Kasutaja ikoon ID72427
Pakkuja profiil Väike nool paremale
1 500€ Ei ole KMKR Ei ole KMKR 08.02.2024 Vestlus (0)

Pakkumise kirjeldus:

Tere.

Pakun tugev- ja nõrkvvoolu projekti põhiprojekti staadiumis.

Tugevvoolu süsteemide koosseisu kuuluvad:
• elektrivarustus;
• maandus ja potentsiaalühtlustus;
• kaabliteed;
• elektriseadmete ja pistikupesade võrk;
• valgustus ja lülitid;
• kilbid.

Nõrkvoolu süsteemide koosseisu kuuluvad:
• andmesidevõrk;
• valve; ... Rohkem

Kasutaja ikoon ID66770
Pakkuja profiil Väike nool paremale
1 350€ Sisaldab KM Sisaldab KM 09.02.2024 Vestlus (0)

Pakkumise kirjeldus:

Tere,

Antud hinnapakkumine sisaldab kütte-, ventilatsiooni-, veevarustuse- ja kanalisatsiooni hoonesiseste süsteemide eelprojekti ja põhiprojekti eramajale, maht vastavalt standardile EVS 932 "Ehitusprojekt”.

Kütte projektis sisalduvad soojuskadude arvutus, põrandakütte torude projekteerimine, magistraaltorude jooniseid, soojuspumba/kütteallik ... Rohkem

Kasutaja ikoon ID48870
Pakkuja profiil Väike nool paremale
1 250€ Ei ole KMKR Ei ole KMKR 20.02.2024 Vestlus (0)

Pakkumise kirjeldus:

minu pakkumine on järgmine:

vee- ja kanalisatsiooniprojekt, torustikud ja tarbimispunktid,
kütte- ja ventilatsiooniprojekt

Küsimused hanke korraldajale

Hanke korraldajale ei ole veel küsimusi esitatud.

Lisa küsimus

Lisa küsimus

Minu pakkumine

Reeglid

Pakkumise kirjelduse väli on mõeldud pakkumise detailsemaks lahti kirjutamiseks. Pikema teksti mugavaks sisestamiseks klikkige kasti paremal ülaservas oleval ikoonil.
Pakkumist tehes on keelatud postitada enda kontaktandmeid (nimi, telefon, aadress jne). Me jälgime ja analüüsime pakkumisi, et vältida pettuseid ja reeglite rikkumisi.
Rikkumise puhul kasutajakonto blokeeritakse.

 

Teisi töid samas valdkonnas

Valdkonnas "Projekteerimine" on 6 aktiivset tööd

no-img Pilt puudub

1-kordse 120 m2 elumaja põhiprojekt

Asukoht: Harjumaa, Metsanurme
Aega jäänud: 8p 19h
Tehtud pakkumisi: 4

no-img Pilt puudub

Saunamaja eelprojekt ehitusteatiseks

Asukoht: Lääne-Virumaa
Aega jäänud: 1p 19h
Tehtud pakkumisi: 3

Vanemad teated:

Vaata kõiki

Sellel veebilehel kasutatakse küpsiseid. Kasutamist jätkates nõustute küpsiste kasutamisega.

Sulge
 
Minu pakkumine

Reeglid

Pakkumise kirjelduse väli on mõeldud pakkumise detailsemaks lahti kirjutamiseks. Pikema teksti mugavaks sisestamiseks klikkige kasti paremal ülaservas oleval ikoonil.
Pakkumist tehes on keelatud postitada enda kontaktandmeid (nimi, telefon, aadress jne). Me jälgime ja analüüsime pakkumisi, et vältida pettuseid ja reeglite rikkumisi.
Rikkumise puhul kasutajakonto blokeeritakse.