+ Lisa oma töö      

Otsid ehitajat "Projekteerimine" valdkonnast?

Parima pakkumise ja teostaja leidmiseks lisa oma töö.

Hange on lõppenud!

Võitjaks osutus kasutaja ID 28669

Korraldaja hinnang tehtud tööle

5.0
13.03.2024
Töökiirus: 12345
Kvaliteet: 12345
Hind: 12345

Hea hind,kiire teostus. Soovitan. - Harry K.

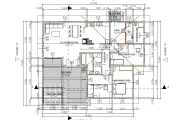
Kuuri projekt

ID 89741

1099 vaatamist

Prindi

  • check Pakkumiste tegemine
    kuni 10.02.2024
  • check Võitja valik kuni
    10.02.2024
  • 3 Töö teostamine
    ja hinnang
Hanke lõpp: L, 10. veebruar, 2024
Maakond: Harjumaa
Muu asula: Kadja
Tööde algus: N, 29. veebruar, 2024 (Soovituslik)
Tööde lõpp: K, 13. märts, 2024 (Soovituslik)
Ehitusmaterjalid: Töö tellija poolt
Soovin pakkumisi: Summa kogu projektile

Töö sisu

Soovin pakkumist kuuri projektile 55 m2 .Ehitisteatise juurde.

Pildid, video ja failid

Hanke korraldaja: eraisik ID79571

Pakkumised

Pakkumisi kokku: 9

Ettevõte Summa Käibemaks Lisatud Vestlus
Kasutaja ikoon ID58268
Pakkuja profiil Väike nool paremale
700€ Ei ole KMKR Ei ole KMKR 05.02.2024 Vestlus (0)

Pakkumise kirjeldus:

Arhitektuurne eelprojekt sisaldab:
• Jooniseid: vundamendi plaani, korruste plaane, katuseplaan, lõige, vaateid, avatäidete spetsifikatsiooni ja asendiplaani koostamist.
• 3D mudel (pildid, IFC)
• Seletuskirja
• Projekti sisestamine ehitusregistrisse, kooskõlastamised, asjaajamine.

Pakkumine ei sisalda:
• Projektiga ja projekteerimisega ... Rohkem

Kasutaja ikoon ID78702
Pakkuja profiil Väike nool paremale
700€ Ei ole KMKR Ei ole KMKR 05.02.2024 Vestlus (0)

Pakkumise kirjeldus:

Arhitektuurne eelprojekt.

Pakkumine sisaldab:
Seletuskiri
Asukohaskeem (kui KOV nõuab asendiplaani geomõõdistuse alusel, siis lisandub hinnale ca 350 eur - uuringu hind.)
Põhiplaan
Lõige
Vaated
3D vaated (soovi korral).

Hoone andmete sisestamine EHR-i.
Ehitusteatise esitamine EHR-i.
Kooskõlastamist kohaliku omavalitsuse ja päästeametiga ... Rohkem

Kasutaja ikoon ID76566
Pakkuja profiil Väike nool paremale
1 900€ Sisaldab KM Sisaldab KM 05.02.2024 Vestlus (0)

Pakkumise kirjeldus:

Tere!

Hinnas pakume arhitektuurse eelprojekti koostamist ja ehitisteatise taotlust kuni positiivse kinnituseni.

- Koostame vajalikud joonised: vundament, korruste plaanid, katuseplaan, maja sektsioon, vaated, krundi planeering geoalusel, akende/uste spetsifikatsioon
- Seletuskiri
- Ehitisteatise taotlus ning kohaliku omavalitsusega suhtlust posit ... Rohkem

Kasutaja ikoon ID58894
Pakkuja profiil Väike nool paremale
2 300€ Sisaldab KM Sisaldab KM 05.02.2024 Vestlus (0)

Pakkumise kirjeldus:

Tere päevast,

Minu hinnapakkumine on tehtud teiepoolt kirjeldatud töödele.

1.Projekteerimine, ehitusteatis.
2. Pärast neid tõid võin ehitustöödega sammuti alustada.

Kui teil on tekkinud minu pakkumisega seoses küsimusi siis vastan teile meeleldi.
Teie olete maja peremees valige ka endale õige meistrimees!
Maksetingimustest saame rääki ... Rohkem

Kasutaja ikoon ID76795
Pakkuja profiil Väike nool paremale
640€ Ei ole KMKR Ei ole KMKR 05.02.2024 Vestlus (0)

Pakkumise kirjeldus:

Tere

Töö sisaldab arhitektuurset eelprojekti kuuri uusehitisele
Projekt valmib vastavalt Eesti Vabariigis kehtivatele seadustele ja standarditele.
Pakkumine sisaldab:
Seletuskiri
Asendiplaan (Maa-ameti aerofotol)
Kuuri põhiplaan
Kuuri lõige
Kuuri vaated
3D vaated.
Vajadusel vundamendi joonis.
Hoone andmete sisestamine EHR-i.
Ehitusteatise ... Rohkem

Kasutaja ikoon ID69164
Pakkuja profiil Väike nool paremale
600€ Ei ole KMKR Ei ole KMKR 05.02.2024 Vestlus (0)

Pakkumise kirjeldus:

Koostatav projekt vastab EVS 932:2017 ja MKM määruse nr. 97 „Nõuded ehitusprojektile1" nõuetele.

Märkused:
1. Hinnapakkumine ei sisalda Topo-geodeetiliste, ehitusgeoloogiliste, dendroloogiliste uuringute koostamist, ega nende maksumust,
2. Projektiga ja projekteerimisega seotud kõik kooskõlastustasud ja riigilõivud (nt. projekteerimistingimust ... Rohkem

Kasutaja ikoon ID28669
Pakkuja profiil Väike nool paremale
350€ Ei ole KMKR Ei ole KMKR 05.02.2024 Vestlus (0)

Pakkumise kirjeldus:

Hind sisaldab projekti ja seletuskirja ning kuuri andmete ehitisregistrisse kandmist.

Kasutaja ikoon ID74162
Pakkuja profiil Väike nool paremale
1 900€ KM lisandub KM lisandub 06.02.2024 Vestlus (0)

Pakkumise kirjeldus:

Tere,

Teostan eelprojekti + boonusena 3D plaan ja vaated.

Kasutaja ikoon ID46505
Pakkuja profiil Väike nool paremale
700€ Sisaldab KM Sisaldab KM 06.02.2024 Vestlus (0)

Pakkumise kirjeldus:

Kuuri arhitektuurne eelprojekt ja ehitusteatise esitamine. Tellija poolt vajalik geodeetiline alusplaan.

Küsimused hanke korraldajale

Hanke korraldajale ei ole veel küsimusi esitatud.

Lisa küsimus

Lisa küsimus

Minu pakkumine

Reeglid

Pakkumise kirjelduse väli on mõeldud pakkumise detailsemaks lahti kirjutamiseks. Pikema teksti mugavaks sisestamiseks klikkige kasti paremal ülaservas oleval ikoonil.
Pakkumist tehes on keelatud postitada enda kontaktandmeid (nimi, telefon, aadress jne). Me jälgime ja analüüsime pakkumisi, et vältida pettuseid ja reeglite rikkumisi.
Rikkumise puhul kasutajakonto blokeeritakse.

 

Teisi töid samas valdkonnas

Valdkonnas "Projekteerimine" on 6 aktiivset tööd

no-img Pilt puudub

1-kordse 120 m2 elumaja põhiprojekt

Asukoht: Harjumaa, Metsanurme
Aega jäänud: 8p 20h
Tehtud pakkumisi: 4

no-img Pilt puudub

Saunamaja eelprojekt ehitusteatiseks

Asukoht: Lääne-Virumaa
Aega jäänud: 1p 20h
Tehtud pakkumisi: 3

Vanemad teated:

Vaata kõiki

Sellel veebilehel kasutatakse küpsiseid. Kasutamist jätkates nõustute küpsiste kasutamisega.

Sulge
 
Minu pakkumine

Reeglid

Pakkumise kirjelduse väli on mõeldud pakkumise detailsemaks lahti kirjutamiseks. Pikema teksti mugavaks sisestamiseks klikkige kasti paremal ülaservas oleval ikoonil.
Pakkumist tehes on keelatud postitada enda kontaktandmeid (nimi, telefon, aadress jne). Me jälgime ja analüüsime pakkumisi, et vältida pettuseid ja reeglite rikkumisi.
Rikkumise puhul kasutajakonto blokeeritakse.