+ Lisa oma töö      

Otsid ehitajat "Ehitusprojektid" valdkonnast?

Parima pakkumise ja teostaja leidmiseks lisa oma töö.

Hange on lõppenud!

Võitjaks osutus kasutaja ID 39199

Eramu konstruktsiooni põhiprojekt

ID 89736

759 vaatamist

Prindi

  • check Pakkumiste tegemine
    kuni 18.02.2024
  • check Võitja valik kuni
    25.02.2024
  • 3 Töö teostamine
    ja hinnang
Hanke lõpp: P, 18. veebruar, 2024
Maakond: Harjumaa
Muu asula: Hüüru
Tööde algus: E, 26. veebruar, 2024 (Soovituslik)
Tööde lõpp: P, 31. märts, 2024 (Soovituslik)
Ehitusmaterjalid: Töö tellija poolt
Soovin pakkumisi: Summa kogu projektile

Töö sisu

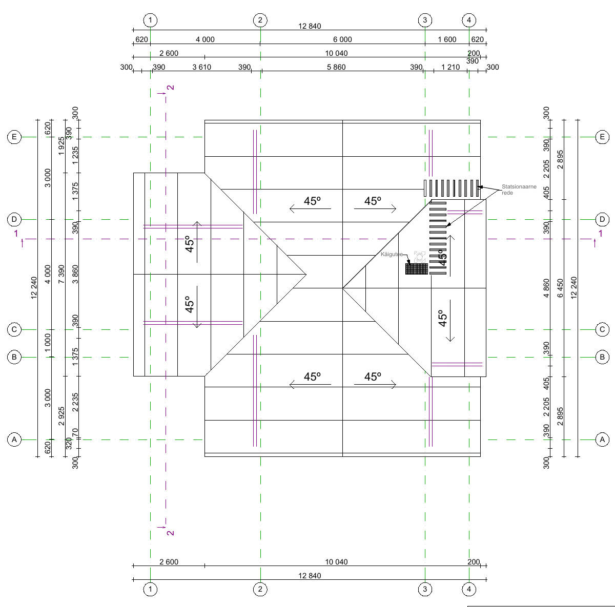
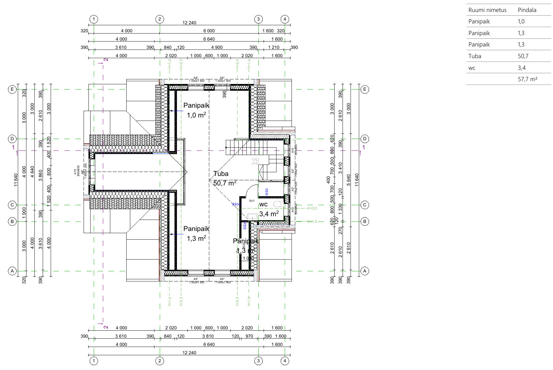
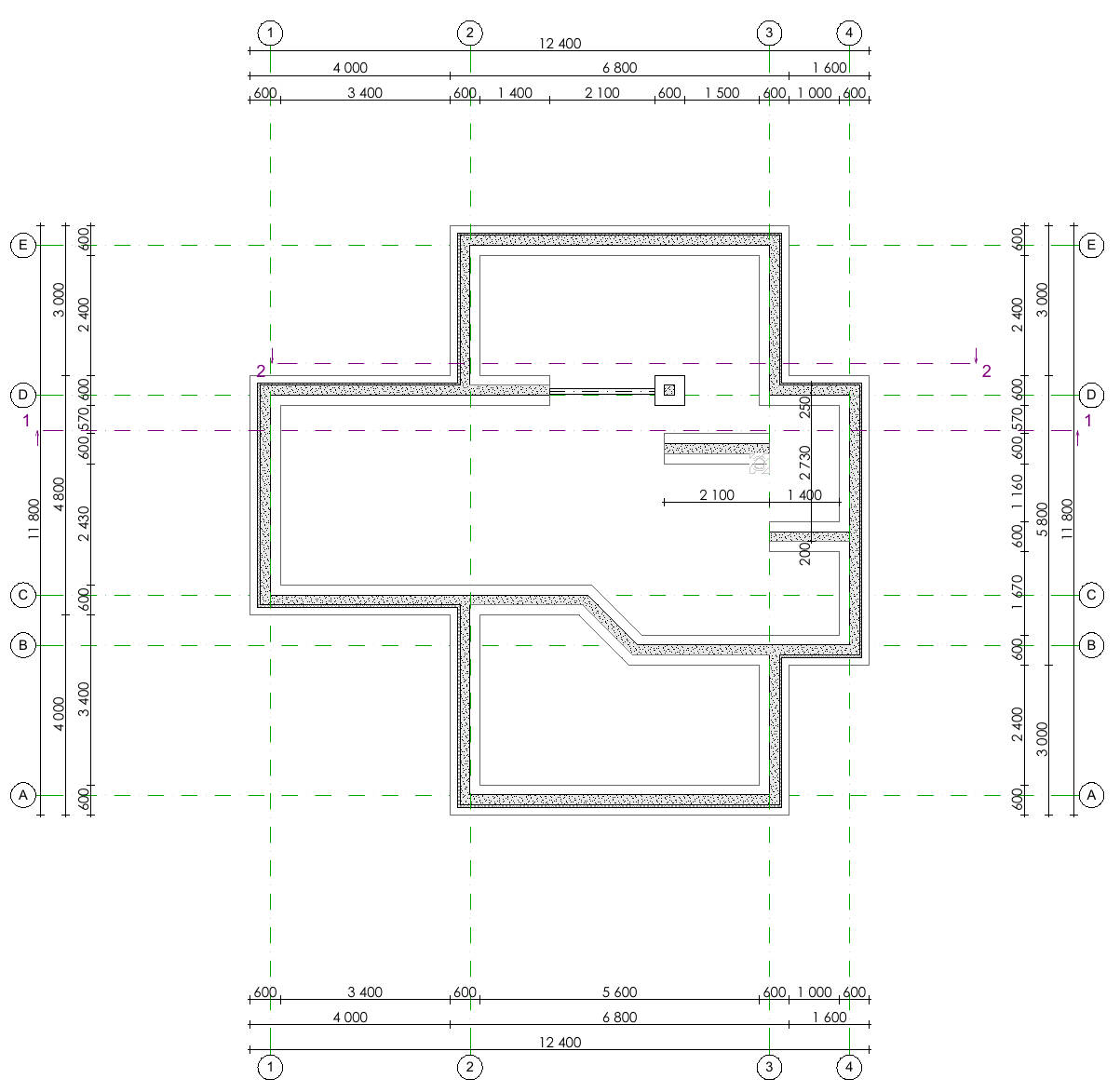
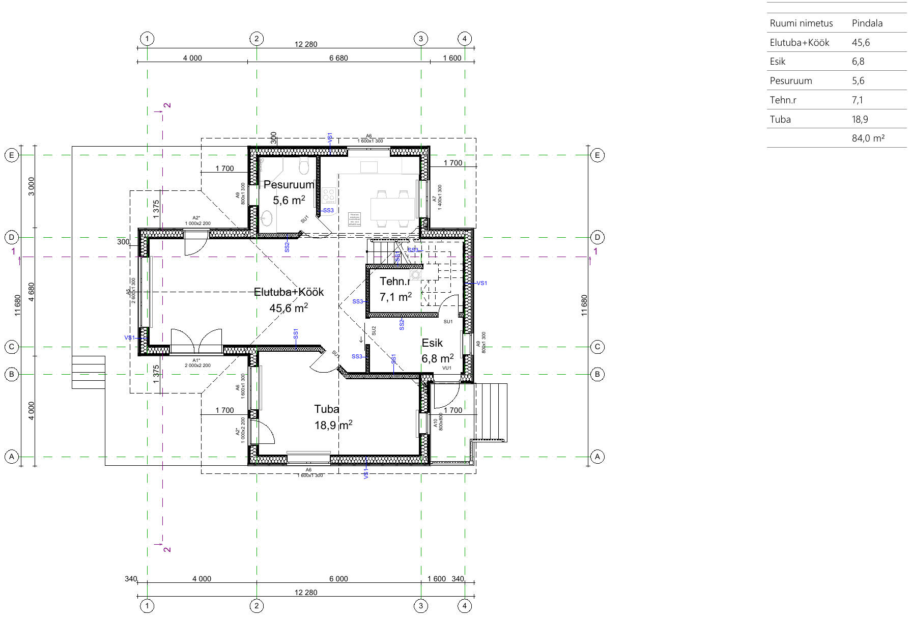
Soovin tellida eramajale kandekonstruktsioonide põhiprojekti. Eelprojekt on olemas ja ehitusluba väljastatud. Ehitusalune pind 134m2. Tegemist 1.5 korruselise puitkarkass eramuga, tuulduv põrand, laudis fassaad, plekk-katus.

Eelprojekti dokumentatsioon olemas pdf/dwg kujul. DWG sisaldab vist 3d mudelit (ei saa ise kontrollida).
Vundamendi kohalt: maja asukoht liigniiskes/soises kohas, kus veetase on märjal kevadel/sügisel peaaegu maapinnani. Maapind on 0.3muld,0.3 liiv, 0.6m savi (kuivem), 0.1m peene kruus/liiv (veega küllastastunud), 0.8m savi (elastsem/niiskem), paekivi. Eelprojektis on klassikaline lintvundament märkusega, et täpsustatakse põhiprojekti juures. Selle asemel sooviks rb postid paeni+sokklitala.

Tulem peab sisaldab vajalikud koormuste arvutused, plaanid, lõiked, sõlmed, dimensioonid, seletuskiri, pädeva ehitusinseneeri allkiri. Projekti/tööfailid, mis on vajalikud hiljem ehituse käigus tehtud muudatuste sissevimiseks ning kasutusloa taotlemiseks. Samuti vajadusel teiste eriosade projektide tellimiseks.


Pakkumusele juurde lisada pädevuse info.
Töö võimalik alustamise aeg
Töö tegemiseks minev aeg. Eeldusel, et tellija taga ei oodata ning muudatusi ei ole. (sobib täpsus: nädalate arv)
Kas küte, ventilatsioon, vesi ja kanalisatsioon projekte ka juurde teha võimalik?

Pildid, video ja failid

Hanke korraldaja: eraisik ID79563

Pakkumised

Pakkumisi kokku: 5

Ettevõte Summa Käibemaks Lisatud Vestlus
Kasutaja ikoon ID69164
Pakkuja profiil Väike nool paremale
3 000€ Ei ole KMKR Ei ole KMKR 05.02.2024 Vestlus (0)

Pakkumise kirjeldus:

Hoone ehitusprojekt põhiprojekti staadiumis.

Koostatav projekt vastab EVS 932:2017 ja MKM määruse nr. 97 „Nõuded ehitusprojektile1" nõuetele.

Märkused:
1. Hinnapakkumine ei sisalda Topo-geodeetiliste, ehitusgeoloogiliste, dendroloogiliste uuringute koostamist, ega nende maksumust,
2. Projektiga ja projekteerimisega seotud kõik kooskõlastust ... Rohkem

Kasutaja ikoon ID77668
Pakkuja profiil Väike nool paremale
3 200€ KM lisandub KM lisandub 08.02.2024 Vestlus (2)

Pakkumise kirjeldus:

Pädevuse infoks konstruktor tase 8. Pakkumist tehes nii vähese infoga on arvestatud kõige suurema tööde mahuga, kuna lähteandmed ebapiisavad. Võimalus toestada vundament prismaatiliste vaiadega või hoopis teras vaiadega, kas on radioonioht jne. Kui on täpne info ja asukoht, saab vastavalt sellele ka pakkumise maksumust vähendada juhul, kui tööde ... Rohkem

Kasutaja ikoon ID46491
Pakkuja profiil Väike nool paremale
2 000€ Ei ole KMKR Ei ole KMKR 14.02.2024 Vestlus (0)

Pakkumise kirjeldus:

Hinnas konstruktiivne põhiprojekt. pakkumus ei sisalda arhitektuurseid muudatusi ega uuringuid. Pädevuse eest vastutava konstruktori avalikustamine toob kaasa hange.ee keskkonna reeglite rikkumist, kuid saan kinnitada et projektiga hakkab tegelema diplomeeritud ehitusinsener, tase 7, väljastatud eelmise aasta novembris, kogemusega 17 aastat valdkonnas. Tà ... Rohkem

Kasutaja ikoon ID48870
Pakkuja profiil Väike nool paremale
2 250€ Ei ole KMKR Ei ole KMKR 18.02.2024 Vestlus (0)

Pakkumise kirjeldus:

Tere,
pakkumise hind sisaldab järgmist:
maja ehituskonstruktsioonide projekteerimine põhiprojekti staadiumis kooskõlas arhitektuurse projektiga (vt EVS 932:2017)
Projekti sisu:
1. konstruktsiooniarvutused
2. joonised
3. vundamendi plaan
4. aluspõrand - vajalikud lõiked, armatuuri mõõtmed, sammud,.
5. seinte/silluste-plaan, sõlmed, lõiked, se ... Rohkem

Kasutaja ikoon ID39199
Pakkuja profiil Väike nool paremale
2 600€ Ei ole KMKR Ei ole KMKR 18.02.2024 Vestlus (2)

Pakkumise kirjeldus:

Tere! Hinnapakkumine sisaldab ehituskonstruktsioonide põhiprojekti koostamist hoonele vastavalt standardis EVS 932:2017 toodule (hetkel kehtiv projekteerimisstandard). Tellija poolt vajalik arhitektuursete jooniste olemasolu .dwg formaadis.
Tellija poolt oleks hea, kui oleks olemas krundi geoloogilise uuringu aruanne. Praegust töökoormust arvestades olek ... Rohkem

Küsimused hanke korraldajale

Küsimus: private ID73584   14.02.2024 16:28
Tere, sain kutse hankes osalemiseks. Kahjuks on praegu tähtajad piisavalt pikad, et ei ole mõtet pakkuda. Parimat.

Teavita reeglite rikkumisest

Korraldaja vastus:
Hanke korraldaja ei ole küsimusele veel vastanud

Lisa küsimus

Lisa küsimus

Minu pakkumine

€

Reeglid

Pakkumise kirjelduse väli on mõeldud pakkumise detailsemaks lahti kirjutamiseks. Pikema teksti mugavaks sisestamiseks klikkige kasti paremal ülaservas oleval ikoonil.
Pakkumist tehes on keelatud postitada enda kontaktandmeid (nimi, telefon, aadress jne). Me jälgime ja analüüsime pakkumisi, et vältida pettuseid ja reeglite rikkumisi.
Rikkumise puhul kasutajakonto blokeeritakse.

 

Teisi töid samas valdkonnas

Valdkonnas "Ehitusprojektid" on 6 aktiivset tööd

no-img Pilt puudub

Ehitusinsener tase 7 vastutav allikiri

Asukoht: Pärnumaa, Pärnu
Aega jäänud: 4h 1 min
Tehtud pakkumisi: 2

Korteri elektri projekt

Asukoht: Harjumaa, Tallinn
Aega jäänud: 2p 4h
Tehtud pakkumisi: 2

Vanemad teated:

Vaata kõiki

Sellel veebilehel kasutatakse küpsiseid. Kasutamist jätkates nõustute küpsiste kasutamisega.

Sulge
 
Minu pakkumine
€

Reeglid

Pakkumise kirjelduse väli on mõeldud pakkumise detailsemaks lahti kirjutamiseks. Pikema teksti mugavaks sisestamiseks klikkige kasti paremal ülaservas oleval ikoonil.
Pakkumist tehes on keelatud postitada enda kontaktandmeid (nimi, telefon, aadress jne). Me jälgime ja analüüsime pakkumisi, et vältida pettuseid ja reeglite rikkumisi.
Rikkumise puhul kasutajakonto blokeeritakse.