+ Lisa oma töö      

Otsid ehitajat "Projekteerimine" valdkonnast?

Parima pakkumise ja teostaja leidmiseks lisa oma töö.

Projekteerimistöö (korter 68m2, Tallinn, kesklinn)

ID 89550

548 vaatamist

Prindi

  • check Pakkumiste tegemine
    kuni 11.02.2024
  • check Võitja valik kuni
    18.02.2024
  • 3 Töö teostamine
    ja hinnang
Hanke lõpp: P, 11. veebruar, 2024
Maakond: Harjumaa
Muu asula: Kesklinna
Tööde algus: E, 18. märts, 2024 (Soovituslik)
Tööde lõpp: P, 30. juuni, 2024 (Soovituslik)
Ehitusmaterjalid: Töö tegija poolt
Soovin pakkumisi: Summa kogu projektile

Töö sisu

Objekt: Korter, Tallinn, 68m2, 4. korrus, majas suur lift (ca 1.2 x 1.8m).

Töö sisu: renoveerimistööde seadustamine / korteri uue plaani ja muude spetsifikatsioonide asjakohastesse registritesse kandmine

Tööde loetelu:
Ehitusprojekt
Ehitusteatise ja ehitusprojekti menetlus

Tööde algus: 18.03.2024

Muud tingimused: Kirjalik leping. Ettemaks lõivude katteks. Tasumine peale tööde vastuvõtmist. Tasumine sularahas või ülekandega vastavalt kokkuleppele.

Muu info: Renoveerimisprojekti hulka kuuluvad tööd leiab hange.ee keskkonnast tööde lisamise kuupäeva järgi - kõik projekti tööd on lisatud samal kuupäeval.

Lisad: Hankele on lisatud:
1. pildid objektist sellisena nagu see praegu on (enne lammutustöid);
2. korteri plaan enne renoveerimist ja pärast renoveerimist;
3. tööde mahu kalkulatsioonid.

Pildid, video ja failid

Hanke korraldaja: eraisik ID59501

Pakkumised

Pakkumisi kokku: 5

Ettevõte Summa Käibemaks Lisatud Vestlus
Kasutaja ikoon ID78702
Pakkuja profiil Väike nool paremale
610€ Ikoon kell Ei ole KMKR Ei ole KMKR 31.01.2024 Vestlus (0)

Pakkumise kirjeldus:

Projekti koostamine ja menetlus EHRis.

(Pakkumine ei sisalda tehnosüsteemide projekte, nt kommunikatsioonide ümbertõstmisi jne)

Riigilõivud maksab Tellija.

Kui projekteerimistöö käigus selgub, et tegemist on kandvate seintega, lisandub konstruktsioonide ehituslikuuuringu hind.

Kasutaja ikoon ID54792
Pakkuja profiil Väike nool paremale
1 000€ Sisaldab KM Sisaldab KM 04.02.2024 Vestlus (2)

Pakkumise kirjeldus:

Pakkumine sisaldab arhitektuurse projekti ning seletuskirja. Tallinna KOV kooskõlastamist.
Ainult kui teil oli ühetoaline korter, seda ei saa teha 3 toaliseks. Igas toas peab olema aken ja ruum peab oma mõõtudes vastama ruumi parameetritele eht laiusxkõrgusxpikkus. Sellega peab arvestama.
Pakkumine on tehtud arvestades, et kandvad konstruktsioonid ... Rohkem

Kasutaja ikoon ID26988
Pakkuja profiil Väike nool paremale
450€ Ei ole KMKR Ei ole KMKR 08.02.2024 Vestlus (0)

Pakkumise kirjeldus:

Pakkumine sisaldab projekti ehitusteatise esitamiseks vajalikus mahus, vastavalt normidele ja standartidele ning Teie kirjeldusele. Kõik kooskõlastused ja asjaajamised kuni ehitusteatise registreerimiseni. Vajadusel konsultatsioonid ja mõõdistamine. Projekt digitaalselt Teile sobivates formaatides

Kasutaja ikoon ID37565
Pakkuja profiil Väike nool paremale
550€ Ei ole KMKR Ei ole KMKR 11.02.2024 Vestlus (0)

Pakkumise kirjeldus:

Tere

Pakkumine sisaldab arhitektuurset eelprojekti:
- tekstiline osa: seletuskiri
- graafiline osa: situatsiooniskeem, korteri plaan

Pakkumine sisaldab ehitusteatise esitamist Ehitisregistrisse, kooskõlastamist vallavalitsusega.

Teie tagasidet ootama jäädes.

Kasutaja ikoon ID46826
Pakkuja profiil Väike nool paremale
780€ Ei ole KMKR Ei ole KMKR 11.02.2024 Vestlus (0)

Pakkumise kirjeldus:

Eelprojekti vormistamine joonised ( korruste plaan jms ) koos seletuskirjaga
*Kooskõlastamised, asjaajamine
*Ehitusteatise vormistamine
*Võimalik kohapeal kokkusaamine

Täpsustavad küsimused oodatud

Küsimused hanke korraldajale

Küsimus: private ID71248   29.01.2024 11:37
tere,
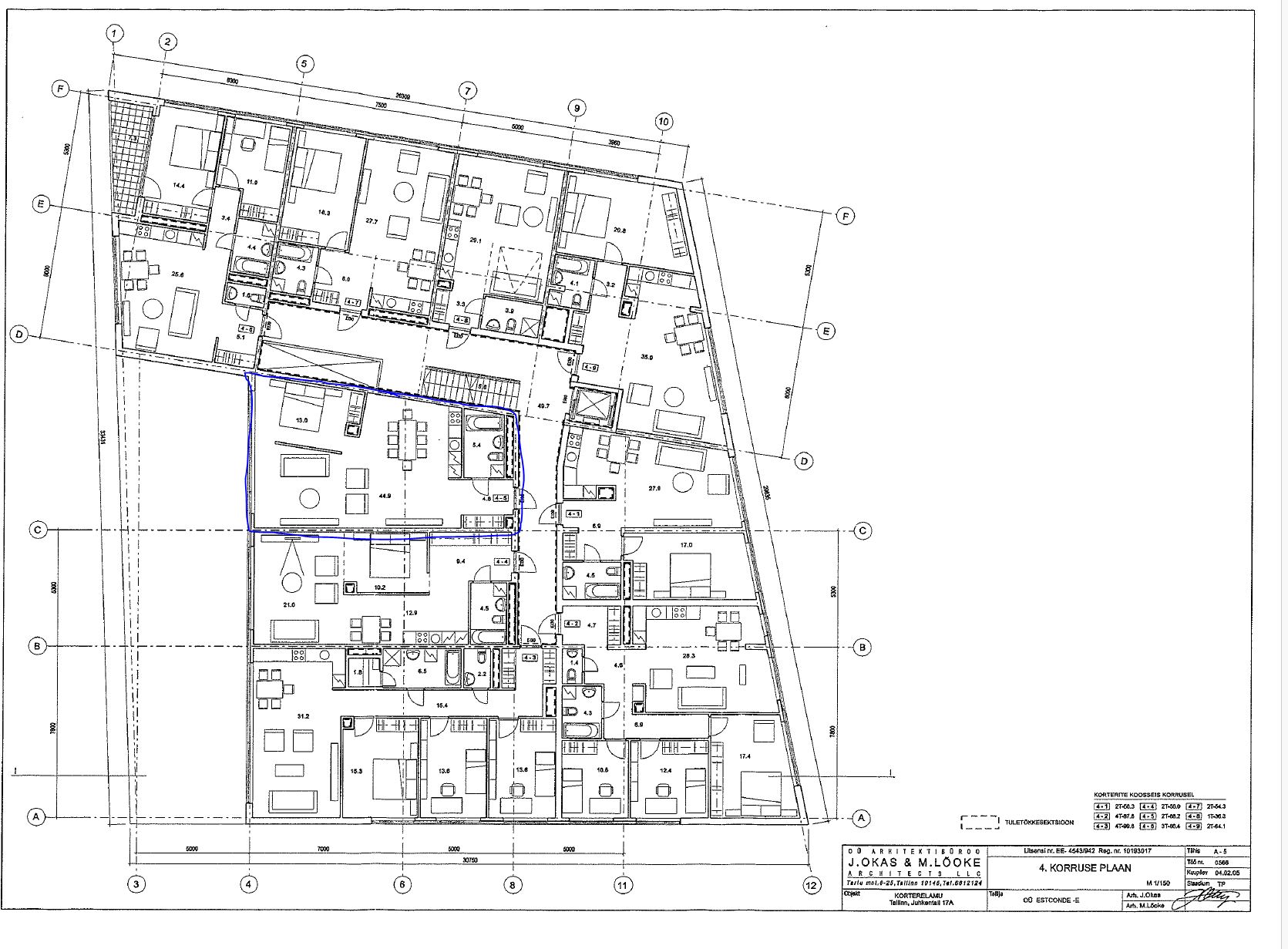
kas teil on olemas ja võimalik lisada hoone põhiplaan, millel on näha kandeseinte asukohad.

Teavita reeglite rikkumisest

Korraldaja vastus: 29.01.2024 15:13

Tere,

Lisasin hanke failidesse hoone korruseplaanid korrustest 0-5. Kõnealune korter on korrusel 4.

NB, et algne planeering ei vasta praegusele planeeringule ja ka praegust planeeringut ei ole asjakohastesse registritesse kantud.

Tervitades,
Sven

Teavita reeglite rikkumisest

Lisa küsimus

Lisa küsimus

Minu pakkumine

Reeglid

Pakkumise kirjelduse väli on mõeldud pakkumise detailsemaks lahti kirjutamiseks. Pikema teksti mugavaks sisestamiseks klikkige kasti paremal ülaservas oleval ikoonil.
Pakkumist tehes on keelatud postitada enda kontaktandmeid (nimi, telefon, aadress jne). Me jälgime ja analüüsime pakkumisi, et vältida pettuseid ja reeglite rikkumisi.
Rikkumise puhul kasutajakonto blokeeritakse.

 

Teisi töid samas valdkonnas

Valdkonnas "Projekteerimine" on 7 aktiivset tööd

no-img Pilt puudub

1-kordse 120 m2 elumaja põhiprojekt

Asukoht: Harjumaa, Metsanurme
Aega jäänud: 8p 8h
Tehtud pakkumisi: 4

no-img Pilt puudub

Saunamaja eelprojekt ehitusteatiseks

Asukoht: Lääne-Virumaa
Aega jäänud: 1p 8h
Tehtud pakkumisi: 3

Vanemad teated:

Vaata kõiki

Sellel veebilehel kasutatakse küpsiseid. Kasutamist jätkates nõustute küpsiste kasutamisega.

Sulge
 
Minu pakkumine

Reeglid

Pakkumise kirjelduse väli on mõeldud pakkumise detailsemaks lahti kirjutamiseks. Pikema teksti mugavaks sisestamiseks klikkige kasti paremal ülaservas oleval ikoonil.
Pakkumist tehes on keelatud postitada enda kontaktandmeid (nimi, telefon, aadress jne). Me jälgime ja analüüsime pakkumisi, et vältida pettuseid ja reeglite rikkumisi.
Rikkumise puhul kasutajakonto blokeeritakse.