+ Lisa oma töö      

Otsid ehitajat "Ehitusprojektid" valdkonnast?

Parima pakkumise ja teostaja leidmiseks lisa oma töö.

Projektid

ID 89492

578 vaatamist

Prindi

  • check Pakkumiste tegemine
    kuni 29.01.2024
  • check Võitja valik kuni
    05.02.2024
  • 3 Töö teostamine
    ja hinnang
Hanke lõpp: E, 29. jaanuar, 2024
Maakond: Harjumaa
Linn: Maardu
Tööde algus: R, 26. jaanuar, 2024 (Soovituslik)
Tööde lõpp: L, 10. veebruar, 2024 (Soovituslik)
Ehitusmaterjalid: Töö tegija poolt
Soovin pakkumisi: Tüki- või ühikuhinda

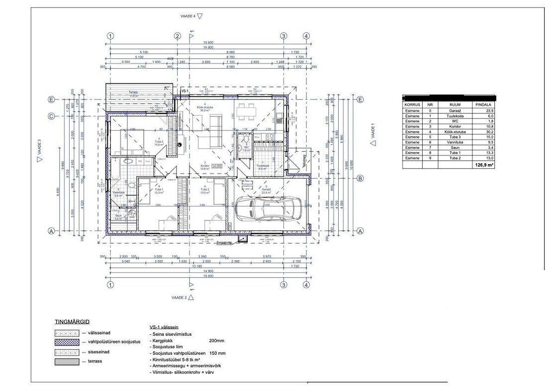
Töö sisu

Sooviks saada hindu eriosade projektidele.
Pilt manuses maja plaanist.
Huvitavad järgmised süsteemid:
1.Kütte.
2.Ventilatsioon.
3.Elekter
4.Vesi,kanalisatsioon .(Maja sisene)

Pildid, video ja failid

Hanke korraldaja: eraisik ID79319

Pakkumised

Pakkumisi kokku: 6

Ettevõte Summa Käibemaks Lisatud Vestlus
Kasutaja ikoon ID66770
Pakkuja profiil Väike nool paremale
1 500€ Sisaldab KM Sisaldab KM 27.01.2024 Vestlus (0)

Pakkumise kirjeldus:

Tere,

Antud hinnapakkumine sisaldab kütte-, ventilatsiooni-, veevarustuse- ja kanalisatsiooni hoonesiseste süsteemide põhiprojekti eramajale, maht vastavalt standardile EVS 932 "Ehitusprojekt”.

Kütte projektis sisalduvad soojuskadude arvutus, põrandakütte torude projekteerimine, magistraaltorude jooniseid, soojuspumba/kütteallika valimine, põ ... Rohkem

Kasutaja ikoon ID72427
Pakkuja profiil Väike nool paremale
800€ Ei ole KMKR Ei ole KMKR 27.01.2024 Vestlus (0)

Pakkumise kirjeldus:

Tere!

Pakun tugevvoolu projekti põhiprojekti staadiumis.

Tugevvoolu süsteemide koosseisu kuuluvad:
• elektrivarustus;
• maandus ja potentsiaalühtlustus;
• kaabliteed;
• elektriseadmete ja pistikupesade võrk;
• valgustus ja lülitid;
• kilbid.

Pakkumine ei sisalda:
• nõrkvoolu projekti (side, valve, ATS jms) sh ka nõrkvool ... Rohkem

Kasutaja ikoon ID75550
Pakkuja profiil Väike nool paremale
540€ Ei ole KMKR Ei ole KMKR 27.01.2024 Vestlus (0)

Pakkumise kirjeldus:

ELEKTRIPROJEKT
Tere,
NB. Hinnale ei lisandu käibemaksu.

Pakkumine sisaldab:
1) Põhiprojekti (valgus-, maandus-, nõrkvoolu-, jõupaigaldise plaani, kilbiskeemi jms kaasnevaid lisasid nagu seletuskiri, spetsifikatsioon, dok.loetelu). EV nõuetega kooskõlas ja auditeerimiseks sobilik. (Ehitustegevust saab teostada lähtuvalt käesolevatest joonistest) ... Rohkem

Kasutaja ikoon ID79118
Pakkuja profiil Väike nool paremale
1 900€ KM lisandub KM lisandub 27.01.2024 Vestlus (0)

Pakkumise kirjeldus:

Sisaldab kütte ( kas radiaator- või põrandaküte), kui mõlemad, siis lisandub pakkumisele veel 400 €, ventilatsiooni, vee ja kanalisatsiooni ( ainult esimese kaevuni) .Krundisisesed trassid eri pakkumise alusel.

Kasutaja ikoon ID48870
Pakkuja profiil Väike nool paremale
1 250€ Ei ole KMKR Ei ole KMKR 28.01.2024 Vestlus (0)

Pakkumise kirjeldus:

1.Kütte.
2.Ventilatsioon.
3.Elekter ei
4.Vesi,kanalisatsioon .

Kasutaja ikoon ID63115
Pakkuja profiil Väike nool paremale
1 100€ KM lisandub KM lisandub 28.01.2024 Vestlus (0)

Pakkumise kirjeldus:

Tere

Hinnapakkumine sisaldab kütte-, ventilatsiooni-, veevarustuse- ja kanalisatsioonisüsteemide põhiprojekti.
Ettemaksu ei soovi. Vastutava isiku allkiri on hinna sees.
Kütte pakkumine sisaldab soojuskadude arvutamist dünaamilises tarkvaras, põrandküttetorude projekteerimist, magistraalide jooniseid, soojussõlme projekteerimist, põhiseadmete ... Rohkem

Küsimused hanke korraldajale

Hanke korraldajale ei ole veel küsimusi esitatud.

Lisa küsimus

Lisa küsimus

Minu pakkumine

Reeglid

Pakkumise kirjelduse väli on mõeldud pakkumise detailsemaks lahti kirjutamiseks. Pikema teksti mugavaks sisestamiseks klikkige kasti paremal ülaservas oleval ikoonil.
Pakkumist tehes on keelatud postitada enda kontaktandmeid (nimi, telefon, aadress jne). Me jälgime ja analüüsime pakkumisi, et vältida pettuseid ja reeglite rikkumisi.
Rikkumise puhul kasutajakonto blokeeritakse.

 

Teisi töid samas valdkonnas

Valdkonnas "Ehitusprojektid" on 5 aktiivset tööd

no-img Pilt puudub

Kortermaja kõigi ruumide mõõdistamine ja DWG faili koostamine

Asukoht: Harjumaa, Tallinn
Aega jäänud: 1p 18h
Tehtud pakkumisi: 2

Korterelamu mõõdistusprojekti koostamine ja jooniste digitaliseerimine

Asukoht: Lääne-Virumaa, Tapa
Aega jäänud: 4p 18h
Tehtud pakkumisi: 2

Vanemad teated:

Vaata kõiki

Sellel veebilehel kasutatakse küpsiseid. Kasutamist jätkates nõustute küpsiste kasutamisega.

Sulge
 
Minu pakkumine

Reeglid

Pakkumise kirjelduse väli on mõeldud pakkumise detailsemaks lahti kirjutamiseks. Pikema teksti mugavaks sisestamiseks klikkige kasti paremal ülaservas oleval ikoonil.
Pakkumist tehes on keelatud postitada enda kontaktandmeid (nimi, telefon, aadress jne). Me jälgime ja analüüsime pakkumisi, et vältida pettuseid ja reeglite rikkumisi.
Rikkumise puhul kasutajakonto blokeeritakse.