+ Lisa oma töö      

Otsid ehitajat "Elektritööd" valdkonnast?

Parima pakkumise ja teostaja leidmiseks lisa oma töö.

Elektripaigaldise mõõdistuse teostamine

ID 88661

586 vaatamist

Prindi

  • check Pakkumiste tegemine
    kuni 14.12.2023
  • check Võitja valik kuni
    21.12.2023
  • 3 Töö teostamine
    ja hinnang
Hanke lõpp: N, 14. detsember, 2023
Maakond: Harjumaa
Muu asula: Laulasmaa
Tööde algus: T, 12. detsember, 2023 (Soovituslik)
Tööde lõpp: T, 19. detsember, 2023 (Soovituslik)
Ehitusmaterjalid: Töö tellija poolt
Soovin pakkumisi: Summa kogu projektile

Töö sisu

Lugupeetud pakkujad,

Soovin hinnapakkumusi elektripaigaldise mõõdistuse teostamiseks sealhulgas:

1) PEN- või null-, kaitse- ja potentsiaaliühtlustusjuhtide katkematuse kontroll või takistuse
mõõtmine;
2) isolatsioonitakistuse mõõtmine;
3) maanduspaigaldise takistuse mõõtmine;
4) puutepinge määramine;
5) kaitseseadmete rakendumise kontroll;
6) rikkevoolukaitseseadmete kontroll;.

Töö mahtu kuulub mõõdistustulemuste dokumenteerimine ja esitamine Tellijale.

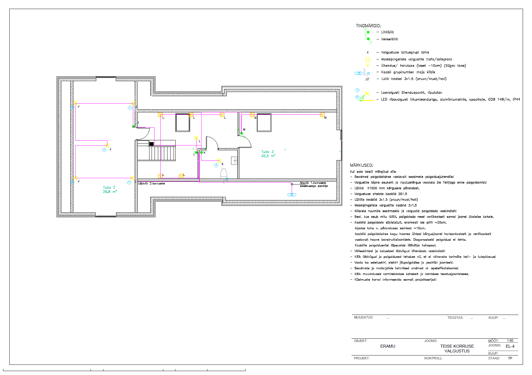
Elektripaigaldise joonised on manuses.

Pildid, video ja failid

Hanke korraldaja: eraisik ID62313

Pakkumised

Pakkumisi kokku: 1

Ettevõte Summa Käibemaks Lisatud Vestlus
Kasutaja ikoon ID78673
Pakkuja profiil Väike nool paremale
580€ KM lisandub KM lisandub 11.12.2023 Vestlus (0)

Pakkumise kirjeldus:

Pakkumine sisaldab elektripaigaldise kontrollmõõtmiste teostamist. Pakkumine ei sisalda auditi teostamist hoonele.

Küsimused hanke korraldajale

Hanke korraldajale ei ole veel küsimusi esitatud.

Lisa küsimus

Lisa küsimus

Minu pakkumine

Reeglid

Pakkumise kirjelduse väli on mõeldud pakkumise detailsemaks lahti kirjutamiseks. Pikema teksti mugavaks sisestamiseks klikkige kasti paremal ülaservas oleval ikoonil.
Pakkumist tehes on keelatud postitada enda kontaktandmeid (nimi, telefon, aadress jne). Me jälgime ja analüüsime pakkumisi, et vältida pettuseid ja reeglite rikkumisi.
Rikkumise puhul kasutajakonto blokeeritakse.

 

Teisi töid samas valdkonnas

Valdkonnas "Elektritööd" on 5 aktiivset tööd

Vana talu elektrisüsteemi uuendamine (kilp, pistikud, välivalgustus, EV valmidus)

Asukoht: Raplamaa, Suurekivi
Aega jäänud: 1p 13h
Tehtud pakkumisi: 5

Kaablite vahetus paneelmaja korteris ja siseviimistlus

Asukoht: Harjumaa, Tallinn
Aega jäänud: 6p 13h
Tehtud pakkumisi: 3

Vanemad teated:

Vaata kõiki

Sellel veebilehel kasutatakse küpsiseid. Kasutamist jätkates nõustute küpsiste kasutamisega.

Sulge
 
Minu pakkumine

Reeglid

Pakkumise kirjelduse väli on mõeldud pakkumise detailsemaks lahti kirjutamiseks. Pikema teksti mugavaks sisestamiseks klikkige kasti paremal ülaservas oleval ikoonil.
Pakkumist tehes on keelatud postitada enda kontaktandmeid (nimi, telefon, aadress jne). Me jälgime ja analüüsime pakkumisi, et vältida pettuseid ja reeglite rikkumisi.
Rikkumise puhul kasutajakonto blokeeritakse.