+ Lisa oma töö      

Otsid ehitajat "Projekteerimine" valdkonnast?

Parima pakkumise ja teostaja leidmiseks lisa oma töö.

Maja Projekteerimine

ID 88504

781 vaatamist

Prindi

  • check Pakkumiste tegemine
    kuni 09.12.2023
  • check Võitja valik kuni
    16.12.2023
  • 3 Töö teostamine
    ja hinnang
Hanke lõpp: L, 9. detsember, 2023
Maakond: Harjumaa
Linn: Maardu
Tööde algus: E, 08. jaanuar, 2024 (Soovituslik)
Tööde lõpp: E, 12. veebruar, 2024 (Soovituslik)
Ehitusmaterjalid: Töö tellija poolt
Soovin pakkumisi: Summa kogu projektile

Töö sisu

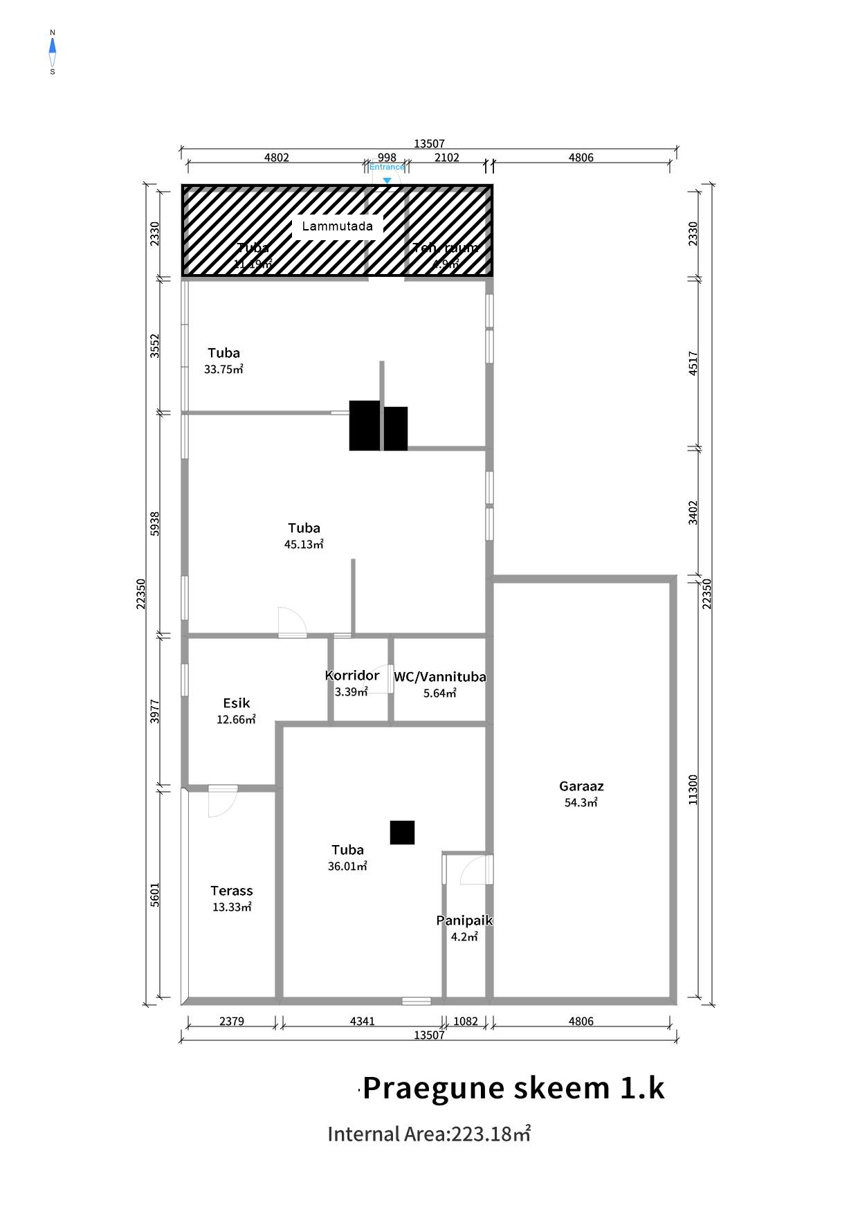
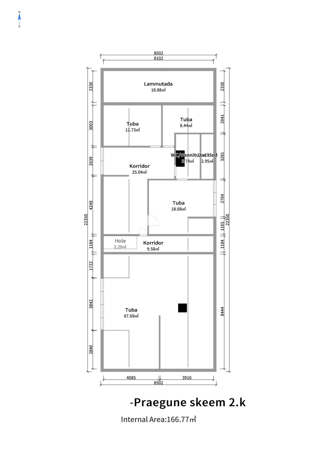
Vana maja laiendati ilma ehitusprojekti või ehitusloata. Maja legaliseerimiseks on vaja järgmist:

1. Majaosa lammutamine. (vaata lisatud skeemi)

2. Eskiisprojekt olemasoleva maja põhjal ja Projekteerimistingimuste taotlemine Maardu linnavalituses.

3. Elektriprojekt ja kõigi sellega seotud elektritööde kalkulatsioon.

4. Kütte- ja ventilatsiooniprojekt ning kõigi sellega seotud tööde kalkulatsioon.

5. Vee- ja kanalisatsiooni projekt ja sellega seotud vajalikku tööde kalkulatsioon.

6. Kõikide lõpetamata ehitustööde kalkulatsioon. (põrandad, seinad, laed, katus jne)

7. Kasutusloa taotlemine ja kõik sellega seonduv, nt. erinevad auditid jne.

 
Maja praegune skeem, uus skeem ja pilte on lisatud. Enne pakkumise tegemist saab ka tulla kohapeal vaatama eelnevalt kokkuleppel.

Parim oleks, kui sama firma saaks kõike pakkuda, kuid oodatud on ka iga osa kohta eraldi pakkumised.

 Pakkumised peavad sisaldama iga osa üksikasju ja ligikaudset kuluvat aega.

Pildid, video ja failid

Hanke korraldaja: eraisik ID77674

Pakkumised

Pakkumisi kokku: 3

Ettevõte Summa Käibemaks Lisatud Vestlus
Kasutaja ikoon ID42152
Pakkuja profiil Väike nool paremale
1 585€ Ei ole KMKR Ei ole KMKR 04.12.2023 Vestlus (2)

Pakkumise kirjeldus:

Ehitusprojekt eelprojekti staadiumis (arh-eh osa koos eriosadega)
Pakkumishind sisaldab:
Seletuskiri
Energiaarvutused
Asendiplaan (vajalik geoalus, mille hind eraldi tööna on 750EUR)
Vund ja korruste plaanid
Katuse plaan
Hoone lõige
Hoone vaated
Avatäidete joonised
Jm asjakohased vajalikud joonised

Projekteerimistingimuste taotlemine
Kooskà ... Rohkem

Kasutaja ikoon ID26988
Pakkuja profiil Väike nool paremale
1 600€ Ei ole KMKR Ei ole KMKR 07.12.2023 Vestlus (2)

Pakkumise kirjeldus:

Pakkumine sisaldab arhitektuur-konstruktiivse projekti ehitusloa taotlemiseks / ehitusteatise esitamiseks vajalikus mahus, vastavalt normidele ja standartidele ning Teie kirjeldusele. Kõik kooskõlastused ja asjaajamised kuni ehitusloani / ehitusteatise registreerimiseni. Vajadusel konsultatsioonid ja mõõdistamine. Projekt digitaalselt Teile sobivates fo ... Rohkem

Kasutaja ikoon ID46636
Pakkuja profiil Väike nool paremale
3 450€ Ei ole KMKR Ei ole KMKR 09.12.2023 Vestlus (0)

Pakkumise kirjeldus:

Tere
Meie pakkumine sisaldab:


2. Eskiisprojekt olemasoleva maja põhjal ,majaosa lammutamine ja projekteerimistingimuste taotlemine Maardu linnavalituses:1300 еur

3. Elektriprojekt ja kõigi sellega seotud elektritööde kalkulatsioon:350 eur

4. Kütte- ja ventilatsiooniprojekt ning kõigi sellega seotud tööde kalkulatsioon.:400 eur

5. Vee ... Rohkem

Küsimused hanke korraldajale

Hanke korraldajale ei ole veel küsimusi esitatud.

Lisa küsimus

Lisa küsimus

Minu pakkumine

€

Reeglid

Pakkumise kirjelduse väli on mõeldud pakkumise detailsemaks lahti kirjutamiseks. Pikema teksti mugavaks sisestamiseks klikkige kasti paremal ülaservas oleval ikoonil.
Pakkumist tehes on keelatud postitada enda kontaktandmeid (nimi, telefon, aadress jne). Me jälgime ja analüüsime pakkumisi, et vältida pettuseid ja reeglite rikkumisi.
Rikkumise puhul kasutajakonto blokeeritakse.

 

Teisi töid samas valdkonnas

Valdkonnas "Projekteerimine" on 6 aktiivset tööd

no-img Pilt puudub

1-kordse 120 m2 elumaja põhiprojekt

Asukoht: Harjumaa, Metsanurme
Aega jäänud: 8p 17h
Tehtud pakkumisi: 4

no-img Pilt puudub

Saunamaja eelprojekt ehitusteatiseks

Asukoht: Lääne-Virumaa
Aega jäänud: 1p 17h
Tehtud pakkumisi: 3

Vanemad teated:

Vaata kõiki

Sellel veebilehel kasutatakse küpsiseid. Kasutamist jätkates nõustute küpsiste kasutamisega.

Sulge
 
Minu pakkumine
€

Reeglid

Pakkumise kirjelduse väli on mõeldud pakkumise detailsemaks lahti kirjutamiseks. Pikema teksti mugavaks sisestamiseks klikkige kasti paremal ülaservas oleval ikoonil.
Pakkumist tehes on keelatud postitada enda kontaktandmeid (nimi, telefon, aadress jne). Me jälgime ja analüüsime pakkumisi, et vältida pettuseid ja reeglite rikkumisi.
Rikkumise puhul kasutajakonto blokeeritakse.