+ Lisa oma töö      

Otsid ehitajat "Projekteerimine" valdkonnast?

Parima pakkumise ja teostaja leidmiseks lisa oma töö.

Hange on lõppenud!

Võitjaks osutus kasutaja ID 58268

Saunamaja projekt

ID 88102

1091 vaatamist

Prindi

  • check Pakkumiste tegemine
    kuni 27.11.2023
  • check Võitja valik kuni
    27.11.2023
  • 3 Töö teostamine
    ja hinnang
Hanke lõpp: E, 27. november, 2023
Maakond: Harjumaa
Tööde algus: E, 27. november, 2023 (Soovituslik)
Tööde lõpp: R, 05. jaanuar, 2024
Ehitusmaterjalid: Töö tegija poolt
Soovin pakkumisi: Summa kogu projektile

Töö sisu

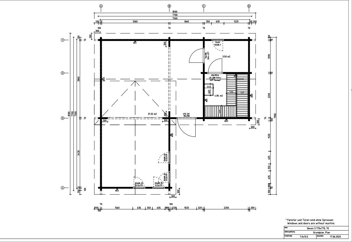
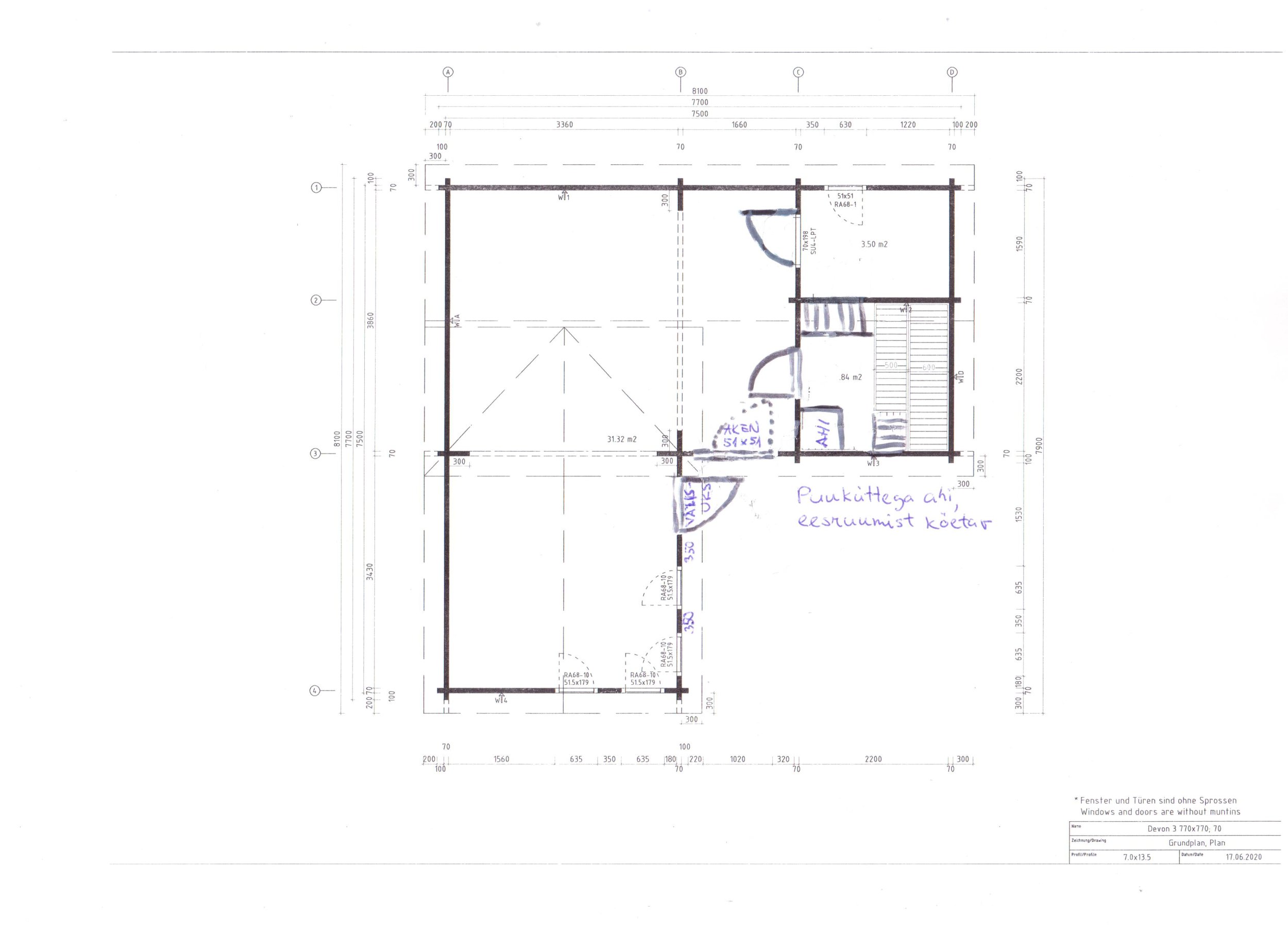
Saunamaja(40m2) projekt ehitusteatise esitamiseks. Kõik kooskõlastused ja asjaajamised kuni ehitusteatise registreerimiseni. Objekt asub Harku vallas.
Tegemist on tüüpprojektiga, millele vaja teha mõned muudatused, mis on joonistatud viimasele pildile.
Geoalus on olemas.

Pildid, video ja failid

Hanke korraldaja: eraisik ID78179

Pakkumised

Pakkumisi kokku: 11

Ettevõte Summa Käibemaks Lisatud Vestlus
Kasutaja ikoon ID76566
Pakkuja profiil Väike nool paremale
1 600€ Ei ole KMKR Ei ole KMKR 13.11.2023 Vestlus (0)

Pakkumise kirjeldus:

Tere!

Hinnas pakume arhitektuurse eelprojekti koostamist ja ehitusloa taotlust kuni positiivse kinnituseni.

- Muudatused ja eelprojekti taotluse joonised: vundament, korruste plaanid, katuseplaan, maja sektsioon, vaated, krundi planeering geoalusel, akende/uste spetsifikatsioon
- Seletuskiri
- Ehitusloa taotlus ning kohaliku omavalitsusega suhtlu ... Rohkem

Kasutaja ikoon ID42152
Pakkuja profiil Väike nool paremale
800€ Ei ole KMKR Ei ole KMKR 14.11.2023 Vestlus (0)

Pakkumise kirjeldus:

Ehitusprojekt eelprojekti staadiumis (arh-eh osa koos eriosadega)
Pakkumishind sisaldab:
Seletuskiri
Asendiplaan
Vund ja korruse plaan
KAtuse plaan
Hoone lõige
Hoone vaated
Avatäidete joonised

Kooskõlastused ehitusteatise registreerimiseks
Ehitusteatise esitamine KOV
Ehitusteatise registreerimine KOV

Riigilõivuvaba

Kasutaja ikoon ID76795
Pakkuja profiil Väike nool paremale
650€ Ei ole KMKR Ei ole KMKR 14.11.2023 Vestlus (0)

Pakkumise kirjeldus:

Tere

Töö sisaldab arhitektuurset eelprojekti sauna uusehitisele
Projekt valmib vastavalt Eesti Vabariigis kehtivatele seadustele ja standarditele.
Pakkumine sisaldab:
Seletuskiri
Asendiplaan geoalusel
Sauna põhiplaan
Sauna lõige
Sauna vaated
3D vaated
Vajadusel vundamendi joonis
Hoone andmete sisestamine EHR-i.
Ehitusteatise esitamine EHR-i ... Rohkem

Kasutaja ikoon ID58268
Pakkuja profiil Väike nool paremale
700€ Ei ole KMKR Ei ole KMKR 14.11.2023 Vestlus (0)

Pakkumise kirjeldus:

Arhitektuurne eelprojekt sisaldab:
• Jooniseid: vundamendi plaani, korruste plaane, katuseplaan, lõige, vaateid, avatäidete spetsifikatsiooni ja asendiplaani koostamist.
• 3D mudel (pildid, IFC)
• Seletuskirja
• Projekti sisestamine ehitusregistrisse, kooskõlastamised, asjaajamine.
Pakkumine ei sisalda:
• Projektiga ja projekteerimisega se ... Rohkem

Kasutaja ikoon ID78215
Pakkuja profiil Väike nool paremale
890€ Ei ole KMKR Ei ole KMKR 16.11.2023 Vestlus (0)

Pakkumise kirjeldus:

Tere

Pakkumine sisaldab saunamaja eelprojekti koostamist ehitusteatise esitamiseks.
Ehitusteatise registreerimist koos vajalike kooskõlastustega.

Ajakulu:
Projekti koostamine maksimaalselt 14 päeva.
Ehitusteatise taotlemine väljaandmiseni kuni 1-3 kuud, sõltuvalt omavalitsuse ametnikest.

Kasutaja ikoon ID48870
Pakkuja profiil Väike nool paremale
750€ Ei ole KMKR Ei ole KMKR 17.11.2023 Vestlus (0)

Pakkumise kirjeldus:

Ehitusprojekt eelprojekti staadiumis ehitisregistrile esitamiseks
Pakkumishind sisaldab:
Seletuskiri,Korruste plaanid, Katuse plaan,Hoone lõige, Hoone vaated, Avatäidete joonised, jm asjakohased vajalikud joonised, Asendiplaan
Kooskõlastused ehitusloa saamiseks
Ehitusloa taotluse esitamine ehistisregistrisse
Kui arve tuleb eraisikule siis saab ka ilm ... Rohkem

Kasutaja ikoon ID40011
Pakkuja profiil Väike nool paremale
1 700€ Sisaldab KM Sisaldab KM 17.11.2023 Vestlus (0)

Pakkumise kirjeldus:

Pakkumine saunamaja arh.eelprojektile ja menetlusele KOVis.

Kasutaja ikoon ID73584
Pakkuja profiil Väike nool paremale
900€ Ei ole KMKR Ei ole KMKR 18.11.2023 Vestlus (0)

Pakkumise kirjeldus:

Tervist,

Pakkumine vastavalt hanke kirjeldusele ja materjalidele, sisaldab:

- Eskiiside koostamine ja täiendamine väikeses mahus, konsultatsioonid;
- arhitektuurse eelprojekti koostamine vastavalt kehtivatele õigusaktidele, standarditele ja heale tavale;
- ehitusteatise esitamine, kaasnevad kooskõlastused ja täiendused kuni eeldatava registreeri ... Rohkem

Kasutaja ikoon ID48142
Pakkuja profiil Väike nool paremale
1 200€ KM lisandub KM lisandub 20.11.2023 Vestlus (0)

Pakkumise kirjeldus:

Pakkumine sisaldab:
Saunamaja arhitektuurset eelprojekti ehitusteatise taotluse mahus vastavalt määrusele "Nõuded ehitusprojektile" ja standardile EVS 932:2017 Ehitusprojekt ja vajadusel ametkondade märkuste korrigeerimist projekti heakskiidu saamiseni. Pakkumine sisaldab toiminguid EHRis.

Pakkumine ei sisalda:
Tehnovõrkude, -süsteemide, ehituskon ... Rohkem

Kasutaja ikoon ID26988
Pakkuja profiil Väike nool paremale
800€ Ei ole KMKR Ei ole KMKR 23.11.2023 Vestlus (0)

Pakkumise kirjeldus:

Pakkumine sisaldab projekti ehitusteatise esitamiseks vajalikus mahus, vastavalt normidele ja standartidele ning Teie kirjeldusele. Kõik kooskõlastused ja asjaajamised kuni ehitusteatise registreerimiseni. Vajadusel konsultatsioonid ja mõõdistamine. Projekt digitaalselt Teile sobivates formaatides, 3D-visualiseering.

Kasutaja ikoon ID5128
Pakkuja profiil Väike nool paremale
1 180€ KM lisandub KM lisandub 27.11.2023 Vestlus (0)

Pakkumise kirjeldus:

Eelprojekt ja ehitusteatise esitamine, vajadusel korrektuurid kuni ehitusteatise heakskiiduni.

Küsimused hanke korraldajale

Küsimus: private ID78215   15.11.2023 13:22
Tere. Kas antud saunamaja kohta on teil olemas ka dwg joonised?

Teavita reeglite rikkumisest

Korraldaja vastus: 15.11.2023 17:17

Tere. Ei ole.

Teavita reeglite rikkumisest

Küsimus: private ID78215   15.11.2023 17:50
Lisaks veel üks küsimus. Kas teil on alles antud hanke lisas olevate jooniste esialgne seletuskiri kasvõi paber kujul?

Teavita reeglite rikkumisest

Korraldaja vastus: 15.11.2023 18:05

On olemas tehase poolt väljastatud saunamaja muutmata varjandi kokkupanemise juhend pdf formaadis.

Teavita reeglite rikkumisest

Küsimus: private ID78215   16.11.2023 18:28
Tere
Veel selline küsimus, et kas teil samal kinnistul on olemas juba kasutusloaga või kasutusloata peamaja ka, millel juba on elektri, vee ja kanali liitumised või antud saunamaja on esimen ja ainuke hoone antud kinnistul?

Teavita reeglite rikkumisest

Korraldaja vastus: 16.11.2023 21:45

Olemas on toimiv maja, millel on kasutusluba tegemisel. Kõik vajalikud liitumised on olemas ja saunamaja jaoks on majast tehtud trasside valmidus.

Teavita reeglite rikkumisest

Lisa küsimus

Lisa küsimus

Minu pakkumine

Reeglid

Pakkumise kirjelduse väli on mõeldud pakkumise detailsemaks lahti kirjutamiseks. Pikema teksti mugavaks sisestamiseks klikkige kasti paremal ülaservas oleval ikoonil.
Pakkumist tehes on keelatud postitada enda kontaktandmeid (nimi, telefon, aadress jne). Me jälgime ja analüüsime pakkumisi, et vältida pettuseid ja reeglite rikkumisi.
Rikkumise puhul kasutajakonto blokeeritakse.

 

Teisi töid samas valdkonnas

Valdkonnas "Projekteerimine" on 6 aktiivset tööd

no-img Pilt puudub

1-kordse 120 m2 elumaja põhiprojekt

Asukoht: Harjumaa, Metsanurme
Aega jäänud: 8p 20h
Tehtud pakkumisi: 4

no-img Pilt puudub

Saunamaja eelprojekt ehitusteatiseks

Asukoht: Lääne-Virumaa
Aega jäänud: 1p 20h
Tehtud pakkumisi: 3

Vanemad teated:

Vaata kõiki

Sellel veebilehel kasutatakse küpsiseid. Kasutamist jätkates nõustute küpsiste kasutamisega.

Sulge
 
Minu pakkumine

Reeglid

Pakkumise kirjelduse väli on mõeldud pakkumise detailsemaks lahti kirjutamiseks. Pikema teksti mugavaks sisestamiseks klikkige kasti paremal ülaservas oleval ikoonil.
Pakkumist tehes on keelatud postitada enda kontaktandmeid (nimi, telefon, aadress jne). Me jälgime ja analüüsime pakkumisi, et vältida pettuseid ja reeglite rikkumisi.
Rikkumise puhul kasutajakonto blokeeritakse.