+ Lisa oma töö      

Otsid ehitajat "Projekteerimine" valdkonnast?

Parima pakkumise ja teostaja leidmiseks lisa oma töö.

Hange on lõppenud!

Võitjaks osutus kasutaja ID 50238

Ventilatsioon, küte põhi- ja/või tööprojekt

ID 86851

555 vaatamist

Prindi

  • check Pakkumiste tegemine
    kuni 14.10.2023
  • check Võitja valik kuni
    14.10.2023
  • 3 Töö teostamine
    ja hinnang
Hanke lõpp: L, 14. oktoober, 2023
Maakond: Tartumaa
Linn: Tartu
Tööde algus: E, 02. oktoober, 2023 (Soovituslik)
Tööde lõpp: R, 20. oktoober, 2023 (Soovituslik)
Ehitusmaterjalid: Töö tegija poolt
Soovin pakkumisi: Summa kogu projektile

Töö sisu

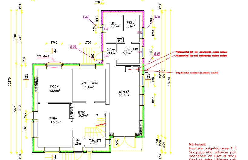
Olemasolevale lahendusele on vaja koostada kasutusteatise esitamiseks ventilatsiooni ja küttesüsteemi projekt (eelprojekt on olemas). Objekt asub Tartu linnas.

Pildid, video ja failid

Hanke korraldaja: eraisik ID68743

Pakkumised

Pakkumisi kokku: 3

Ettevõte Summa Käibemaks Lisatud Vestlus
Kasutaja ikoon ID63115
Pakkuja profiil Väike nool paremale
1 900€ KM lisandub KM lisandub 02.10.2023 Vestlus (0)

Pakkumise kirjeldus:

Hinnapakkumine sisaldab kütte- ja ventilatsioonisüsteemide põhiprojekti vastavalt olemasolevale lahendusele.
Ettemaksu ei soovi. Vastutava isiku allkiri ja vajadusel objekti külastamine on hinna sees.


Töö tegemiseks vajame joonised dwg kujul. Kui dwg kujul joonised on puudu saame neid digitaliseerida hinnaga 500 eur+km.

Kasutaja ikoon ID41204
Pakkuja profiil Väike nool paremale
1 300€ KM lisandub KM lisandub 04.10.2023 Vestlus (0)

Pakkumise kirjeldus:

Pakume ventilatsiooni ja küttesaüsteemide teostusjooniste valmistamine.

Kasutaja ikoon ID50238
Pakkuja profiil Väike nool paremale
1 200€ KM lisandub KM lisandub 12.10.2023 Vestlus (0)

Küsimused hanke korraldajale

Küsimus: private ID41204   02.10.2023 10:08
Tere!
1. Kas süsteemid on juba välja ehitatud ja tuleb ainult teostusjoonised teha või on vaja ka mõni osas tehlilised lahendused vastu võtta?
2. Kas ventilatsiooni ja küttesüsteemide joonestamiseks on arhitektuursed plaanid dwg formaadis olemas?

Teavita reeglite rikkumisest

Korraldaja vastus: 02.10.2023 11:57

Tere.

1. Süsteemid on täielikult välja ehitatud, vajan ainult teostusjooniseid.
2. dwg formaadis joonised on olemas.

Teavita reeglite rikkumisest

Lisa küsimus

Lisa küsimus

Minu pakkumine

Reeglid

Pakkumise kirjelduse väli on mõeldud pakkumise detailsemaks lahti kirjutamiseks. Pikema teksti mugavaks sisestamiseks klikkige kasti paremal ülaservas oleval ikoonil.
Pakkumist tehes on keelatud postitada enda kontaktandmeid (nimi, telefon, aadress jne). Me jälgime ja analüüsime pakkumisi, et vältida pettuseid ja reeglite rikkumisi.
Rikkumise puhul kasutajakonto blokeeritakse.

 

Teisi töid samas valdkonnas

Valdkonnas "Projekteerimine" on 7 aktiivset tööd

no-img Pilt puudub

1-kordse 120 m2 elumaja põhiprojekt

Asukoht: Harjumaa, Metsanurme
Aega jäänud: 8p 8h
Tehtud pakkumisi: 4

no-img Pilt puudub

Saunamaja eelprojekt ehitusteatiseks

Asukoht: Lääne-Virumaa
Aega jäänud: 1p 8h
Tehtud pakkumisi: 3

Vanemad teated:

Vaata kõiki

Sellel veebilehel kasutatakse küpsiseid. Kasutamist jätkates nõustute küpsiste kasutamisega.

Sulge
 
Minu pakkumine

Reeglid

Pakkumise kirjelduse väli on mõeldud pakkumise detailsemaks lahti kirjutamiseks. Pikema teksti mugavaks sisestamiseks klikkige kasti paremal ülaservas oleval ikoonil.
Pakkumist tehes on keelatud postitada enda kontaktandmeid (nimi, telefon, aadress jne). Me jälgime ja analüüsime pakkumisi, et vältida pettuseid ja reeglite rikkumisi.
Rikkumise puhul kasutajakonto blokeeritakse.