+ Lisa oma töö      

Otsid ehitajat "Müüritööd" valdkonnast?

Parima pakkumise ja teostaja leidmiseks lisa oma töö.

Puitkarkassmaja alusvöö vahetus ja osal. vundamendi renoveerimine

ID 86708

652 vaatamist

Prindi

  • check Pakkumiste tegemine
    kuni 03.10.2023
  • check Võitja valik kuni
    10.10.2023
  • 3 Töö teostamine
    ja hinnang
Hanke lõpp: T, 3. oktoober, 2023
Maakond: Viljandimaa
Linn: Viljandi
Tööde algus: E, 02. oktoober, 2023 (Soovituslik)
Tööde lõpp: T, 31. oktoober, 2023 (Soovituslik)
Ehitusmaterjalid: Töö tegija poolt
Soovin pakkumisi: Summa kogu projektile

Töö sisu

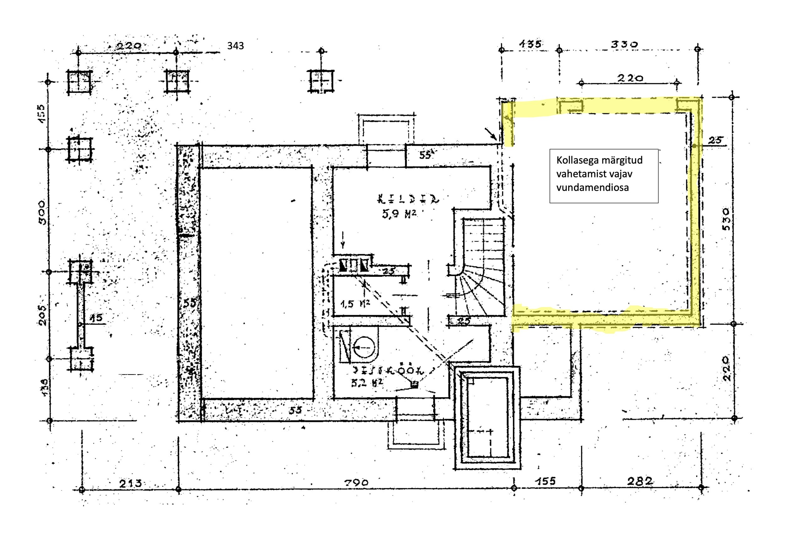
Tegemist 1950 a. 2 korruselise puitsõrestikmajaga, mis koosneb kahest osast. Vajalik eemaldada vana alusvöö koos u. 25cm kõrguse osaga püstkarkassist ja diagonaallaudisest, et asendada see 1 rea (h=185mm) Fibo U- plokiga 200mm, millesse 2 sarrust ja betoonivalu. Selle peale hüdroisolatsioon ja u. 1m sammuga kiilankrutega M10 120 U-ploki betooni kinnitatud uus alusvöö sügavimmutatud 50x250mm (või 45x250) C24. Alusvöö kogupikkuseks u. 41jm.
Maja on tühi, seinad ja põrandad on seestpool lahti võetud. Kogu vana soojustus eemaldatud. Väljast krohv, horis. laudis jm eemaldatud kuni diagonaallaudiseni vajalikku kõrgusesse ehk u. 30cm vundamendist. Vajadusel rohkem. Püstkarkass on elamu osas 50 (ja 125) x 125mm, majandusruumi osas 50( ja 100) x 100mm; sammuga keskmiselt u 75cm. Vana alusvöö elamu osas 25x125 +125x125; majandusruumis 50x100 +100x100.
Vundamendi laius seespool võimaldab maja toestada ning Fibo plokid ja vöö paigaldada näiteks väljaspoolt. Teostaja valikul osade kaupa või korraga maja toestadades.

Lisaks on majandusruumidega maja osas (madalam osa) vajalik eemaldada ja utiliseerida välimine vana vundament, mis on 25cm laiune betoonist (kõrgus u. 45cm) + lahtistest maakividest (kõrgus u. 50cm) (maakivid jääks krundile). Kogupikkus u. 15,5m. Kaevetööd tellija poolt.
Uus vundament tuleks 5 kivi kõrgune Fibo3 200mm. (+eelnevalt kirjeldatud U-kivi alusvööga) Plokkide ladumisel kasutada mörti M10 ja armeerida Bi-armatuuriga vastavalt tootja juhendile.
Taldmik rajatakse Fibo taldmikuplokke (või Vormest 400x250 mm rakiseid) kasutades ja armeerides vastavalt tootja juhistele. Vundamenditaldmiku alla teha tihendatud killustikalus paksusega min 200mm. Taldmiku ja plokkide vahele SBS hüdroisolatsioon 300mm, ülekattega liited bituumenmastiksiga.
Majandusruumi garaažiukse ja selle kõrval asuva ukse asemel tuleb lähitulevikus sein.

Pildid, video ja failid

Hanke korraldaja: eraisik ID12169

Pakkumised

Pakkumisi kokku: 1

Ettevõte Summa Käibemaks Lisatud Vestlus
Kasutaja ikoon ID73479
Pakkuja profiil Väike nool paremale
50 000€ Sisaldab KM Sisaldab KM 03.10.2023 Vestlus (0)

Pakkumise kirjeldus:

Vabandust hinnangu pärast.
Mõned petturid annavad konkreetselt 0 hinnangut.

Tere,

Hea meelega teostame tööd teie jaoks.tööd tehakse kvaliteetselt ja võimalikult kiiresti.Pakume 5 aastane garantii oma töödele.

See hind sisaldab kõiki nimekirjas olevaid soovitud tööd.
Spetsialisti tulek teie objektile, hinnapakkumise ja tööteostamise l ... Rohkem

Küsimused hanke korraldajale

Hanke korraldajale ei ole veel küsimusi esitatud.

Lisa küsimus

Lisa küsimus

Minu pakkumine

Reeglid

Pakkumise kirjelduse väli on mõeldud pakkumise detailsemaks lahti kirjutamiseks. Pikema teksti mugavaks sisestamiseks klikkige kasti paremal ülaservas oleval ikoonil.
Pakkumist tehes on keelatud postitada enda kontaktandmeid (nimi, telefon, aadress jne). Me jälgime ja analüüsime pakkumisi, et vältida pettuseid ja reeglite rikkumisi.
Rikkumise puhul kasutajakonto blokeeritakse.

 

Vanemad teated:

Vaata kõiki

Sellel veebilehel kasutatakse küpsiseid. Kasutamist jätkates nõustute küpsiste kasutamisega.

Sulge
 
Minu pakkumine

Reeglid

Pakkumise kirjelduse väli on mõeldud pakkumise detailsemaks lahti kirjutamiseks. Pikema teksti mugavaks sisestamiseks klikkige kasti paremal ülaservas oleval ikoonil.
Pakkumist tehes on keelatud postitada enda kontaktandmeid (nimi, telefon, aadress jne). Me jälgime ja analüüsime pakkumisi, et vältida pettuseid ja reeglite rikkumisi.
Rikkumise puhul kasutajakonto blokeeritakse.