+ Lisa oma töö      

Otsid ehitajat "Vundamenditööd" valdkonnast?

Parima pakkumise ja teostaja leidmiseks lisa oma töö.

Elamu lintvundamendi ehitus

ID 85865

539 vaatamist

Prindi

  • check Pakkumiste tegemine
    kuni 15.09.2023
  • check Võitja valik kuni
    22.09.2023
  • 3 Töö teostamine
    ja hinnang
Hanke lõpp: R, 15. september, 2023
Maakond: Lääne-Virumaa
Muu asula: Kadrina
Tööde algus: E, 09. oktoober, 2023 (Soovituslik)
Tööde lõpp: T, 31. oktoober, 2023 (Soovituslik)
Ehitusmaterjalid: Töö tegija poolt
Soovin pakkumisi: Summa kogu projektile

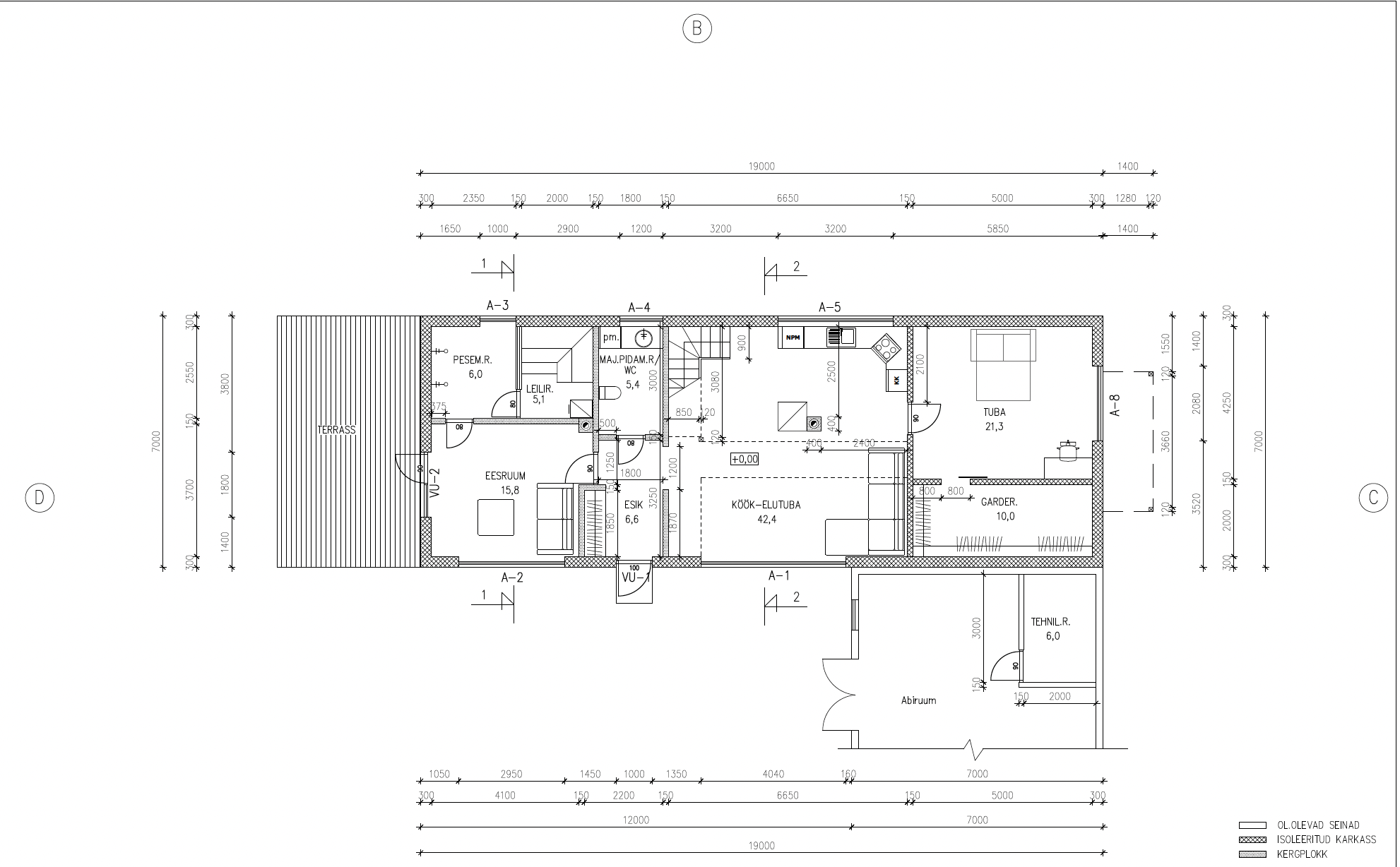
Töö sisu

Soovin hinnapakkumist elamu lintvundamendi ehitusele koos tagasitäitega. Ehitus peaks algama ca. kuu aja pärast, eesmärk on vundamendi ehitus koos tagasitäitega lõpetada enne talve.

Vundament teha Fibo 5 plokkidest 200mm r/bet taldmikul 200x600mm tihendatud killustikalusel. Vundament katta hüdroisolatsiooniga ja ümber perimeetri EPS horisontaalselt 100x1000mm. Sokkel soojustada EPS 120 perimeeter 50mm.

Kommunikatsioonid(kanalisatsioon, vesi, elekter) tuleb vedada kõrvalasuva hoone juurest, ca. 10m.

Pakkumist soovin tööle koos materjalidega.

Pildid, video ja failid

Hanke korraldaja: eraisik ID69112

Pakkumised

Pakkumisi kokku: 6

Ettevõte Summa Käibemaks Lisatud Vestlus
Kasutaja ikoon ID57450
Pakkuja profiil Väike nool paremale
38 000€ KM lisandub KM lisandub 02.09.2023 Vestlus (0)

Pakkumise kirjeldus:

Pakkumine tehtud täislahendusele vundament koos betoonpõrandaga.
Huvi korral võtke ühendust, saame kokku ja koostame detailse pakkumise.
Edukat hanget!

Kasutaja ikoon ID51359
Pakkuja profiil Väike nool paremale
30 000€ KM lisandub KM lisandub 12.09.2023 Vestlus (0)
Kasutaja ikoon ID73820
Pakkuja profiil Väike nool paremale
32 000€ Sisaldab KM Sisaldab KM 14.09.2023 Vestlus (0)

Pakkumise kirjeldus:

Tere

Hind sisaldab

Vundamendi ehitust 1.2 sügavusele
6rida fibo 200+1rida uplokk
2xvundamendi maha märkimist
taldmiku rajamist
ladumine+ tagasi täidet
eps 100 200mm paigaldust
armatuurvôrk+upinori pōrandaküte paigaldust
elektri,kanalisatsiooni ja vee valmidust
raudbetoon põranda ehitust 100 mm
Saab ka tasuda sularahas.

Kasutaja ikoon ID40585
Pakkuja profiil Väike nool paremale
31 450€ Ei ole KMKR Ei ole KMKR 15.09.2023 Vestlus (0)

Pakkumise kirjeldus:

Tere.
Pakkumine vastavalt hanke kirjeldusele ja joonisele..
Enne tööde algust ja lõplikku kokkulepet vajalik Tellijaga koos kohapeal objekti ülevaatamine.
Sisaldab mahamärkimisi, mõõdistusi ja korrektsed dokumeteerimist.
Torustikud ja kaabel kuni maja sisendini ca 10 m (kaabel kilbini ja veetoru veemõõtjani) . Põrandatealuseid torustikke ei ... Rohkem

Kasutaja ikoon ID59528
Pakkuja profiil Väike nool paremale
37 000€ KM lisandub KM lisandub 15.09.2023 Vestlus (0)

Pakkumise kirjeldus:

Tere,

Pakkumine tehtud vastavalt Hankes kirjeldatud töödele. Täpsema hinnakalkulatsiooni saame saata vestluses.
Meie profiili alt näete meie poolt tehtud töid ja klientide poolt antud hinnanguid
Ettevōttel olemas MTR registreering!

Parimat,

Erik

Kasutaja ikoon ID73479
Pakkuja profiil Väike nool paremale
45 000€ Sisaldab KM Sisaldab KM 15.09.2023 Vestlus (0)

Pakkumise kirjeldus:

Tere,

Hea meelega teostame tööd teie jaoks.tööd tehakse kvaliteetselt ja võimalikult kiiresti.Pakume 5 aastane garantii oma töödele.

See hind sisaldab kõiki nimekirjas olevaid soovitud tööd.
Spetsialisti tulek teie objektile, hinnapakkumise ja tööteostamise lepingu koostamine.

Minu firma tegeleb katuste, fassaadide ehitusega ning üldeh ... Rohkem

Küsimused hanke korraldajale

Küsimus: private ID73820   13.09.2023 21:18
Tere

Kas on vōimalik saada vundamendi lōike joonist?

Sooviks teada saada rajatava vundamendi sügavust ning sokli kōrgust maapinnast.

Teavita reeglite rikkumisest

Korraldaja vastus:
Hanke korraldaja ei ole küsimusele veel vastanud

Küsimus: private ID59528   15.09.2023 09:54
Tere,

Kas olete huvitatud ka maja ehituse hinnast ?
Meie profiili alt näete meie poolt tehtud töid ja klientide poolt antud hinnanguid

Parimat,

Erik

Teavita reeglite rikkumisest

Korraldaja vastus:
Hanke korraldaja ei ole küsimusele veel vastanud

Lisa küsimus

Lisa küsimus

Minu pakkumine

Reeglid

Pakkumise kirjelduse väli on mõeldud pakkumise detailsemaks lahti kirjutamiseks. Pikema teksti mugavaks sisestamiseks klikkige kasti paremal ülaservas oleval ikoonil.
Pakkumist tehes on keelatud postitada enda kontaktandmeid (nimi, telefon, aadress jne). Me jälgime ja analüüsime pakkumisi, et vältida pettuseid ja reeglite rikkumisi.
Rikkumise puhul kasutajakonto blokeeritakse.

 

Vanemad teated:

Vaata kõiki

Sellel veebilehel kasutatakse küpsiseid. Kasutamist jätkates nõustute küpsiste kasutamisega.

Sulge
 
Minu pakkumine

Reeglid

Pakkumise kirjelduse väli on mõeldud pakkumise detailsemaks lahti kirjutamiseks. Pikema teksti mugavaks sisestamiseks klikkige kasti paremal ülaservas oleval ikoonil.
Pakkumist tehes on keelatud postitada enda kontaktandmeid (nimi, telefon, aadress jne). Me jälgime ja analüüsime pakkumisi, et vältida pettuseid ja reeglite rikkumisi.
Rikkumise puhul kasutajakonto blokeeritakse.