+ Lisa oma töö      

Otsid ehitajat "Üldehitus" valdkonnast?

Parima pakkumise ja teostaja leidmiseks lisa oma töö.

Eramaja ehitus

ID 85567

893 vaatamist

Prindi

  • check Pakkumiste tegemine
    kuni 07.09.2023
  • check Võitja valik kuni
    14.09.2023
  • 3 Töö teostamine
    ja hinnang
Hanke lõpp: N, 7. september, 2023
Maakond: Harjumaa
Muu asula: Laulasmaa
Tööde algus: T, 31. oktoober, 2023 (Soovituslik)
Tööde lõpp: T, 30. aprill, 2024 (Soovituslik)
Ehitusmaterjalid: Töö tegija poolt
Soovin pakkumisi: Summa kogu projektile

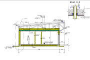
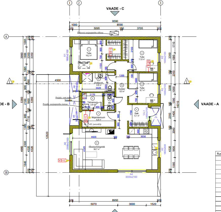
Töö sisu

"võtmed kätte" maja ehitus. Vesi ja elekter on krundil olemas. Krundil kõrghaljastus (mets), kuid vana maja asukohale, vana maja lammutatakse. Ehitusluba olemas.

Hinnapakkumine peaks sisaldama kõiki töid kuni siseviimistluseni välja. Samamoodi tuleks rajada ka reoveemahuti, lisaks elektri- ja veeühendus. Siseviimistluse osas peaks olema värvitud kõik seinad-laed ja põrand paigaldatud ning liistud pandud. WC ning vannituba peaks olema täielikult välja ehitatud.

Kui tekib täpsustavaid küsimusi enne pakkumise koostamist, siis olen valmis neile hange.ee keskkonnas vastama.

Pildid, video ja failid

Hanke korraldaja: eraisik ID71287

Pakkumised

Pakkumisi kokku: 4

Ettevõte Summa Käibemaks Lisatud Vestlus
Kasutaja ikoon ID50329
Pakkuja profiil Väike nool paremale
1 700€ KM lisandub KM lisandub 25.08.2023 Vestlus (0)
Kasutaja ikoon ID44230
Pakkuja profiil Väike nool paremale
2 990€ Sisaldab KM Sisaldab KM 29.08.2023 Vestlus (0)

Pakkumise kirjeldus:

seda hind on maksab 1m2

Kasutaja ikoon ID74674
Pakkuja profiil Väike nool paremale
2 360€ Ikoon kell Sisaldab KM Sisaldab KM 31.08.2023 Vestlus (0)

Pakkumise kirjeldus:

2360 EUR / m2

Kasutaja ikoon ID71374
Pakkuja profiil Väike nool paremale
195 000€ KM lisandub KM lisandub 03.09.2023 Vestlus (0)

Pakkumise kirjeldus:

Arvete tasumine vastavalt aktile.
Peale vundamendi alust esimene etapp. Vundament valmis teine etapp, seinad püsti 3etapp katus 4 etapp 5 etapp peale sisetööde lõppu.
Lgp

Küsimused hanke korraldajale

Küsimus: private ID69273   25.08.2023 08:24
Tere,
Kas oleks võimalik siia lisada dwg formaadis joonised ning samuti ka asendiplaan?

Teavita reeglite rikkumisest

Korraldaja vastus: 26.08.2023 18:26

Tere. Dwg jooniseid kahjuks pole.

Teavita reeglite rikkumisest

Küsimus: private ID54411   29.08.2023 09:21
Tere.Kas viimistlus materaalid tuleb teiega kooskõlastada.Kui jah siis milliseid eelistate.
Tänan.

Teavita reeglite rikkumisest

Korraldaja vastus: 31.08.2023 09:32

Tere. Viimistlusmaterjalides eelistame nö keskmist hinnaklassi. Ei oska kohe kommenteerida nii.

Teavita reeglite rikkumisest

Küsimus: private ID59528   06.09.2023 12:48
Tere,

Kas saaksite pdf filed ka siia lisada
Nende pealt saaksime teha vajalikud mõõdistused

Parimat,

Erik

Teavita reeglite rikkumisest

Korraldaja vastus:
Hanke korraldaja ei ole küsimusele veel vastanud

Lisa küsimus

Lisa küsimus

Minu pakkumine

Reeglid

Pakkumise kirjelduse väli on mõeldud pakkumise detailsemaks lahti kirjutamiseks. Pikema teksti mugavaks sisestamiseks klikkige kasti paremal ülaservas oleval ikoonil.
Pakkumist tehes on keelatud postitada enda kontaktandmeid (nimi, telefon, aadress jne). Me jälgime ja analüüsime pakkumisi, et vältida pettuseid ja reeglite rikkumisi.
Rikkumise puhul kasutajakonto blokeeritakse.

 

Teisi töid samas valdkonnas

Valdkonnas "Üldehitus" on 30 aktiivset tööd

Kuuri lammutus

Asukoht: Pärnumaa
Aega jäänud: 2p 22h
Tehtud pakkumisi: 6

Põrandakütte torustiku ja kollektori paigaldus.

Asukoht: Harjumaa, Kurkse
Aega jäänud: 15p 22h
Tehtud pakkumisi: 4

Vanemad teated:

Vaata kõiki

Sellel veebilehel kasutatakse küpsiseid. Kasutamist jätkates nõustute küpsiste kasutamisega.

Sulge
 
Minu pakkumine

Reeglid

Pakkumise kirjelduse väli on mõeldud pakkumise detailsemaks lahti kirjutamiseks. Pikema teksti mugavaks sisestamiseks klikkige kasti paremal ülaservas oleval ikoonil.
Pakkumist tehes on keelatud postitada enda kontaktandmeid (nimi, telefon, aadress jne). Me jälgime ja analüüsime pakkumisi, et vältida pettuseid ja reeglite rikkumisi.
Rikkumise puhul kasutajakonto blokeeritakse.