+ Lisa oma töö      

Otsid ehitajat "Ehitusprojektid" valdkonnast?

Parima pakkumise ja teostaja leidmiseks lisa oma töö.

Elamu Projekt

ID 85421

896 vaatamist

Prindi

  • check Pakkumiste tegemine
    kuni 03.09.2023
  • check Võitja valik kuni
    10.09.2023
  • 3 Töö teostamine
    ja hinnang
Hanke lõpp: P, 3. september, 2023
Maakond: Raplamaa
Tööde algus: E, 21. august, 2023 (Soovituslik)
Tööde lõpp: E, 25. september, 2023
Ehitusmaterjalid: Töö tellija poolt
Soovin pakkumisi: Summa kogu projektile

Töö sisu

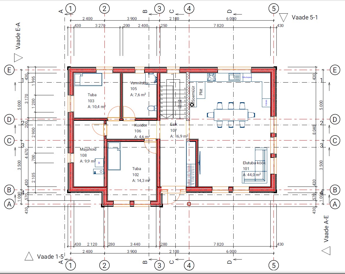
Kahe korruselise puit karkass maja projekt vajab lõpetamist. Olemas on PDF faili kujul I ja II korruse alusplaanid, välis vaated, katus.

Hoone põhiprojekt.

Koostatav projekt vastab EVS 932:2017 ja MKM määruse nr. 97 „Nõuded ehitusprojektile1" nõuetele.

Projekti koostav ettevõte omab nõuetekohast MTR registreeringut.

Märkused:
1. Hinnapkkumine sisaldab hoone konstruktiivset (EK) ja eriosasid põhiprohjekti staadiumis.

2. Hinnapakkumine ei sisalda Topo-geodeetiliste uuringute koostamist, ega nende maksumust,
Geodeetiline alus ja projekteerimis tingimused on olemas.

3. Hinnapakkumine ei sisalda Ehitusgeoloogiliste uuringute koostamist, ega selle maksumust,

4. Projektiga ja/ või projekteerimisega seotud kõik võimalikud kooskõlastustasud ja või riigilõivud (nt. projekteerimistingimuste menetlustasud, ehitusloa taotlusega seotud riigilõivud, võrguvaldajate trassidega seotud kooskõlastustasud ja või liitumistasud ja või projekti kooskõlastustasud, jne.) tasub Tellija,

Ehitusprojekti koostamisega alustamine august 2023. ja eeldatav projekti koostamise periood ca. 1 kuu.

Pildid, video ja failid

Hanke korraldaja: eraisik ID76658

Pakkumised

Pakkumisi kokku: 6

Ettevõte Summa Käibemaks Lisatud Vestlus
Kasutaja ikoon ID5128
Pakkuja profiil Väike nool paremale
15 000€ KM lisandub KM lisandub 22.08.2023 Vestlus (0)

Pakkumise kirjeldus:

vajalik olemasoleva eskiisi autori nõusolek jätkamiseks. Hinnas ei ole geoloogilise uuringu maksumust.

Kasutaja ikoon ID69164
Pakkuja profiil Väike nool paremale
4 100€ Ei ole KMKR Ei ole KMKR 23.08.2023 Vestlus (6)

Pakkumise kirjeldus:

Hoone konstruktiivne ja eriosade (küte, ventilatsioon, vesi, kanalisatsioon) põhiprojekt.

Koostatav projekt vastab EVS 932:2017 ja MKM määruse nr. 97 „Nõuded ehitusprojektile1" nõuetele.


Märkused:
1. Hinnapakkumine ei sisalda Topo-geodeetiliste uuringute koostamist, ega nende maksumust,
2. Hinnapakkumine ei sisalda Ehitusgeoloogiliste uuri ... Rohkem

Kasutaja ikoon ID26988
Pakkuja profiil Väike nool paremale
9 500€ Ei ole KMKR Ei ole KMKR 31.08.2023 Vestlus (0)

Pakkumise kirjeldus:

Pakkumine sisaldab projekti põhiprojekti mahus, koos konstruktiivse-ja eriosadega, vastavalt normidele ja standartidele ning Teie kirjeldusele. Kõik kooskõlastused ja asjaajamised kuni ehitusloani. Vajadusel konsultatsioonid. Projekt digitaalselt Teile sobivates formaatides, 3D-visualiseering.
Geoalus, riigilõivud ja seotud asutuste menetlemise tasud ... Rohkem

Kasutaja ikoon ID48870
Pakkuja profiil Väike nool paremale
1 950€ Sisaldab KM Sisaldab KM 03.09.2023 Vestlus (0)

Pakkumise kirjeldus:

Tere,
pakkumise hind sisaldab järgmist:
maja ehituskonstruktsioonide projekteerimine põhiprojekti staadiumis kooskõlas arhitektuurse projektiga (vt EVS 932:2017)
Projekti sisu:
1. konstruktsiooniarvutused
2. joonised
3. vundamendi plaan
4. aluspõrand - vajalikud lõiked, armatuuri mõõtmed, sammud,.
5. seinte/silluste-plaan, sõlmed, lõiked, se ... Rohkem

Kasutaja ikoon ID75770
Pakkuja profiil Väike nool paremale
7 550€ Ei ole KMKR Ei ole KMKR 03.09.2023 Vestlus (0)

Pakkumise kirjeldus:

Tere!

Projekt vastavalt hankija tehnilisele kirjeldusele ja EVS nõuetele.

Kasutaja ikoon ID73479
Pakkuja profiil Väike nool paremale
7 000€ Sisaldab KM Sisaldab KM 03.09.2023 Vestlus (0)

Pakkumise kirjeldus:

Tere,

Hea meelega teostame tööd teie jaoks.tööd tehakse kvaliteetselt ja võimalikult kiiresti.Pakume 5 aastane garantii oma töödele.

See hind sisaldab kõiki nimekirjas olevaid soovitud tööd.
Spetsialisti tulek teie objektile, hinnapakkumise ja tööteostamise lepingu koostamine.

Minu firma tegeleb katuste, fassaadide ehitusega ning üldeh ... Rohkem

Küsimused hanke korraldajale

Hanke korraldajale ei ole veel küsimusi esitatud.

Lisa küsimus

Lisa küsimus

Minu pakkumine

Reeglid

Pakkumise kirjelduse väli on mõeldud pakkumise detailsemaks lahti kirjutamiseks. Pikema teksti mugavaks sisestamiseks klikkige kasti paremal ülaservas oleval ikoonil.
Pakkumist tehes on keelatud postitada enda kontaktandmeid (nimi, telefon, aadress jne). Me jälgime ja analüüsime pakkumisi, et vältida pettuseid ja reeglite rikkumisi.
Rikkumise puhul kasutajakonto blokeeritakse.

 

Teisi töid samas valdkonnas

Valdkonnas "Ehitusprojektid" on 5 aktiivset tööd

no-img Pilt puudub

Kortermaja kõigi ruumide mõõdistamine ja DWG faili koostamine

Asukoht: Harjumaa, Tallinn
Aega jäänud: 1p 20h
Tehtud pakkumisi: 2

Korterelamu mõõdistusprojekti koostamine ja jooniste digitaliseerimine

Asukoht: Lääne-Virumaa, Tapa
Aega jäänud: 4p 20h
Tehtud pakkumisi: 2

Vanemad teated:

Vaata kõiki

Sellel veebilehel kasutatakse küpsiseid. Kasutamist jätkates nõustute küpsiste kasutamisega.

Sulge
 
Minu pakkumine

Reeglid

Pakkumise kirjelduse väli on mõeldud pakkumise detailsemaks lahti kirjutamiseks. Pikema teksti mugavaks sisestamiseks klikkige kasti paremal ülaservas oleval ikoonil.
Pakkumist tehes on keelatud postitada enda kontaktandmeid (nimi, telefon, aadress jne). Me jälgime ja analüüsime pakkumisi, et vältida pettuseid ja reeglite rikkumisi.
Rikkumise puhul kasutajakonto blokeeritakse.