+ Lisa oma töö      

Otsid ehitajat "Elektritööd" valdkonnast?

Parima pakkumise ja teostaja leidmiseks lisa oma töö.

Eramajade elektritööd

ID 82926

552 vaatamist

Prindi

  • check Pakkumiste tegemine
    kuni 19.06.2023
  • check Võitja valik kuni
    26.06.2023
  • 3 Töö teostamine
    ja hinnang
Hanke lõpp: E, 19. juuni, 2023
Maakond: Harjumaa
Linn: Tallinn
Tööde algus: E, 03. juuli, 2023 (Soovituslik)
Tööde lõpp: P, 31. detsember, 2023 (Soovituslik)
Ehitusmaterjalid: Töö tegija poolt
Soovin pakkumisi: Summa kogu projektile

Töö sisu

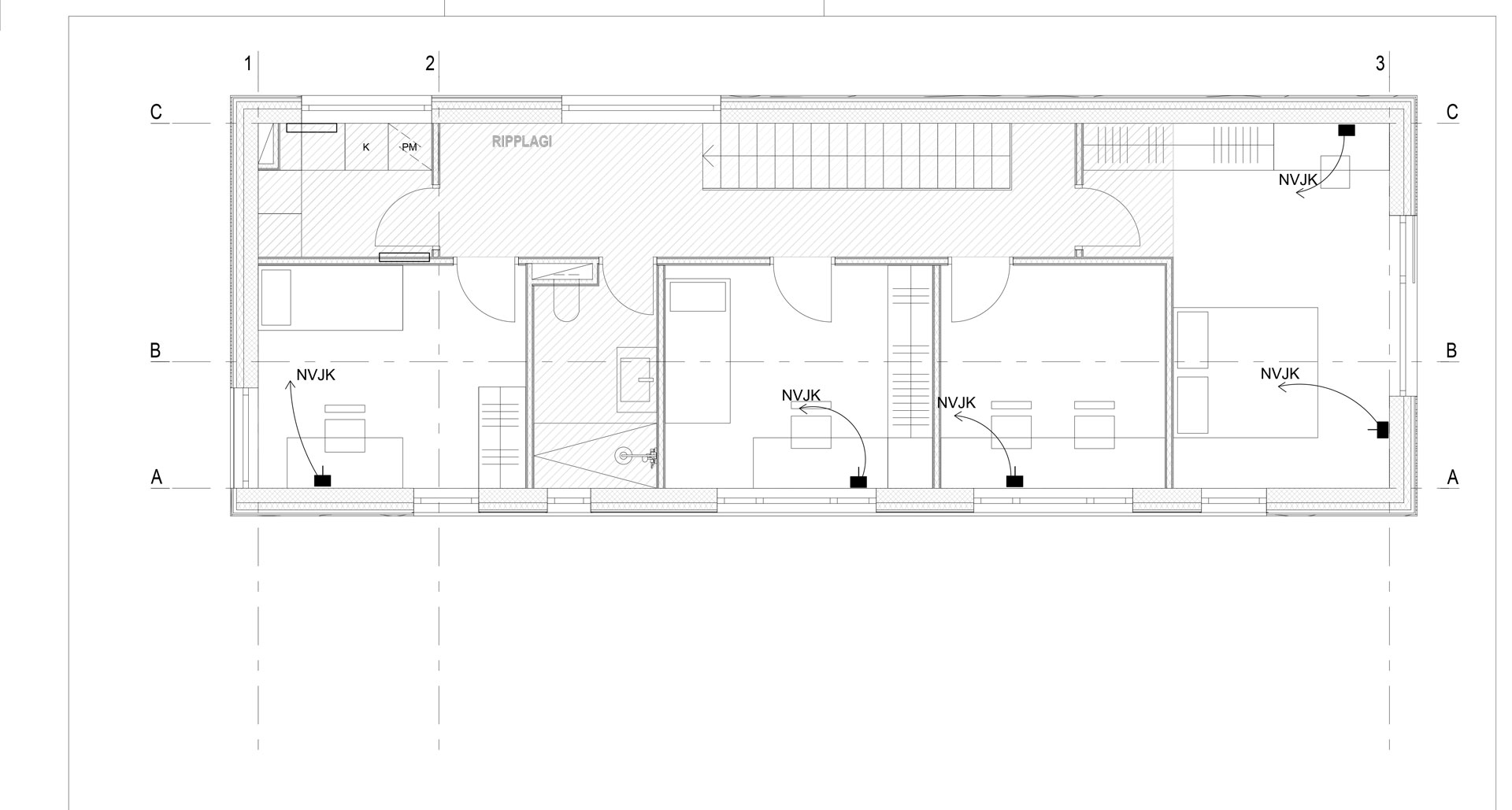
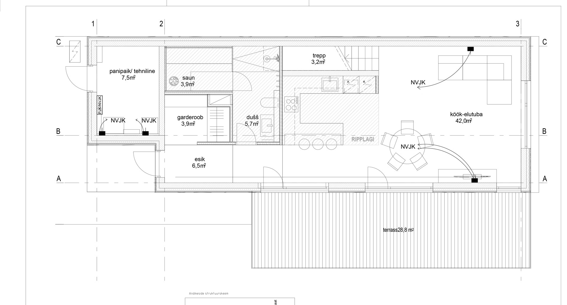
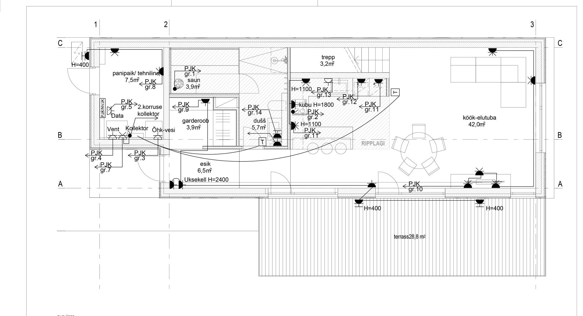
Otsitakse 2 eramaja ehitusel elektritööde tegijat.

Maja seinad on Fibo5 plokkidest. Vahelagi ja katuslagi õõnespaneelidest.

Töödega alustamine - Juuli 1-2 nädal.

Töövõtja tööde hulka kuulub lisaks elektritööde teostamisele ka kogu vajamineva paberimajanduse koostamine ja esitamine tellijale (audit, mööteprotokoll, teostusjoonised jne).

Pistikupesad ja lülitid - ABB Basic - sarjast. Süvistatavad valgustid tarnitakse töövõtja poolt. Pinnapealsete valgustite paigaldus ei kuulu töövõttu.

Kaabeldus põrandakütteanduritele kuulub elektritöö mahtu.

Pildid, video ja failid

Hanke korraldaja: eraisik ID74455

Pakkumised

Pakkumisi kokku: 4

Ettevõte Summa Käibemaks Lisatud Vestlus
Kasutaja ikoon ID52405
Pakkuja profiil Väike nool paremale
12 000€ KM lisandub KM lisandub 17.06.2023 Vestlus (0)
Kasutaja ikoon ID61875
Pakkuja profiil Väike nool paremale
13 500€ KM lisandub KM lisandub 18.06.2023 Vestlus (0)
Kasutaja ikoon ID73202
Pakkuja profiil Väike nool paremale
14 000€ Sisaldab KM Sisaldab KM 19.06.2023 Vestlus (0)
Kasutaja ikoon ID25180
Pakkuja profiil Väike nool paremale
18 900€ KM lisandub KM lisandub 19.06.2023 Vestlus (0)

Pakkumise kirjeldus:

Soovitud elektritööd ja materjalid vastavalt joonistele ja kirjeldusele. Lugupidamisega.

Küsimused hanke korraldajale

Hanke korraldajale ei ole veel küsimusi esitatud.

Lisa küsimus

Lisa küsimus

Minu pakkumine

Reeglid

Pakkumise kirjelduse väli on mõeldud pakkumise detailsemaks lahti kirjutamiseks. Pikema teksti mugavaks sisestamiseks klikkige kasti paremal ülaservas oleval ikoonil.
Pakkumist tehes on keelatud postitada enda kontaktandmeid (nimi, telefon, aadress jne). Me jälgime ja analüüsime pakkumisi, et vältida pettuseid ja reeglite rikkumisi.
Rikkumise puhul kasutajakonto blokeeritakse.

 

Teisi töid samas valdkonnas

Valdkonnas "Elektritööd" on 5 aktiivset tööd

Vana talu elektrisüsteemi uuendamine (kilp, pistikud, välivalgustus, EV valmidus)

Asukoht: Raplamaa, Suurekivi
Aega jäänud: 1p 15h
Tehtud pakkumisi: 5

Korteri remont

Asukoht: Tartumaa
Aega jäänud: 15h 55 min
Tehtud pakkumisi: 2

Vanemad teated:

Vaata kõiki

Sellel veebilehel kasutatakse küpsiseid. Kasutamist jätkates nõustute küpsiste kasutamisega.

Sulge
 
Minu pakkumine

Reeglid

Pakkumise kirjelduse väli on mõeldud pakkumise detailsemaks lahti kirjutamiseks. Pikema teksti mugavaks sisestamiseks klikkige kasti paremal ülaservas oleval ikoonil.
Pakkumist tehes on keelatud postitada enda kontaktandmeid (nimi, telefon, aadress jne). Me jälgime ja analüüsime pakkumisi, et vältida pettuseid ja reeglite rikkumisi.
Rikkumise puhul kasutajakonto blokeeritakse.