+ Lisa oma töö      

Otsid ehitajat "Ehitusprojektid" valdkonnast?

Parima pakkumise ja teostaja leidmiseks lisa oma töö.

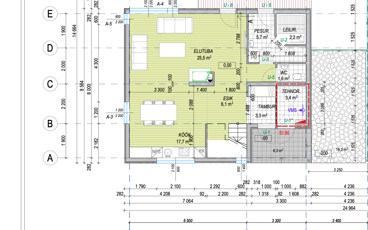
Paneeli laotusjoonis

ID 82295

549 vaatamist

Prindi

  • check Pakkumiste tegemine
    kuni 28.05.2023
  • check Võitja valik kuni
    04.06.2023
  • 3 Töö teostamine
    ja hinnang
Hanke lõpp: P, 28. mai, 2023
Maakond: Harjumaa
Tööde algus: E, 29. mai, 2023 (Soovituslik)
Tööde lõpp: K, 31. mai, 2023 (Soovituslik)
Ehitusmaterjalid: Töö tellija poolt
Soovin pakkumisi: Summa kogu projektile

Töö sisu

Otsin kedagi, kes teeks hoone vahelae jaoks laotise (DWG), mille alusel saaks tootjalt 200 või 220 mm õõnespaneele tellida. Olemas on eelprojekt. Hoone laotud Lakka Ruh-200 plokkidest.

Pildid, video ja failid

Hanke korraldaja: ettevõte ID48843

Pakkumised

Pakkumisi kokku: 4

Ettevõte Summa Käibemaks Lisatud Vestlus
Kasutaja ikoon ID44039
Pakkuja profiil Väike nool paremale
3 200€ Sisaldab KM Sisaldab KM 25.05.2023 Vestlus (0)

Pakkumise kirjeldus:

Hinnapakkumine sisaldab vahelae paneelide laotise tegemist ja hoone valminud ehituskonstruktsioonide osa ekspertiisi koostamist vahelae laotise tegemiseks.

Hinnapakkujale on väljastatud Eesti Ehitusinseneride Liidu poolt kutsetunnistus (diplomeeritud ehitusinsener tase 7). Hinnapakkuja omab MTR registreeringuid projekteerimiseks, ehitusprojekti ekspertii ... Rohkem

Kasutaja ikoon ID47813
Pakkuja profiil Väike nool paremale
1 200€ Ei ole KMKR Ei ole KMKR 26.05.2023 Vestlus (4)

Pakkumise kirjeldus:

Tere

Pakkumine sisaldab hanke lisas toodud hoone vahelae õõnespaneelide laotist, trepiava vekselduse lahendust ja paneelide spetsifikatsiooni.
Pakkumine ei sisalda vahelae armeerimisjooniseid, külgnevate konstruktsioonide dimensioneerimist või tugevuskontrolli (seinad, talad, sillused). Kokkuleppel saab pakkumises mittesisalduvad tööd vastavalt va ... Rohkem

Kasutaja ikoon ID26988
Pakkuja profiil Väike nool paremale
300€ Ei ole KMKR Ei ole KMKR 26.05.2023 Vestlus (0)

Pakkumise kirjeldus:

Projekti DWG olemasolul paneelide laotise joonis.

Kasutaja ikoon ID73479
Pakkuja profiil Väike nool paremale
2 500€ Sisaldab KM Sisaldab KM 28.05.2023 Vestlus (0)

Pakkumise kirjeldus:

Tere

Hea meelega teostame tööd teie jaoks.Tööd tehakse kvaliteetselt ja võimalikult kiiresti.Pakume 5 aastane garantii oma töödele.

See hind sisaldab kõiki nimekirjas olevaid soovitud tööd.
Spetsialisti tulek teie objektile, hinnapakkumise ja tööteostamise lepingu koostamine.

Minu firma tegeleb katuste, fassaadide ehitusega ning üldehi ... Rohkem

Küsimused hanke korraldajale

Küsimus: private ID74912   26.05.2023 08:45
Kui paneelid tellite siis miks mitte tellida otse tootjalt?
Tootja teeb vastavad arvutused ja soodsamalt kui siin pakutud.

Teavita reeglite rikkumisest

Korraldaja vastus: 26.05.2023 08:59

Tänud info eest.

Teavita reeglite rikkumisest

Lisa küsimus

Lisa küsimus

Minu pakkumine

Reeglid

Pakkumise kirjelduse väli on mõeldud pakkumise detailsemaks lahti kirjutamiseks. Pikema teksti mugavaks sisestamiseks klikkige kasti paremal ülaservas oleval ikoonil.
Pakkumist tehes on keelatud postitada enda kontaktandmeid (nimi, telefon, aadress jne). Me jälgime ja analüüsime pakkumisi, et vältida pettuseid ja reeglite rikkumisi.
Rikkumise puhul kasutajakonto blokeeritakse.

 

Teisi töid samas valdkonnas

Valdkonnas "Ehitusprojektid" on 5 aktiivset tööd

no-img Pilt puudub

Kortermaja kõigi ruumide mõõdistamine ja DWG faili koostamine

Asukoht: Harjumaa, Tallinn
Aega jäänud: 2p
Tehtud pakkumisi: 2

Korterelamu mõõdistusprojekti koostamine ja jooniste digitaliseerimine

Asukoht: Lääne-Virumaa, Tapa
Aega jäänud: 5p
Tehtud pakkumisi: 2

Vanemad teated:

Vaata kõiki

Sellel veebilehel kasutatakse küpsiseid. Kasutamist jätkates nõustute küpsiste kasutamisega.

Sulge
 
Minu pakkumine

Reeglid

Pakkumise kirjelduse väli on mõeldud pakkumise detailsemaks lahti kirjutamiseks. Pikema teksti mugavaks sisestamiseks klikkige kasti paremal ülaservas oleval ikoonil.
Pakkumist tehes on keelatud postitada enda kontaktandmeid (nimi, telefon, aadress jne). Me jälgime ja analüüsime pakkumisi, et vältida pettuseid ja reeglite rikkumisi.
Rikkumise puhul kasutajakonto blokeeritakse.