+ Lisa oma töö      

Otsid ehitajat "Projekteerimine" valdkonnast?

Parima pakkumise ja teostaja leidmiseks lisa oma töö.

Vee-ja kanalisatsiooni projekt

ID 81692

561 vaatamist

Prindi

  • check Pakkumiste tegemine
    kuni 24.05.2023
  • check Võitja valik kuni
    31.05.2023
  • 3 Töö teostamine
    ja hinnang
Hanke lõpp: K, 24. mai, 2023
Maakond: Lääne-Virumaa
Muu asula: Kadapiku
Tööde algus: N, 01. juuni, 2023 (Soovituslik)
Tööde lõpp: R, 01. september, 2023 (Soovituslik)
Ehitusmaterjalid: Töö tellija poolt
Soovin pakkumisi: Summa kogu projektile

Töö sisu

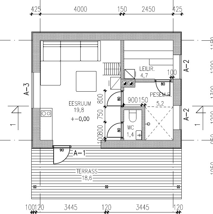
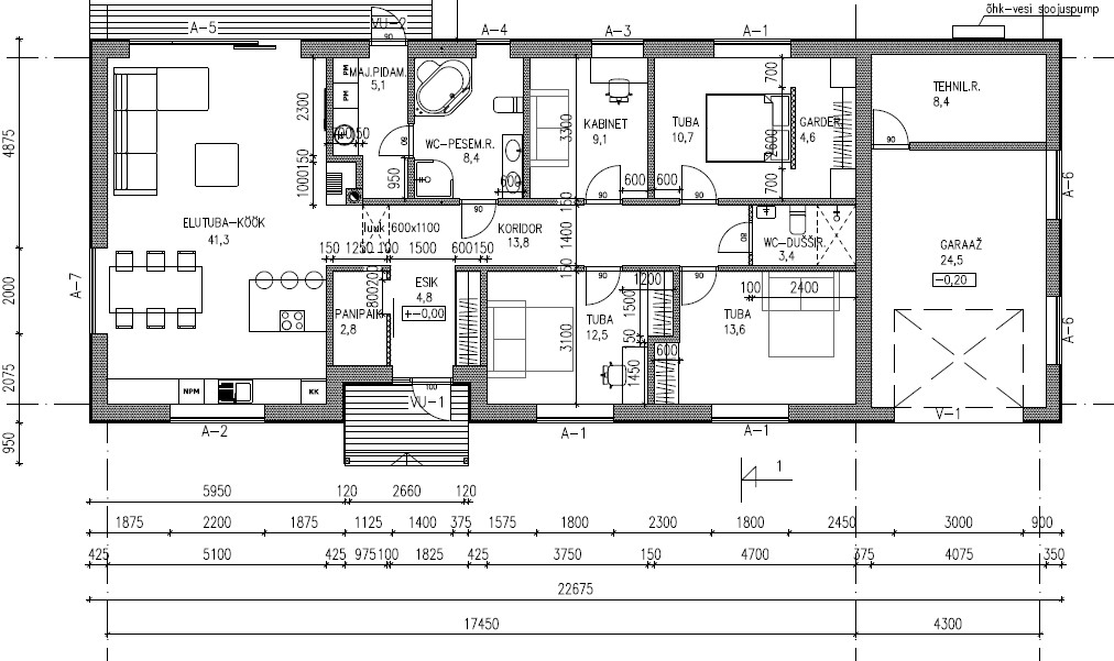
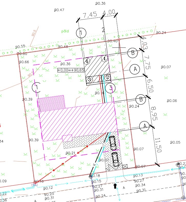
Palun teha pakkumine vee- ja kanalisatsiooni projektile elamule ja saunale samal krundil. Sise-ja välisosale.

Olemas ka dwg joonised.

Pildid, video ja failid

Hanke korraldaja: eraisik ID67224

Pakkumised

Pakkumisi kokku: 2

Ettevõte Summa Käibemaks Lisatud Vestlus
Kasutaja ikoon ID73479
Pakkuja profiil Väike nool paremale
3 500€ Sisaldab KM Sisaldab KM 24.05.2023 Vestlus (0)

Pakkumise kirjeldus:

Tere

Hea meelega teostame tööd teie jaoks.Tööd tehakse kvaliteetselt ja võimalikult kiiresti.Pakume 5 aastane garantii oma töödele.

See hind sisaldab kõiki nimekirjas olevaid soovitud tööd.
Spetsialisti tulek teie objektile, hinnapakkumise ja tööteostamise lepingu koostamine.

Minu firma tegeleb katuste, fassaadide ehitusega ning üldehi ... Rohkem

Kasutaja ikoon ID52246
Pakkuja profiil Väike nool paremale
1 535€ Ei ole KMKR Ei ole KMKR 24.05.2023 Vestlus (0)

Pakkumise kirjeldus:

HOONESISESTE VK PAIGALDISTE PROJEKT (Elamu + saun)
Sisaldab:
- Seletuskiri
- Kõikide korruste VK plaanid alates veemõõdusõlmest (olemasolevatele digitaalsetele aluspõhjadele)


PROJEKT LIITUMISEKS TEENUSEPAKKUJA VÕRKUDEGA NING KINNISTUSISENE VK PROJEKT
Projekti koostamisel lähtutakse teenusepakkuja tehnilistest tingimustest ning joonistest.

... Rohkem

Küsimused hanke korraldajale

Küsimus: private ID63115   11.05.2023 08:11
Tere,
Saaksite palun juurde lisada ka tehnilisi tingimusi

Teavita reeglite rikkumisest

Korraldaja vastus: 12.05.2023 15:43

Tere!

5. ERIOSAD
5.1 Veevarustus ja kanalisatsioon:
Veevarustus ühendada krundipiiril oleva liitumispunktiga, liitumistingimused võtta trassi valdajalt.
Veevarustuse sisendustoru ühendada krundipiirile paigaldatud peakraaniga.
Liitumispunktiks ühisveevärgi tänavatorustikuga jääb kinnistu peakraan.
Vee torustikud rajada min.1,7 m sügavuselt tihendatud liivapadja sees.
Torustiku materjaline kasutada PE tüüpi veevarustuse plasttoru survele PN10/SDR11.
Kinnistu tarnetoru ühenduse tegemine peakraaniga ja tarnetoru kaeviku tagasitäide tuleb teha veeettevõtja
juuresolekul.
Hoonesisene veetorustik on ette nähtud plasttorudest Ø25x2,3 ja Ø16x2,2; kõik varjatud torud
paigaldada manteltorus. Põhitorud isoleerida kogu pikkuses 20 mm paksuse kivivill
koorikisolatsiooniga. Külmaveetoru isoleerida aurutihedalt. Sanitaarseadmete ühendustorustikud
on ette nähtud plastmass veetorudest Ø16x2,2, paigaldusega põrandas ja/või seintes. Torud
asetada manteltorusse.

Kanalisatsioonitorustik ühendada krundi piirile paigaldatud vaatluskaevuga.
Liitumispunktiks ühiskanalisatsiooniga jääb kinnistu vaatluskaev.
Välise kanalisatsioonitorustiku läbimõõt DN 160mm ja torustikuks kasutada PE või PP tüüpi
kanalisatsioonitoru rajamissügavusega 1,7m.
Ühiskanalisatsiooni paisutustase on kinnistu vaatluskaevu kaanest 10cm võrra kõrgem tase.
Sademete-, pinnase- ja drenaaživee juhtimine ühiskanalisatsiooni on keelatud.
Vee- ja kanalisatsioonitorustikud paigaldada tihendatud liivapadja sisse.
Sisemine kanalisatsioon ehitatakse plasttorudest dn32 – dn110, mis paigaldatakse põrandasse.
Sanitaarseadmetena kasutatakse hoones vastavaid nõuetekohase vesilukuga varustatud standardseid
seadmeid.

Teavita reeglite rikkumisest

Lisa küsimus

Lisa küsimus

Minu pakkumine

Reeglid

Pakkumise kirjelduse väli on mõeldud pakkumise detailsemaks lahti kirjutamiseks. Pikema teksti mugavaks sisestamiseks klikkige kasti paremal ülaservas oleval ikoonil.
Pakkumist tehes on keelatud postitada enda kontaktandmeid (nimi, telefon, aadress jne). Me jälgime ja analüüsime pakkumisi, et vältida pettuseid ja reeglite rikkumisi.
Rikkumise puhul kasutajakonto blokeeritakse.

 

Teisi töid samas valdkonnas

Valdkonnas "Projekteerimine" on 6 aktiivset tööd

no-img Pilt puudub

1-kordse 120 m2 elumaja põhiprojekt

Asukoht: Harjumaa, Metsanurme
Aega jäänud: 8p 15h
Tehtud pakkumisi: 4

no-img Pilt puudub

Saunamaja eelprojekt ehitusteatiseks

Asukoht: Lääne-Virumaa
Aega jäänud: 1p 15h
Tehtud pakkumisi: 3

Vanemad teated:

Vaata kõiki

Sellel veebilehel kasutatakse küpsiseid. Kasutamist jätkates nõustute küpsiste kasutamisega.

Sulge
 
Minu pakkumine

Reeglid

Pakkumise kirjelduse väli on mõeldud pakkumise detailsemaks lahti kirjutamiseks. Pikema teksti mugavaks sisestamiseks klikkige kasti paremal ülaservas oleval ikoonil.
Pakkumist tehes on keelatud postitada enda kontaktandmeid (nimi, telefon, aadress jne). Me jälgime ja analüüsime pakkumisi, et vältida pettuseid ja reeglite rikkumisi.
Rikkumise puhul kasutajakonto blokeeritakse.