+ Lisa oma töö      

Otsid ehitajat "Elektritööd" valdkonnast?

Parima pakkumise ja teostaja leidmiseks lisa oma töö.

Hange on lõppenud!

Võitjaks osutus kasutaja ID 60910

Koteri elektritööd

ID 80336

895 vaatamist

Prindi

  • check Pakkumiste tegemine
    kuni 07.04.2023
  • check Võitja valik kuni
    14.04.2023
  • 3 Töö teostamine
    ja hinnang
Hanke lõpp: R, 7. aprill, 2023
Maakond: Harjumaa
Linn: Tallinn
Tööde algus: P, 30. aprill, 2023 (Soovituslik)
Tööde lõpp: P, 14. mai, 2023 (Soovituslik)
Ehitusmaterjalid: Töö tellija poolt
Soovin pakkumisi: Tüki- või ühikuhinda

Töö sisu

Korteri üld ehitustööde projekt on eraldi hankena välja toodud, kuid lisatud ka antud taotlusse.

Antud toatluse eenmärk on leidaeraldi elektritööde teostajat ja saada vastavaid pakkumisi.

Töö sisaldab elektri kaabelduse väljavahetamine(treimise töid seintel seal, kus vajalik). Osades kohtades ei ole teimine vajalik, kuna olemas on avad, kuhu saab kaabel paigaldada.
Vastavalt sellele pistikupesade tekitamine/paigaldamine.
Valgustuse jaoks kaablite ettevlamistus. Kuna kasutusele tulevad pinglaed, siis kaabli peitmine lae sisse ei ole vajalik vaid võivad liikuda mööda lage kinnitatult. Kögitehnika(pliit/ahi) jaoks vajalike ühenduste loomine. Kuna pistikud lähevad rõdudele ja vannitupps, siis tegemist peaks olema sulgevate pistikutega.

Pildid, video ja failid

Hanke korraldaja: eraisik ID73505

Pakkumised

Pakkumisi kokku: 11

Ettevõte Summa Käibemaks Lisatud Vestlus
Kasutaja ikoon ID68755
Pakkuja profiil Väike nool paremale
2 000€ Ei ole KMKR Ei ole KMKR 04.04.2023 Vestlus (0)

Pakkumise kirjeldus:

Tere. See hind sai pandud selline põlvelt tulistatud, kuna infot vähe, et teha õiglasem pakkumine. Kuna ruutmeetreid täpsustatud pole, siis pakuks kaabelduse ja pesade-tooside paigalduse töödele 50€/m2 või 25€/tund. Olemas vastavad töövahendid, kogemused, pädevused. Töö kiire ja korralik. Soovi korral deklaratsioon koos mõõtmistega. Tööde ... Rohkem

Kasutaja ikoon ID60910
Pakkuja profiil Väike nool paremale
2 300€ KM lisandub KM lisandub 04.04.2023 Vestlus (3)

Pakkumise kirjeldus:

Tere

Pakkumine sisaldab:
-kaabeldustöid
-tooside paigaldus
-kilbi demontaaz
-uue kilbi paigaldus ja ühendamine
-freesimistööd
-teostusjoonis, kilbijoonis

Enne tööde alustamist soovils eelnevalt objekt üle vaadata, et hinnata üle olukord ning leppida kokku vajaminevad materjalid (hankes märgitud materjal tellija poolt).
Elektrialane tö ... Rohkem

Kasutaja ikoon ID26292
Pakkuja profiil Väike nool paremale
8 125€ KM lisandub KM lisandub 05.04.2023 Vestlus (2)

Pakkumise kirjeldus:

Pakkumine sisaldab kaabeldust koos kaablisoonte freesimisega, pistikupesade ja lülitite hindu koos paigaldamisega, korterisisest kilpi ja uut sisestuskaablit ning dokumentatsiooni. Vajadusel saame pakkuda ka auditit tehtud tööle.

Kasutaja ikoon ID52293
Pakkuja profiil Väike nool paremale
3 700€ Sisaldab KM Sisaldab KM 05.04.2023 Vestlus (0)
Kasutaja ikoon ID25180
Pakkuja profiil Väike nool paremale
1 850€ KM lisandub KM lisandub 06.04.2023 Vestlus (0)

Pakkumise kirjeldus:

Elektritööd korteri elektripaigaldise uuendamiseks ilma materjalideta. Soovi korral kalkulatsioon koos materjalidega peale objekti ülevaatust. Lugupidamisega.

Kasutaja ikoon ID72993
Pakkuja profiil Väike nool paremale
1 600€ Ei ole KMKR Ei ole KMKR 06.04.2023 Vestlus (0)

Pakkumise kirjeldus:

Tere,

Hind sisaldab järgnevaid töid :
• Konsultatsiooni, plaani koostamist.
• Toitekaabli paigaldus ning montaaz trepikoja liitumiskilbist korteris sees paigaldavasse jaotuskilpi.
• Korterisisese kilbi paigaldus ning montaaz vastavalt korteris olevatele elektritarbijatele.
• Korterisisene kaabeldus ning tooside paigaldus.
• Peale maalri ... Rohkem

Kasutaja ikoon ID48973
Pakkuja profiil Väike nool paremale
3 200€ Ei ole KMKR Ei ole KMKR 06.04.2023 Vestlus (0)

Pakkumise kirjeldus:

Tere
Pakkumine sisaldab kogu tööd koos kõigi vajaminevate materjalidega. Hinnas ABB Basic 55 pistikupesad ja lülitid.
Garantii töödele 3a

Kasutaja ikoon ID73476
Pakkuja profiil Väike nool paremale
3 000€ Sisaldab KM Sisaldab KM 06.04.2023 Vestlus (0)
Kasutaja ikoon ID58844
Pakkuja profiil Väike nool paremale
3 750€ Sisaldab KM Sisaldab KM 06.04.2023 Vestlus (0)
Kasutaja ikoon ID73625
Pakkuja profiil Väike nool paremale
7 000€ Sisaldab KM Sisaldab KM 07.04.2023 Vestlus (0)

Pakkumise kirjeldus:

Ehitusfirma on Sinu tööst huvitatud.. Ettevõte on valmis andma tööde teostamisele garantii.

Kasutaja ikoon ID73479
Pakkuja profiil Väike nool paremale
5 000€ Sisaldab KM Sisaldab KM 07.04.2023 Vestlus (0)

Pakkumise kirjeldus:

Tere

Hea meelega teostame tööd teie jaoks.Tööd tehakse kvaliteetselt ja võimalikult kiiresti.Pakume 5 aastane garantii oma töödele.

Pakume teile teha plekikatuse paigaldust, topeltvaltssi tehnoloogia (ilma kruvideta). See on kõige parim lahendus oma majale. Garantii on aastateks.


See hind sisaldab kõiki nimekirjas olevaid soovitud tööd. ... Rohkem

Küsimused hanke korraldajale

Küsimus: private ID25180   05.04.2023 07:39
Tere.
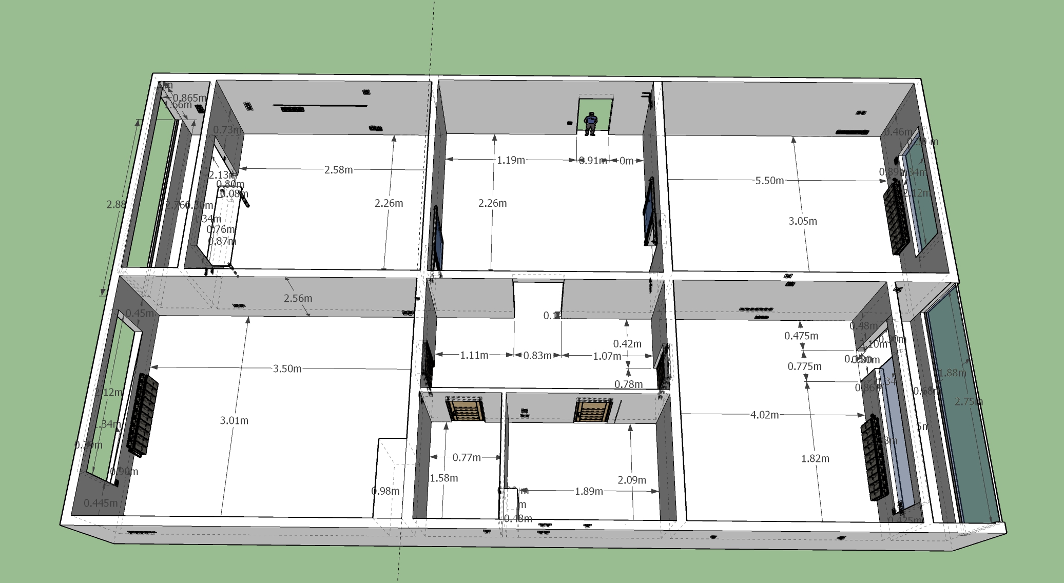
Kas olete kindel et 3d vaade mõõdud on õiged? Näiteks plaani järgi köök 2,5mx3m, mööbli ja seadmete järgi aga pigem 4x5.

Teavita reeglite rikkumisest

Korraldaja vastus: 05.04.2023 13:48

Tere

3d projekti joonis on illustratiinve, selle koostamise eesmärk oli näidata paigalduse asukoht ja muuda detailid. Selle koostamisel ma mõõtusid ei arvestanud. Lisasin joonise korterist, mis sisaldab pikkuse ja laiuse mõõtmeid, tõsi küll puudu on kõrgus(2.56m) ja vannituba ning WC. mis moodustavad ~4m2 pinna.
Korter ise on 64.6m2.
Enamus kaableid saab vedada mööda lage, mis peaks vähendama freesimise vajadust. Kuna kasutusele tulevad pinglaed, saab kaablid selle taga korralikult ära peita. Osades kohtades on vaod ja avad olemas, läbi mille saab kaablit veeta.

Teavita reeglite rikkumisest

Küsimus: private ID19451   06.04.2023 12:49
Tere!
Kas ka põrandad on üles võetud? ( Osad juhtmed põranda alt). Kas tegu betoonhoonega või kivi? Mitmes korrus? Lift? Kuidas parkimine? Millises kandis Tallinnas?
Tänan.

Teavita reeglite rikkumisest

Korraldaja vastus: 06.04.2023 13:32

Tere

3d projekti joonis on illustratiinve, selle koostamise eesmärk oli näidata paigalduse asukoht ja muuda detailid. Selle koostamisel ma mõõtusid ei arvestanud. Lisasin joonise korterist, mis sisaldab pikkuse ja laiuse mõõtmeid, tõsi küll puudu on kõrgus(2.56m) ja vannituba ning WC. mis moodustavad ~4m2 pinna.
Korter ise on 64.6m2.
Enamus kaableid saab vedada mööda lage, mis peaks vähendama freesimise vajadust. Kuna kasutusele tulevad pinglaed, saab kaablid selle taga korralikult ära peita. Osades kohtades on vaod ja avad olemas, läbi mille saab kaablit veeta.
Põrandad ei ole üles võetud, kuid töö tuleb teostada üldremondiga koos, seega põrandada võetakse üles.
Tegemist tavalise paneel majaga, Tallinnas, Õismäel, korrus 5, lifti pole. Parkimine maja ees, tööpäeviti on vabu kohti olemas.

Teavita reeglite rikkumisest

Küsimus: private ID19451   07.04.2023 00:47
Tere!
Kes freesib vajalikud toosiaugud ja vajalikud kaablisooned?

Teavita reeglite rikkumisest

Korraldaja vastus:
Hanke korraldaja ei ole küsimusele veel vastanud

Lisa küsimus

Lisa küsimus

Minu pakkumine

Reeglid

Pakkumise kirjelduse väli on mõeldud pakkumise detailsemaks lahti kirjutamiseks. Pikema teksti mugavaks sisestamiseks klikkige kasti paremal ülaservas oleval ikoonil.
Pakkumist tehes on keelatud postitada enda kontaktandmeid (nimi, telefon, aadress jne). Me jälgime ja analüüsime pakkumisi, et vältida pettuseid ja reeglite rikkumisi.
Rikkumise puhul kasutajakonto blokeeritakse.

 

Teisi töid samas valdkonnas

Valdkonnas "Elektritööd" on 5 aktiivset tööd

Vana talu elektrisüsteemi uuendamine (kilp, pistikud, välivalgustus, EV valmidus)

Asukoht: Raplamaa, Suurekivi
Aega jäänud: 1p 14h
Tehtud pakkumisi: 5

Korteri remont

Asukoht: Tartumaa
Aega jäänud: 14h 43 min
Tehtud pakkumisi: 2

Vanemad teated:

Vaata kõiki

Sellel veebilehel kasutatakse küpsiseid. Kasutamist jätkates nõustute küpsiste kasutamisega.

Sulge
 
Minu pakkumine

Reeglid

Pakkumise kirjelduse väli on mõeldud pakkumise detailsemaks lahti kirjutamiseks. Pikema teksti mugavaks sisestamiseks klikkige kasti paremal ülaservas oleval ikoonil.
Pakkumist tehes on keelatud postitada enda kontaktandmeid (nimi, telefon, aadress jne). Me jälgime ja analüüsime pakkumisi, et vältida pettuseid ja reeglite rikkumisi.
Rikkumise puhul kasutajakonto blokeeritakse.